MÃ BẢN VẼ
43458

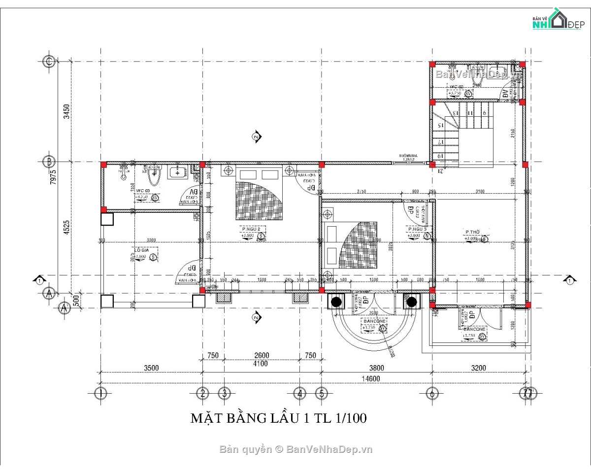
Biệt thự 2 tầng tân cổ điển, kiến trúc tân cổ điển 15X6 đầy đủ và chi tiết, Full hồ sơ thiết kế

  (1 Nhận xét)     Viết đánh giá        2     1     707

Full mẫu bản vẽ nhà biệt thự tân cổ điển 15x6 full và chi tiết, full bản vẽ thiết kế, ,biệt thự full ,bản vẽ nhà biệt thự tân cổ điển full ,biệt thự tân cổ điển full kt.kc.đn ,biệt thự 2 tầng

Ngày đăng: 09/1/2024
File download: BIET THU TAN CO DIEN 15x6.dwg
Dung lượng file: 2.56 MB
Phong cách: Hiện đại
Kích thước: ...
CÔNG CỤ THIẾT KẾ:
Autocad
Sketchup
3D Max
Revit
Khác...
CÁC HẠNG MỤC CỦA BẢN VẼ:
Kiến trúc
Kết cấu
Điện
Nước
PCCC
Phối cảnh
Dự toán
Tài liệu
Khác...

NGƯỜI ĐĂNG
(Hạng vàng)
Xem trang
bản vẽ nhà
Bản vẽ
18
bộ sưu tập bản vẽ nhà
Bộ sưu tập
0
đánh giá mẫu bản vẽ
Đánh giá (24)
5/5
ngày tham gia bản vẽ nhà đẹp
Ngày tham gia
6/11/2022

Mô tả chi tiết

full mẫu bản vẽ kỹ thuật thi công nhà biệt thự mái tân cổ điển 15x6 đầy đủ các mẫu bản vẽ đầy đủ nhất bao gồm:

+ kiến trúc

+ kết cấu

+ điện nước

 

Bình luận (2)

Người bình luận bản vẽ

hùng phạm thế Trả lời Thích  010:22 - 26/1/2025
file không tồn lại ad
Nhân Hiếu Trả lời Thích  009:22 - 23/2/2025
@hùng phạm thế Anh cho mình thông tin để chủ động gửi lại file anh nhé! Có thể link bị hỏng

Đánh giá (1)

ĐÁNH GIÁ TRUNG BÌNH
5/5

(1 Nhận xét)
Bản vẽ rất tốt (1)
Bản vẽ tốt (0)
Bản vẽ rất hay (0)
Bản vẽ hay (0)
Bình thường (0)
Chia sẻ nhận xét về bản vẽ
 Viết nhận xét của bạn
Nhân Hiếu
Thời gian 14:13
20/2/2024
Bản vẽ rất tốt   
 Đã mua bản vẽ tại Banvenhadep.vn
Bản vẽ thiết tốt thích hợp để tham khảo
HỖ TRỢ TRỰC TUYẾN