MÃ BẢN VẼ
63137
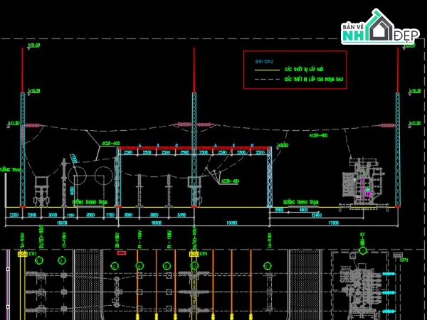
Bộ hồ sơ thiết kế CAD đầy đủ trạm biến áp 110kV Mỹ Thủy
Bộ hồ sơ thiết kế CAD đầy đủ trạm biến áp 110kV Mỹ Thủy diện tích 58x86m
Ngày đăng: 27/11/2025
File download:
TBA Mỹ Thủy.rar
Dung lượng file:
34.4 MB
Phong cách: Chưa xác định
Kích thước: Rộng 58m, Dài 86m, DT 4988m2
CÔNG CỤ THIẾT KẾ:

Autocad

Sketchup

3D Max

Revit

Khác...
CÁC HẠNG MỤC CỦA BẢN VẼ:

Kiến trúc

Kết cấu

Điện

Nước

PCCC

Phối cảnh

Dự toán

Tài liệu

Khác...
NGƯỜI ĐĂNG
Bản vẽ
92
Bộ sưu tập
0
Đánh giá (113)
5/5
Ngày tham gia
2/4/2024
Mô tả chi tiết
Bộ hồ sơ thiết kế CAD đầy đủ trạm biến áp 110kV Mỹ Thủy trên diện tích 58x86m
bao gồm các bản vẽ mặt bằng mặt đứng mặt cắt bố trí thiết bị ngoài trạm, bản vẽ nhà điều hành, trạm biến áp tự dùng, hệ thống chốt sét, cọc tiếp địa, camera an ninh, sơ đồ nguyên lý, sơ đồ phương thức bảo vệ rơ le
Bình luận (0)
Đánh giá (1)
ĐÁNH GIÁ TRUNG BÌNH
5/5
(
1 Nhận xét)
Bản vẽ rất tốt (1)
Bản vẽ tốt (0)
Bản vẽ rất hay (0)
Bản vẽ hay (0)
Bình thường (0)
Bản vẽ rất tốt
Đã đăng bản vẽ này
Bản vẽ rất tốt và phù hợp để tham khảo