MÃ BẢN VẼ
59878
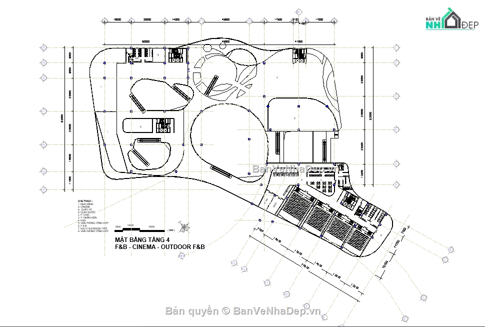
Chia sẻ đồ án công cộng 4 - trung tâm thương mại có đầy đủ model revit và d5 hoàn thiện kèm khu đất autocad
Đây là chia sẻ đồ án công cộng 4 trung tâm thương mại có đầy đủ model revit và model d5, có gồm khu đất cụ thể, chất lượng cao, model được hoàn thiện đầy đủ rõ ràng
Ngày đăng: 15/7/2025
File download:
ĐỒ ÁN CÔNG CỘNG 4 - TRUNG TÂM THƯƠNG MẠI .zip
Dung lượng file:
908 MB
Phong cách: Hiện đại
Kích thước: ...
CÔNG CỤ THIẾT KẾ:

Autocad

Sketchup

3D Max

Revit

Khác...
CÁC HẠNG MỤC CỦA BẢN VẼ:

Kiến trúc

Kết cấu

Điện

Nước

PCCC

Phối cảnh

Dự toán

Tài liệu

Khác...
NGƯỜI ĐĂNG
Bản vẽ
3
Bộ sưu tập
0
Đánh giá (3)
5/5
Ngày tham gia
4/11/2022
Mô tả chi tiết
Đây là luận văn công cộng 4 trung tâm thương mại
Có đầy đủ model revit và model d5, có bản vẽ cad khu đất cụ thể, chất lượng cao
File được hoàn thiện đầy đủ rõ ràng
Rất mong được các bạn ủng hộ. chân thành cảm ơn
Bình luận (0)
Đánh giá (1)
ĐÁNH GIÁ TRUNG BÌNH
5/5
(
1 Nhận xét)
Bản vẽ rất tốt (1)
Bản vẽ tốt (0)
Bản vẽ rất hay (0)
Bản vẽ hay (0)
Bình thường (0)
Bản vẽ rất tốt
Đã mua bản vẽ tại Banvenhadep.vn
Bản vẽ thiết tốt thích hợp để tham khảo