MÃ BẢN VẼ
25164

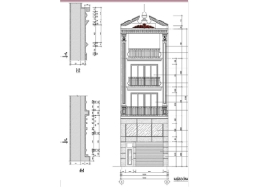
Chia sẻ nhà phố 4 tầng 4.2x16.2m model su

  (1 Nhận xét)     Viết đánh giá        0     37     484

Mẫu nhà ở phố 4 tầng đẹp kiểu mới đang là xu hướng được nhiều chủ đầu tư quan tâm. Gửi tới các bạn tham khảo.

Ngày đăng: 08/2/2023
File download: 4 tầng.rar
Dung lượng file: 21.9 MB
Phong cách: Hiện đại
Kích thước: Rộng 4,2m, Dài 16,2m, DT 68,04m2
CÔNG CỤ THIẾT KẾ:
Autocad
Sketchup
3D Max
Revit
Khác...
CÁC HẠNG MỤC CỦA BẢN VẼ:
Kiến trúc
Kết cấu
Điện
Nước
PCCC
Phối cảnh
Dự toán
Tài liệu
Khác...

NGƯỜI ĐĂNG
(Hạng vàng)
Xem trang
bản vẽ nhà
Bản vẽ
1708
bộ sưu tập bản vẽ nhà
Bộ sưu tập
0
đánh giá mẫu bản vẽ
Đánh giá (1876)
5/5
ngày tham gia bản vẽ nhà đẹp
Ngày tham gia
2/11/2020

Mô tả chi tiết

file su nhà dân 4 tầng không quá cầu kỳ phù hợp với dự toán tiết kiệm.Rất phù hợp kinh tế cho nhiều gia đình chùa hiện nay.

Bình luận (0)


Đánh giá (1)

ĐÁNH GIÁ TRUNG BÌNH
5/5

(1 Nhận xét)
Bản vẽ rất tốt (1)
Bản vẽ tốt (0)
Bản vẽ rất hay (0)
Bản vẽ hay (0)
Bình thường (0)
Chia sẻ nhận xét về bản vẽ
 Viết nhận xét của bạn
Van Anh
Thời gian 09:04
27/2/2023
Bản vẽ rất tốt   
 Đã mua bản vẽ tại Banvenhadep.vn
Bản vẽ thiết tốt thích hợp để tham khảo
HỖ TRỢ TRỰC TUYẾN