MÃ BẢN VẼ
54290
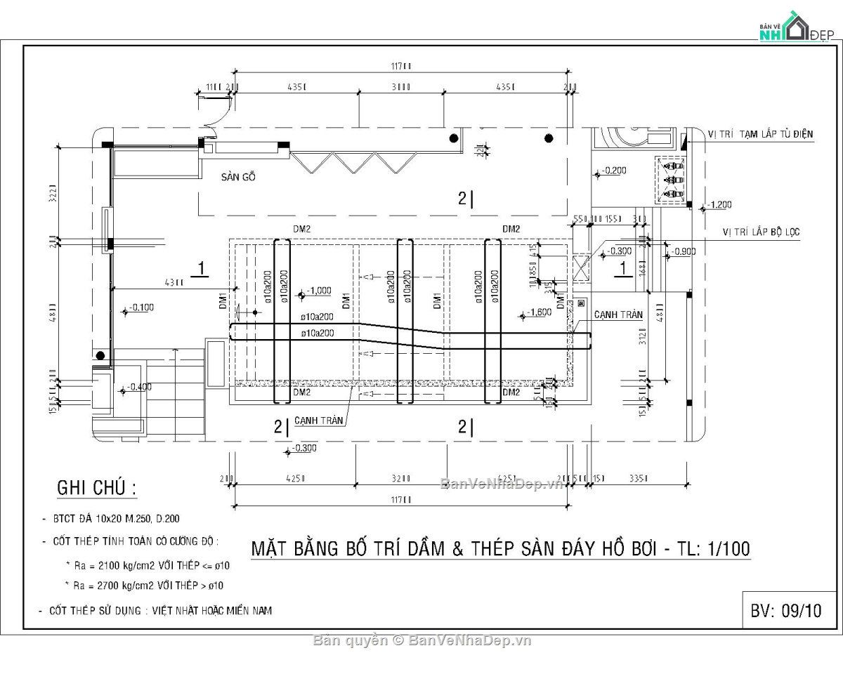
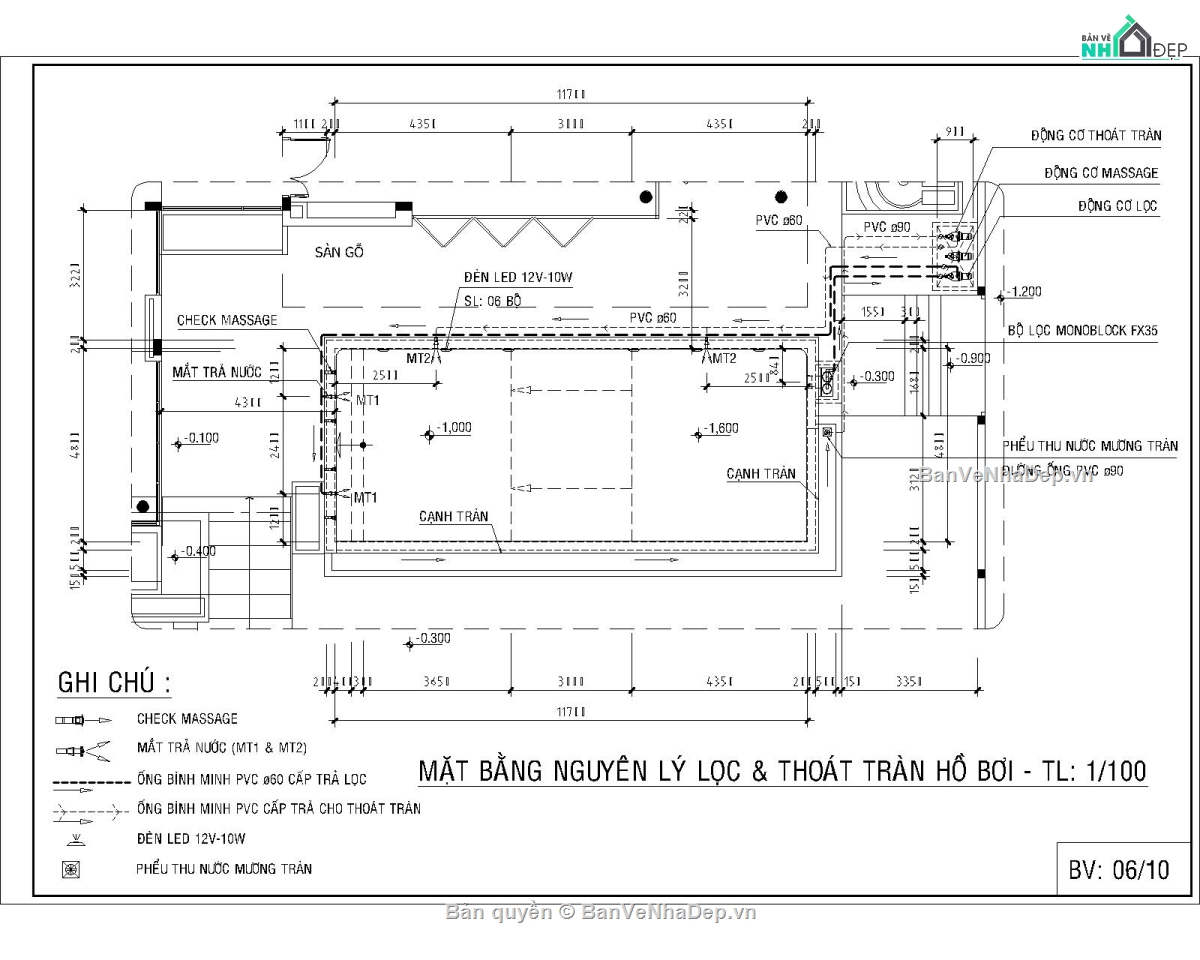
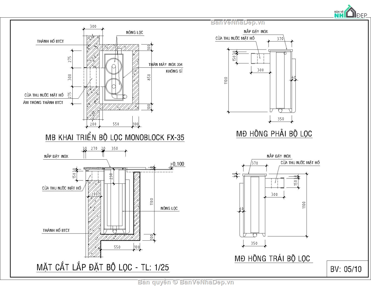
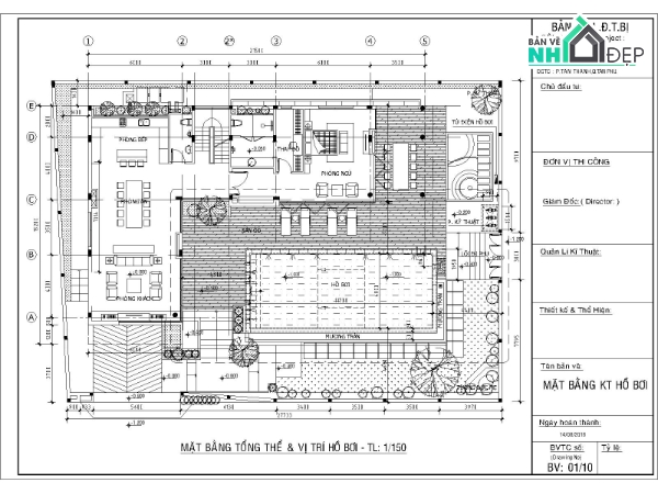
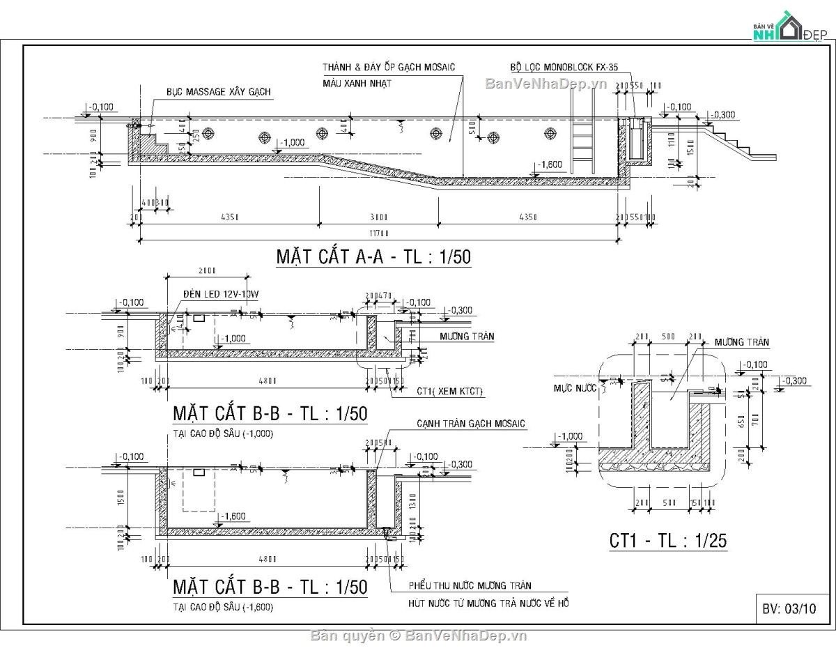
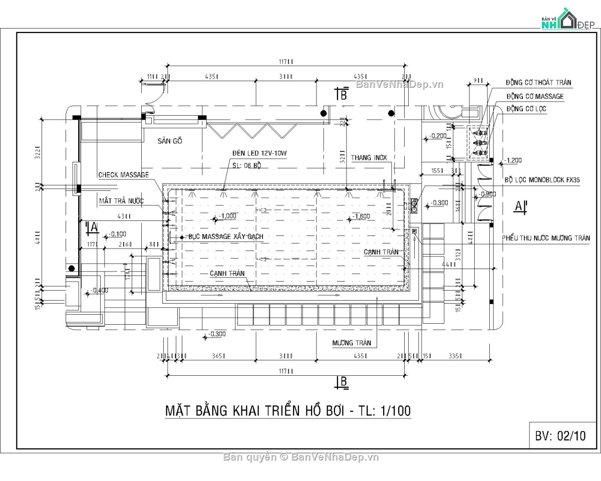
Chia sẻ quý khách Bản vẽ hồ bơi (4.8mx11.7m) Full Kiến Trúc & Kết cấu.
Chia sẻ quý khách Bản vẽ hồ bơi (4.8mx11.7m) Full Kiến Trúc & Kết cấu. Có hệ thống Massage, mương tràn hồ bơi & sử dụng hệ thống lọc thông minh.
Ngày đăng: 24/4/2025
File download:
KT HO BOI 4,8MX11,7M - Q Tan Phu.dwg
Dung lượng file:
707 KB
Phong cách: Hiện đại
Kích thước: Rộng 4,8m, Dài 11,7m, DT 56,2m2
CÔNG CỤ THIẾT KẾ:

Autocad

Sketchup

3D Max

Revit

Khác...
CÁC HẠNG MỤC CỦA BẢN VẼ:

Kiến trúc

Kết cấu

Điện

Nước

PCCC

Phối cảnh

Dự toán

Tài liệu

Khác...
NGƯỜI ĐĂNG
Bản vẽ
24
Bộ sưu tập
1
Đánh giá (36)
5/5
Ngày tham gia
29/12/2017
Mô tả chi tiết
Chia sẻ quý khách Bản vẽ hồ bơi (4.8mx11.7m) Full Kiến Trúc & Kết cấu. Có hệ thống Massage, mương tràn, sử dụng lọc thông minh. Thích hợp cho các khu biệt thự, khu resort. Tạo cảm giác thư giãn thoải mái cho quý khách sau 01 ngày làm việc.
Cám ơn Quý khách đã xem tin! Cám ơn Admin duyệt bài!
Bình luận (0)
Đánh giá (1)
ĐÁNH GIÁ TRUNG BÌNH
5/5
(
1 Nhận xét)
Bản vẽ rất tốt (1)
Bản vẽ tốt (0)
Bản vẽ rất hay (0)
Bản vẽ hay (0)
Bình thường (0)
Bản vẽ rất tốt
Đã đăng bản vẽ này
Bản vẽ rất tốt và phù hợp để tham khảo