MÃ BẢN VẼ
63005
Đầy đủ cửa sắt gỗ - nhôm kính cho mẫu biệt thự
(
1 Nhận xét)
Viết đánh giá
Bình luận: 0
Download: 1
Lượt xem: 137
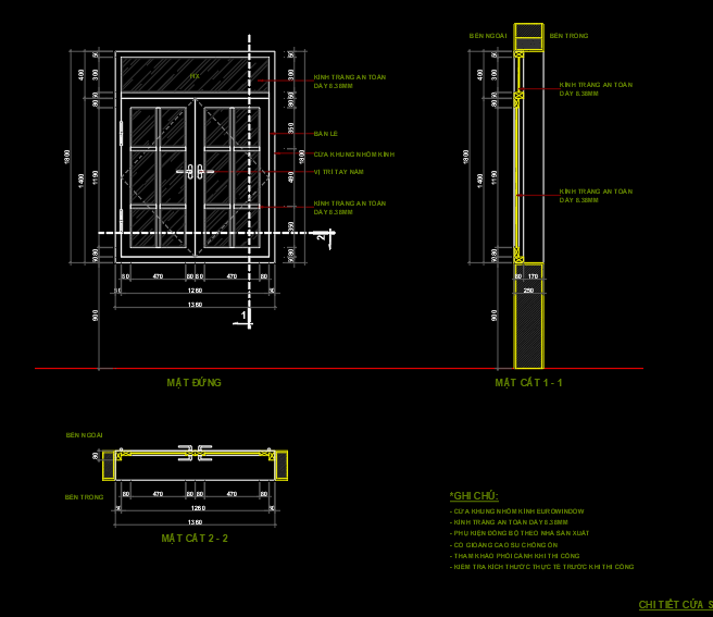
File “chi tiết cửa sắt gỗ – nhôm kính cho biệt thự” cung cấp mẫu file cad đầy đủ cấu tạo các loại cửa sắt gỗ, cửa sắt nhôm kính, cửa sắt đi, cửa sắt sổ và vách kính dùng trong công trình biệt thự. mẫu bản vẽ thể hiện rõ kích
Ngày đăng: 23/10/2025
File download:
02.CHI TIET CUA.dwg
Dung lượng file:
5.82 MB
Phong cách: Hiện đại
Kích thước: ...
CÔNG CỤ THIẾT KẾ:

Autocad

Sketchup

3D Max

Revit

Khác...
CÁC HẠNG MỤC CỦA BẢN VẼ:

Kiến trúc

Kết cấu

Điện

Nước

PCCC

Phối cảnh

Dự toán

Tài liệu

Khác...
NGƯỜI ĐĂNG
Bản vẽ
7
Bộ sưu tập
0
Đánh giá (7)
5/5
Ngày tham gia
26/10/2022
Mô tả chi tiết
file “chi tiết cửa sắt gỗ – nhôm kính cho biệt thự” cung cấp mẫu file cad đầy đủ cấu tạo các loại cửa sắt gỗ, cửa sắt nhôm kính, cửa sắt đi, cửa sắt sổ và vách kính dùng trong công trình biệt thự. mẫu bản vẽ thể hiện rõ kích thước, cấu kiện, khung, nẹp, bản lề, ray trượt và vật liệu hoàn thiện, giúp kỹ sư, kiến trúc sư và thợ thi công dễ dàng áp dụng thực tế, đảm bảo tính thẩm mỹ và độ bền cao cho công trình.
Bình luận (0)
Đánh giá (1)
ĐÁNH GIÁ TRUNG BÌNH
5/5
(
1 Nhận xét)
Bản vẽ rất tốt (1)
Bản vẽ tốt (0)
Bản vẽ rất hay (0)
Bản vẽ hay (0)
Bình thường (0)
Bản vẽ rất tốt
Đã đăng bản vẽ này
Bản vẽ thiết tốt thích hợp để tham khảo