MÃ BẢN VẼ
63007

Đầy đủ cửa sắt nhôm - cửa sắt gỗ kính mẫu biệt thự

  (1 Nhận xét)     Viết đánh giá        0     0     102

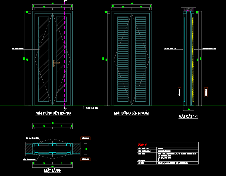
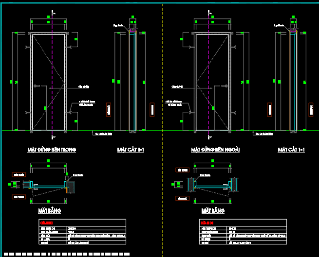
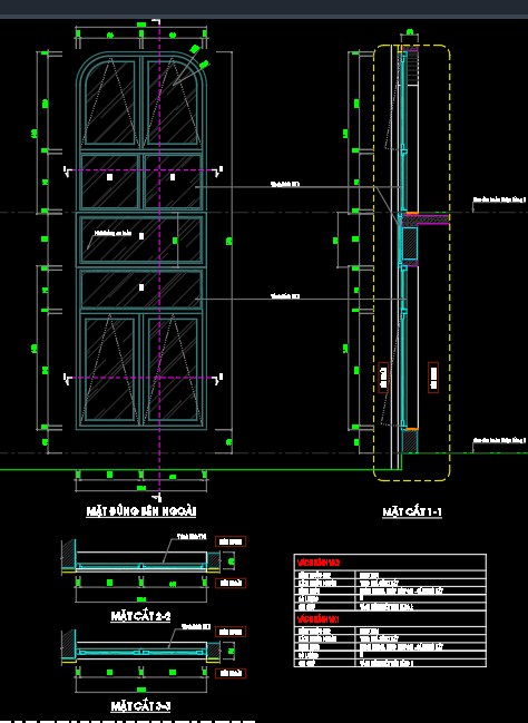
File “chi tiết cửa sắt nhôm – cửa sắt gỗ kính biệt thự” bao đầy đủ mẫu bản vẽ đầy đủ cấu tạo các loại cửa sắt đi, cửa sắt sổ, cửa sắt lùa bằng nhôm kính và cửa sắt gỗ kính hiện đại dành cho biệt thự. bản vẽ thể hiện rõ cấu tạo

Ngày đăng: 23/10/2025
File download: 05.CHI TIET CUA.dwg
Dung lượng file: 620 KB
Phong cách: Hiện đại
Kích thước: ...
CÔNG CỤ THIẾT KẾ:
Autocad
Sketchup
3D Max
Revit
Khác...
CÁC HẠNG MỤC CỦA BẢN VẼ:
Kiến trúc
Kết cấu
Điện
Nước
PCCC
Phối cảnh
Dự toán
Tài liệu
Khác...

NGƯỜI ĐĂNG
(Hạng vàng)
Xem trang
bản vẽ nhà
Bản vẽ
7
bộ sưu tập bản vẽ nhà
Bộ sưu tập
0
đánh giá mẫu bản vẽ
Đánh giá (7)
5/5
ngày tham gia bản vẽ nhà đẹp
Ngày tham gia
26/10/2022

Mô tả chi tiết

file “chi tiết cửa sắt nhôm – cửa sắt gỗ kính biệt thự” bao đầy đủ file cad đầy đủ cấu tạo các loại cửa sắt đi, cửa sắt sổ, cửa sắt lùa bằng nhôm kính và cửa sắt gỗ kính hiện đại dành cho biệt thự. bản vẽ thể hiện rõ cấu tạo khung, nẹp, ron, bản lề, tay nắm, ray trượt và vật liệu hoàn thiện. phù hợp cho thiết kế, thi công và tham khảo trong các công trình nhà dân cao cấp, giúp đảm bảo độ chính xác, tính thẩm mỹ và công năng sử dụng tối ưu.

 
 

Bình luận (0)


Đánh giá (1)

ĐÁNH GIÁ TRUNG BÌNH
5/5

(1 Nhận xét)
Bản vẽ rất tốt (1)
Bản vẽ tốt (0)
Bản vẽ rất hay (0)
Bản vẽ hay (0)
Bình thường (0)
Chia sẻ nhận xét về bản vẽ
 Viết nhận xét của bạn
Hùng Trương
Thời gian 08:48
25/10/2025
Bản vẽ rất tốt   
 Đã mua bản vẽ tại Banvenhadep.vn
Bản vẽ thiết tốt thích hợp để tham khảo
HỖ TRỢ TRỰC TUYẾN