MÃ BẢN VẼ
769

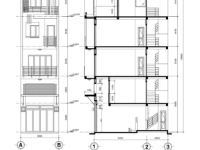
File autocad thiết kế nhà 4 tầng kích thước 16.4x19.3m miễn phí

  (1 Nhận xét)     Viết đánh giá        0     39     864

File autocad thiết kế nhà 4 tầng kích thước 16.4x19.3m miễn phí, dành cho những khu đất rộng với 4 mặt tiền xung quanh,ngôi nhà được file cad rất phong cách với rất nhiều hệ thống cửa sắt ,bên ngoài được file cad theo dạng cổ điển với các cột trụ kết hợp cùng với mầu sơn ngôi nhà nhìn hiện đại và rất cao cấp

Ngày đăng: 10/9/2016
File download: bietthugiaxaydung.dwg
Dung lượng file: 582 KB
Phong cách: Chưa xác định
Kích thước: Rộng 16,4m, Dài 19,3m, DT 316,52m2
CÔNG CỤ THIẾT KẾ:
Autocad
Sketchup
3D Max
Revit
Khác...
CÁC HẠNG MỤC CỦA BẢN VẼ:
Kiến trúc
Kết cấu
Điện
Nước
PCCC
Phối cảnh
Dự toán
Tài liệu
Khác...

NGƯỜI ĐĂNG
(Hạng vàng)
Xem trang
bản vẽ nhà
Bản vẽ
3685
bộ sưu tập bản vẽ nhà
Bộ sưu tập
6
đánh giá mẫu bản vẽ
Đánh giá (3887)
4/5
ngày tham gia bản vẽ nhà đẹp
Ngày tham gia
21/12/2014

Mô tả chi tiết

Mẫu thiết kế tuơng đối đầy đủ,không gian bên trong được file cad khá độc đáo

Bình luận (0)


Đánh giá (1)

ĐÁNH GIÁ TRUNG BÌNH
5/5

(1 Nhận xét)
Bản vẽ rất tốt (1)
Bản vẽ tốt (0)
Bản vẽ rất hay (0)
Bản vẽ hay (0)
Bình thường (0)
Chia sẻ nhận xét về bản vẽ
 Viết nhận xét của bạn
Thanh Tâm Arc
Thời gian 15:18
6/1/2020
Bản vẽ rất tốt   
 Đã đăng bản vẽ này
Bản vẽ thiết tốt thích hợp để tham khảo
HỖ TRỢ TRỰC TUYẾN