MÃ BẢN VẼ
61955
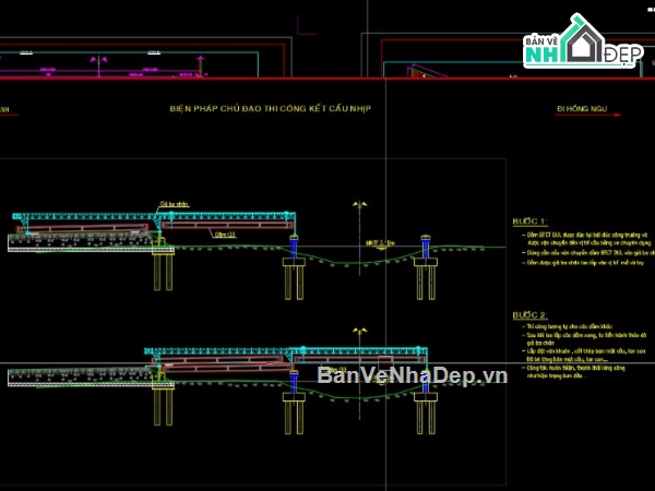
File bản vẽ mẫu cầu dầm i chéo góc 3 nhịp, mỗi nhịp dài 33m
Thiết kế thiết kế kỹ thuật cầu dầm i 3x33m chéo góc 63 độ gồm gồm các nội dung: phần chung, kết cấu phần trên, kết cấu phần dưới và thi công
Ngày đăng: 14/8/2025
File download:
.rar
Dung lượng file:
MB
Phong cách: Hiện đại
Kích thước: ...
CÔNG CỤ THIẾT KẾ:

Autocad

Sketchup

3D Max

Revit

Khác...
CÁC HẠNG MỤC CỦA BẢN VẼ:

Kiến trúc

Kết cấu

Điện

Nước

PCCC

Phối cảnh

Dự toán

Tài liệu

Khác...
NGƯỜI ĐĂNG
Bản vẽ
218
Bộ sưu tập
0
Đánh giá (431)
5/5
Ngày tham gia
17/8/2022
Mô tả chi tiết
công trình cầu được mẫu bắc qua sông (hoặc kênh) thuộc khu vực đồng bằng sông cửu long, với góc bố trí chéo 63 độ. biện pháp kết cấu áp dụng là sử dụng các dầm i đặt thẳng góc nhưng được xếp lệch nhau, liên kết bằng hệ dầm ngang. cách bố trí này tạo ra điểm gãy trên mặt bằng khi quan sát, nhưng ưu điểm là không cần mẫu lại dầm chủ và có thể tận dụng ván khuôn hiện có. hệ mố và trụ cũng được sắp xếp theo phương chéo so với tim cầu. riêng phần trụ, do nằm ở vùng nước cạn nên không cần đặt song song với hướng dòng chảy.
Bình luận (0)
Đánh giá (1)
ĐÁNH GIÁ TRUNG BÌNH
5/5
(
1 Nhận xét)
Bản vẽ rất tốt (1)
Bản vẽ tốt (0)
Bản vẽ rất hay (0)
Bản vẽ hay (0)
Bình thường (0)
Bản vẽ rất tốt
Đã đăng bản vẽ này
Bản vẽ thiết tốt thích hợp để tham khảo