MÃ BẢN VẼ
61949

File bản vẽ mố chữ u chéo góc b=12m bản vẽ

  (1 Nhận xét)     Viết đánh giá        0     0     16

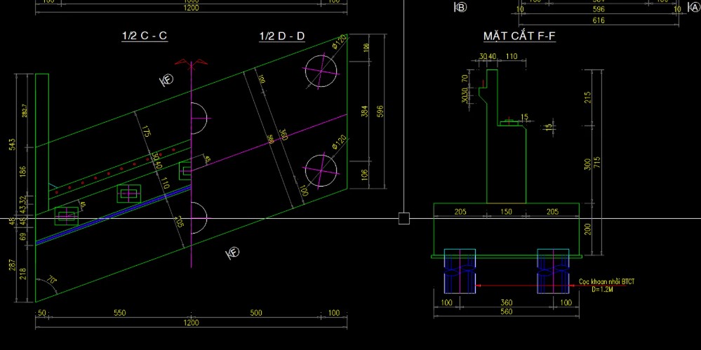
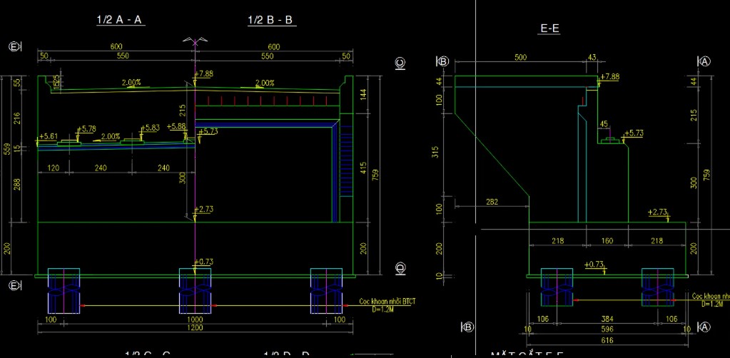
File bao danh mục các hình vẽ mô tả cấu tạo chung của mố, file bản vẽ bố trí thép chi tiết, bản bóc tách thép cùng bảng khối lượng.

Ngày đăng: 14/8/2025
File download: .rar
Dung lượng file: MB
Phong cách: Hiện đại
Kích thước: ...
CÔNG CỤ THIẾT KẾ:
Autocad
Sketchup
3D Max
Revit
Khác...
CÁC HẠNG MỤC CỦA BẢN VẼ:
Kiến trúc
Kết cấu
Điện
Nước
PCCC
Phối cảnh
Dự toán
Tài liệu
Khác...

NGƯỜI ĐĂNG
(Hạng vàng)
Xem trang
bản vẽ nhà
Bản vẽ
222
bộ sưu tập bản vẽ nhà
Bộ sưu tập
0
đánh giá mẫu bản vẽ
Đánh giá (431)
5/5
ngày tham gia bản vẽ nhà đẹp
Ngày tham gia
17/8/2022

Mô tả chi tiết

file chứa file bản vẽ danh mục mố chữ u chéo góc cho cầu có bề rộng b = 12m, bao danh mục các hình vẽ cấu tạo chung của mố, file bản vẽ bố trí thép chi tiết, bóc tách thép và bảng khối lượng.

Bình luận (0)


Đánh giá (1)

ĐÁNH GIÁ TRUNG BÌNH
5/5

(1 Nhận xét)
Bản vẽ rất tốt (1)
Bản vẽ tốt (0)
Bản vẽ rất hay (0)
Bản vẽ hay (0)
Bình thường (0)
Chia sẻ nhận xét về bản vẽ
 Viết nhận xét của bạn
Linh0 ThuvienC
Thời gian 08:43
25/10/2025
Bản vẽ rất tốt   
 Đã đăng bản vẽ này
Bản vẽ thiết tốt thích hợp để tham khảo
HỖ TRỢ TRỰC TUYẾN