MÃ BẢN VẼ
54476

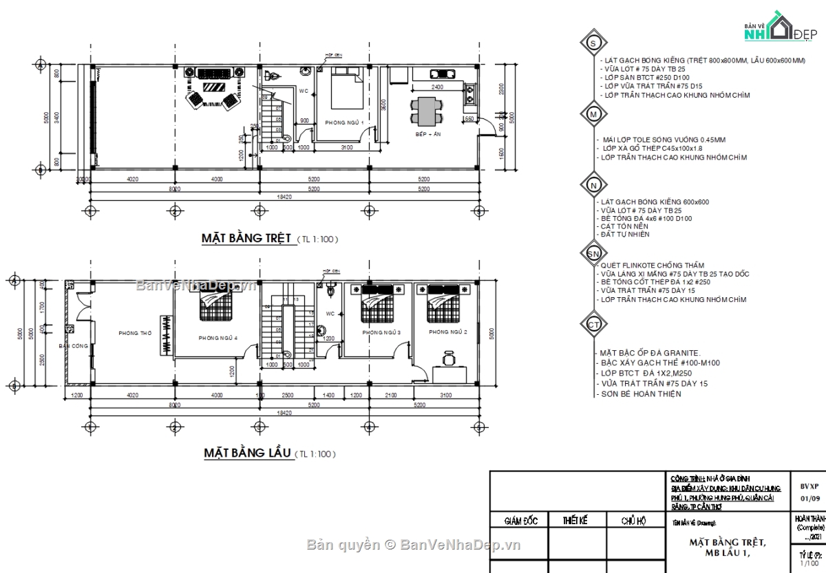
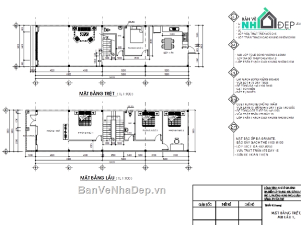
File bản vẽ nhà ở phố 2 tầng 5x18.4m miễn phí

  (1 Nhận xét)     Viết đánh giá        0     78     417

Đóng góp miễn phí cho anh chị file bản vẽ nhà ở phố 2 tầng mong anh chị ủng hộ

Ngày đăng: 19/4/2025
File download: Nhà phố 2 tân 5x18.4m free.rar
Dung lượng file: 1.1 MB
Phong cách: Hiện đại
Kích thước: ...
CÔNG CỤ THIẾT KẾ:
Autocad
Sketchup
3D Max
Revit
Khác...
CÁC HẠNG MỤC CỦA BẢN VẼ:
Kiến trúc
Kết cấu
Điện
Nước
PCCC
Phối cảnh
Dự toán
Tài liệu
Khác...

NGƯỜI ĐĂNG
(Hạng vàng)
Xem trang
bản vẽ nhà
Bản vẽ
119
bộ sưu tập bản vẽ nhà
Bộ sưu tập
0
đánh giá mẫu bản vẽ
Đánh giá (373)
5/5
ngày tham gia bản vẽ nhà đẹp
Ngày tham gia
24/10/2024

Mô tả chi tiết

Mời mọi người em cùng tham khảo model vẽ bản vẽ với bản vẽ nhà 2 tầng mới nhất năm nay nhé.

Bình luận (0)


Đánh giá (1)

ĐÁNH GIÁ TRUNG BÌNH
5/5

(1 Nhận xét)
Bản vẽ rất tốt (1)
Bản vẽ tốt (0)
Bản vẽ rất hay (0)
Bản vẽ hay (0)
Bình thường (0)
Chia sẻ nhận xét về bản vẽ
 Viết nhận xét của bạn
Kts Thành Long
Thời gian 23:51
18/5/2025
Bản vẽ rất tốt   
 Đã đăng bản vẽ này
Bản vẽ thiết tốt thích hợp để tham khảo
HỖ TRỢ TRỰC TUYẾN