MÃ BẢN VẼ
45773
File bản vẽ nhà ở phố lệch tầng 3 tầng lửng 1 tum 4.39x9.75m
(
1 Nhận xét)
Viết đánh giá
Bình luận: 0
Download: 0
Lượt xem: 250
Hồ sơ bản vẽ kiến trúc mẫu nhà phố lệch tầng 3 tầng lửng 1 tum 4.39x9.75m. dùng cho các bạn tham khảo.
Ngày đăng: 07/3/2024
File download:
NHA PHO LECH TANG.rar
Dung lượng file:
2.35 MB
Phong cách: Hiện đại
Kích thước: Rộng 4,39m, Dài 9,75m, DT 42,8m2
CÔNG CỤ THIẾT KẾ:

Autocad

Sketchup

3D Max

Revit

Khác...
CÁC HẠNG MỤC CỦA BẢN VẼ:

Kiến trúc

Kết cấu

Điện

Nước

PCCC

Phối cảnh

Dự toán

Tài liệu

Khác...
NGƯỜI ĐĂNG
Bản vẽ
361
Bộ sưu tập
0
Đánh giá (407)
4/5
Ngày tham gia
5/5/2018
Mô tả chi tiết
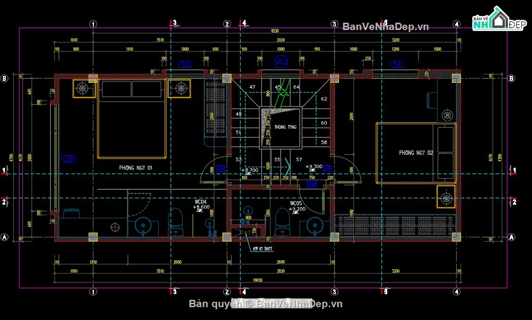
nhà phố lệch tầng 3 tầng lửng 1 tum 4.39x9.75m
tầng 1: khách + không gian bán hàng, wc
tầng lửng: phòng bếp + ăn
tầng 2: 2 phòng ngủ, 2 wc
tầng 3: 2 phòng ngủ, 2 wc
tầng áp mái: phòng thờ, sân phơi
Bình luận (0)
Đánh giá (1)
ĐÁNH GIÁ TRUNG BÌNH
5/5
(
1 Nhận xét)
Bản vẽ rất tốt (1)
Bản vẽ tốt (0)
Bản vẽ rất hay (0)
Bản vẽ hay (0)
Bình thường (0)
Bản vẽ rất tốt
Đã mua bản vẽ tại Banvenhadep.vn
Bản vẽ thiết tốt thích hợp để tham khảo