MÃ BẢN VẼ
46164
File cad bản vẽ cấp phép mẫu nhà phố 4 tầng kiến trúc tân cổ điển 4.5x14m mặt tiền
(
1 Nhận xét)
Viết đánh giá
Bình luận: 0
Download: 2
Lượt xem: 442
Bản vẽ cấp phép thiết kế nhà liền kề 3 tầng 1 tum kích thước thiết kế 4.5x20m có sân trước sân sau nhà
Ngày đăng: 31/3/2024
File download:
Nha pho 4 tang 4.5x14m.DWG
Dung lượng file:
697 KB
Phong cách: Hiện đại
Kích thước: Rộng 4,5m, Dài 14m, DT 63m2
CÔNG CỤ THIẾT KẾ:

Autocad

Sketchup

3D Max

Revit

Khác...
CÁC HẠNG MỤC CỦA BẢN VẼ:

Kiến trúc

Kết cấu

Điện

Nước

PCCC

Phối cảnh

Dự toán

Tài liệu

Khác...
NGƯỜI ĐĂNG
Bản vẽ
259
Bộ sưu tập
0
Đánh giá (601)
5/5
Ngày tham gia
25/2/2023
Mô tả chi tiết
bản vẽ thiết kế cấp phép nhà ở 4 tầng kích thước thiết kế xây dựng 4.5x14m, kích thước thiết kế lô đất 4.5x20m.
công năng:
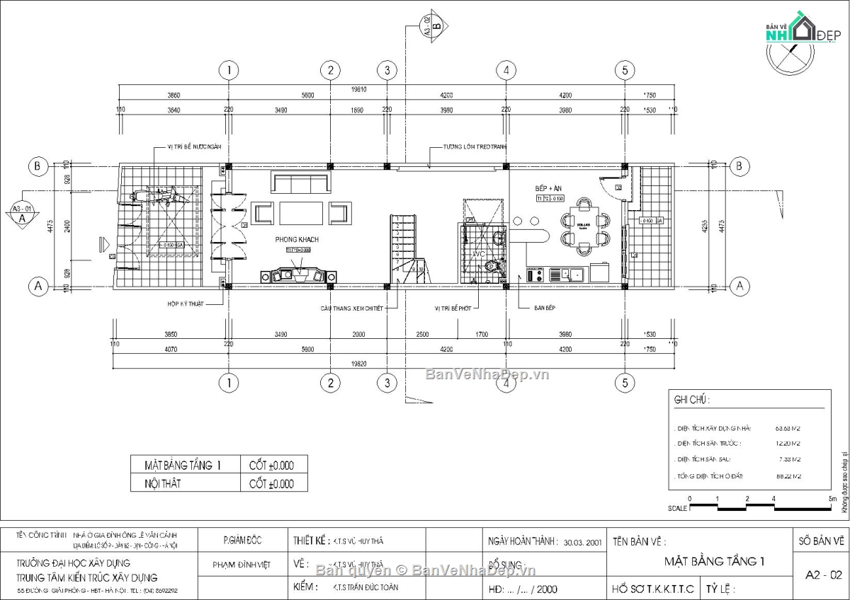
t1: sân trước, phòng khách, wc tầng (có thể thiết kế sàn kho), bếp + ăn, sân sau
t2: 02 phòng ngủ có ban công, wc tầng.
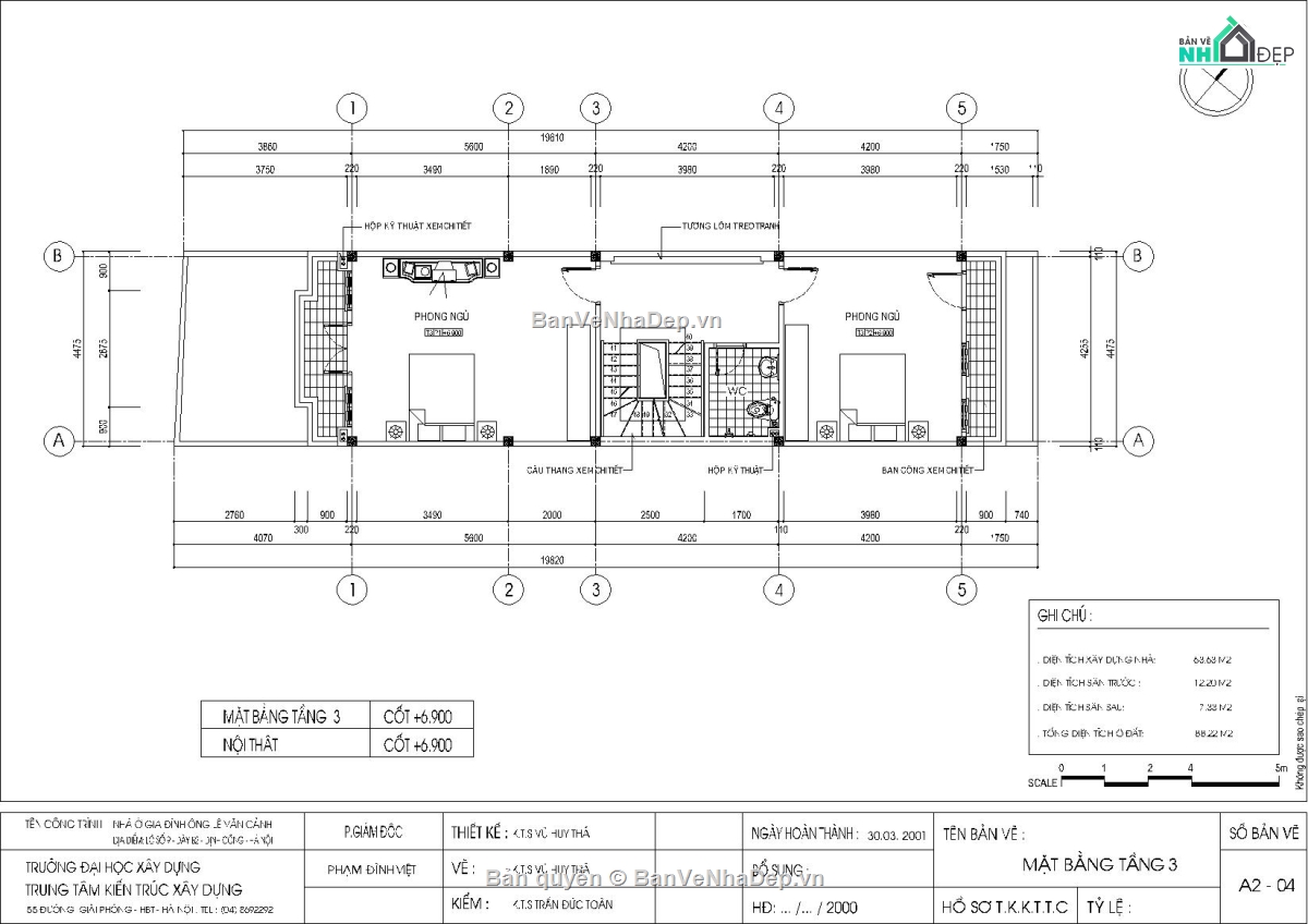
t3: 02 phòng ngủ có ban công, wc tầng.
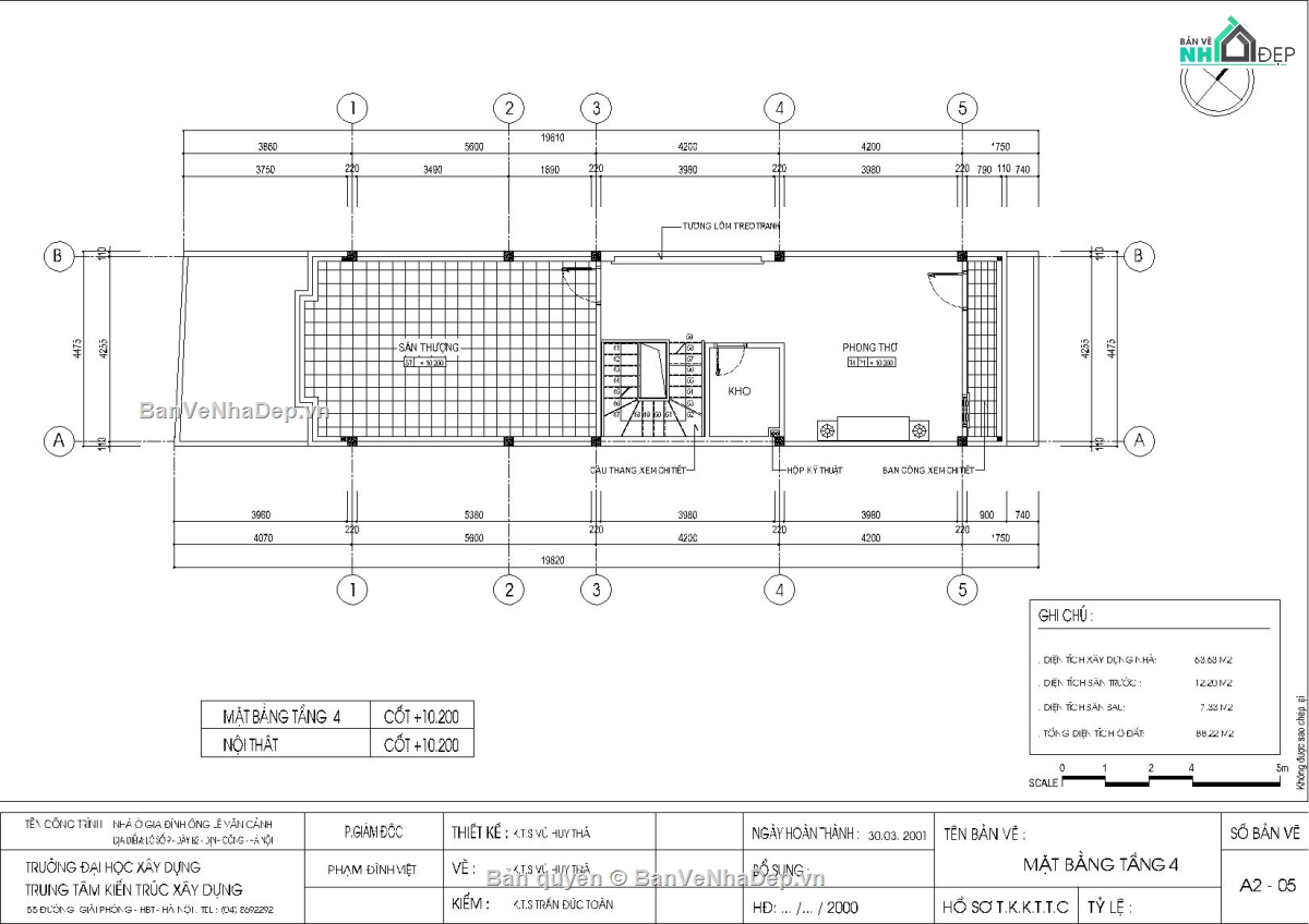
t4: phòng thờ, kho, sân thượng
hồ sơ thiết kế cấp phép bao gồm:
- mặt bằng định vị khu đất
- mặt bằng các tầng.
- mặt đứng (2 phương án)
- mặt cắt.
- đầy đủ cổng.
- mặt bằng móng (cấp phép)
- mặt bằng cấp thoát nước (cấp phép)
Bình luận (0)
Đánh giá (1)
ĐÁNH GIÁ TRUNG BÌNH
5/5
(
1 Nhận xét)
Bản vẽ rất tốt (1)
Bản vẽ tốt (0)
Bản vẽ rất hay (0)
Bản vẽ hay (0)
Bình thường (0)
7Plus
Thời gian 23:10
5/4/2024
Bản vẽ rất tốt
Đã đăng bản vẽ này
Bản vẽ thiết tốt thích hợp để tham khảo