MÃ BẢN VẼ
61998

File cad hồ bơi khu nghỉ dưỡng kích thước kc

  (1 Nhận xét)     Viết đánh giá        0     0     2

Mẫu bản vẽ cad hồ bơi nghỉ dưỡng kiến trúc, kết cấu, me, mẫu model cad

Ngày đăng: 18/8/2025
File download: .rar
Dung lượng file: MB
Phong cách: Hiện đại
Kích thước: ...
CÔNG CỤ THIẾT KẾ:
Autocad
Sketchup
3D Max
Revit
Khác...
CÁC HẠNG MỤC CỦA BẢN VẼ:
Kiến trúc
Kết cấu
Điện
Nước
PCCC
Phối cảnh
Dự toán
Tài liệu
Khác...

NGƯỜI ĐĂNG
(Hạng vàng)
Xem trang
bản vẽ nhà
Bản vẽ
356
bộ sưu tập bản vẽ nhà
Bộ sưu tập
0
đánh giá mẫu bản vẽ
Đánh giá (458)
5/5
ngày tham gia bản vẽ nhà đẹp
Ngày tham gia
9/6/2025

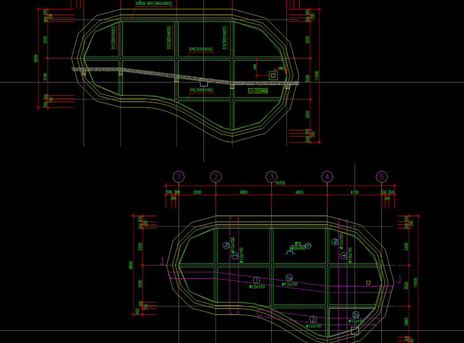
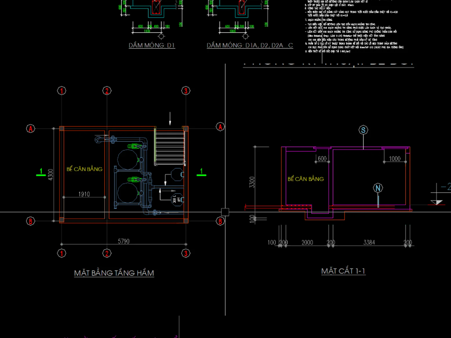
Mô tả chi tiết

hồ bơi không chỉ là một tiện ích giải trí mà còn là một điểm nhấn kiến trúc, mang lại giá trị thẩm mỹ và thư giãn cho không gian sống hoặc khu nghỉ dưỡng. việc thiết kế và thi công một hồ bơi đòi hỏi sự chuẩn xác từ khâu thiết kế đến lựa chọn vật liệu và quy trình xây dựng.

Bình luận (0)


Đánh giá (1)

ĐÁNH GIÁ TRUNG BÌNH
5/5

(1 Nhận xét)
Bản vẽ rất tốt (1)
Bản vẽ tốt (0)
Bản vẽ rất hay (0)
Bản vẽ hay (0)
Bình thường (0)
Chia sẻ nhận xét về bản vẽ
 Viết nhận xét của bạn
Lan Chi Arc
Thời gian 08:43
25/10/2025
Bản vẽ rất tốt   
 Đã đăng bản vẽ này
Bản vẽ thiết tốt thích hợp để tham khảo
HỖ TRỢ TRỰC TUYẾN