MÃ BẢN VẼ
58254
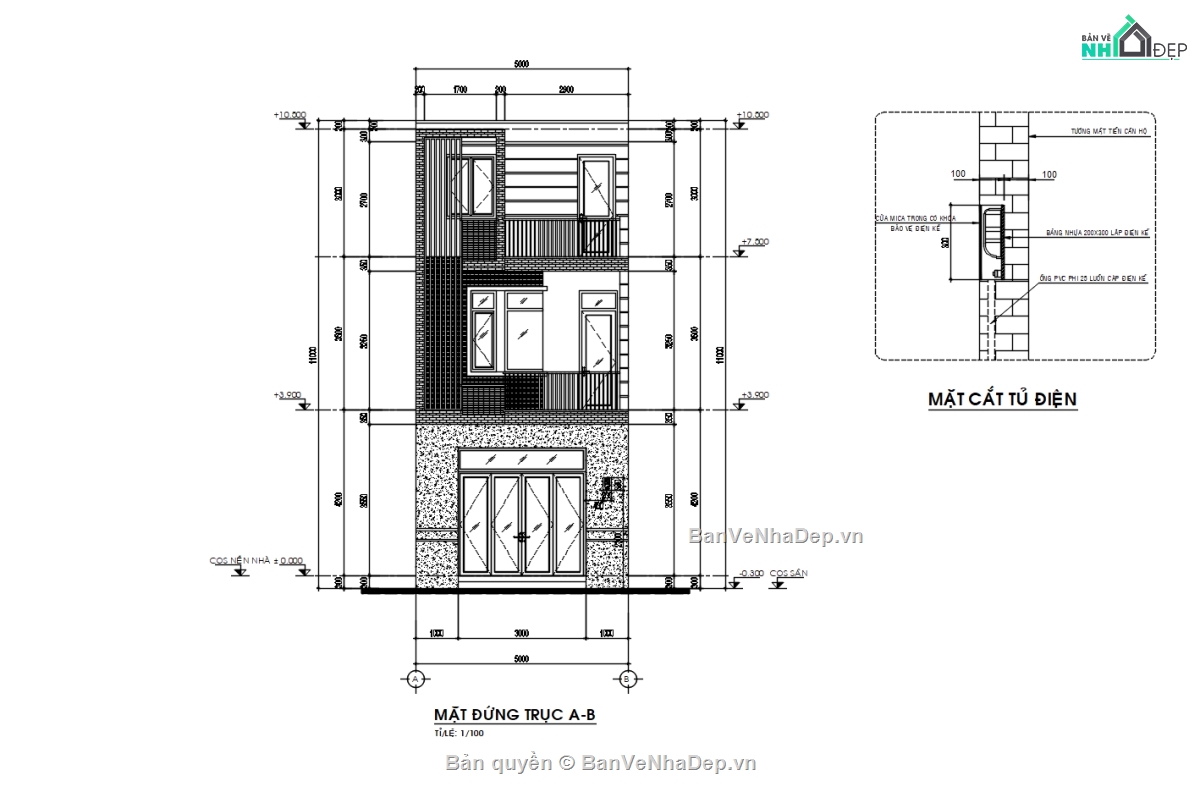
File cad mẫu nhà phố 2 tầng 1 tum 5x21.7m
Hồ sơ mẫu nhà phố 2 tầng 1 tum chi tiết kiến trúc, kết cấu, điện nước kèm model .skp 3dmax
Ngày đăng: 31/5/2025
File download:
nhà phố 2 tầng 1 tum 5x21.7m.rar
Dung lượng file:
11.9 MB
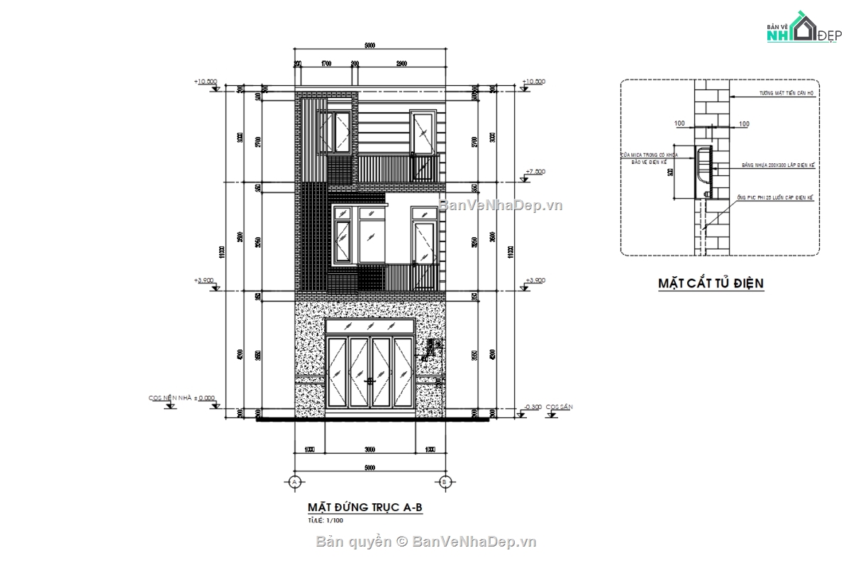
Phong cách: Hiện đại
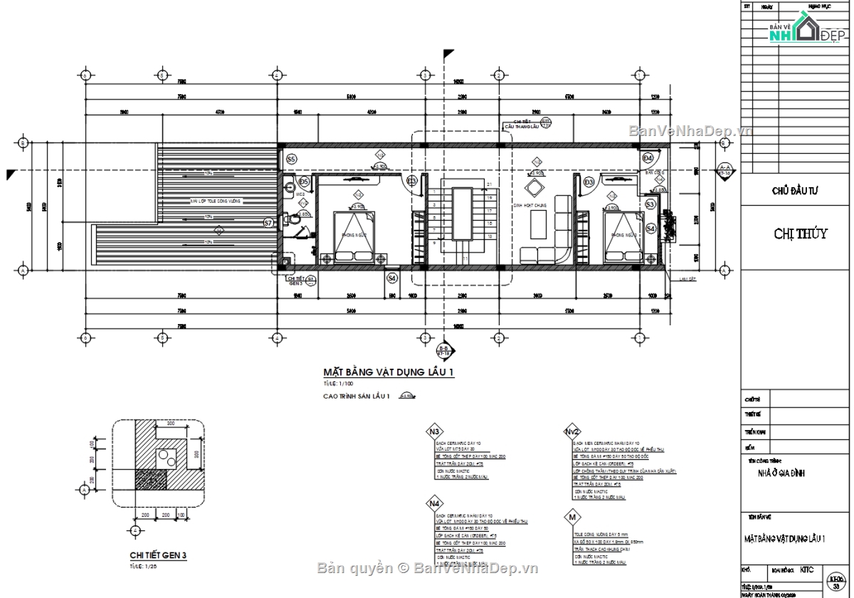
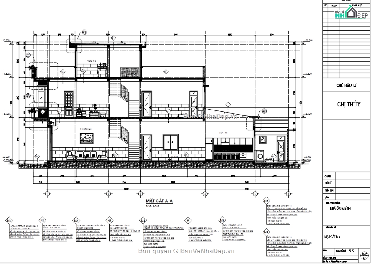
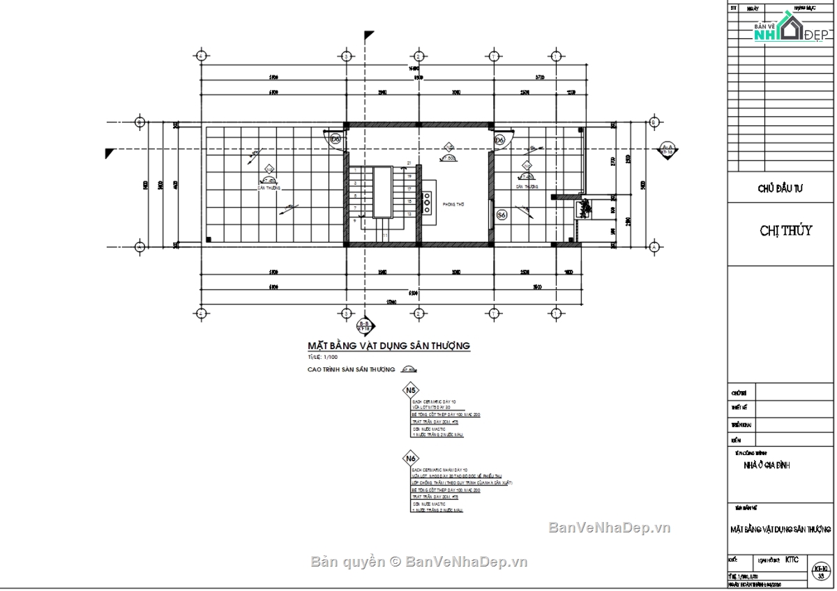
Kích thước: Rộng 5m, Dài 21,7m, DT 108,5m2
CÔNG CỤ THIẾT KẾ:

Autocad

Sketchup

3D Max

Revit

Khác...
CÁC HẠNG MỤC CỦA BẢN VẼ:

Kiến trúc

Kết cấu

Điện

Nước

PCCC

Phối cảnh

Dự toán

Tài liệu

Khác...
NGƯỜI ĐĂNG
Bản vẽ
119
Bộ sưu tập
0
Đánh giá (373)
5/5
Ngày tham gia
24/10/2024
Mô tả chi tiết
Công năng:
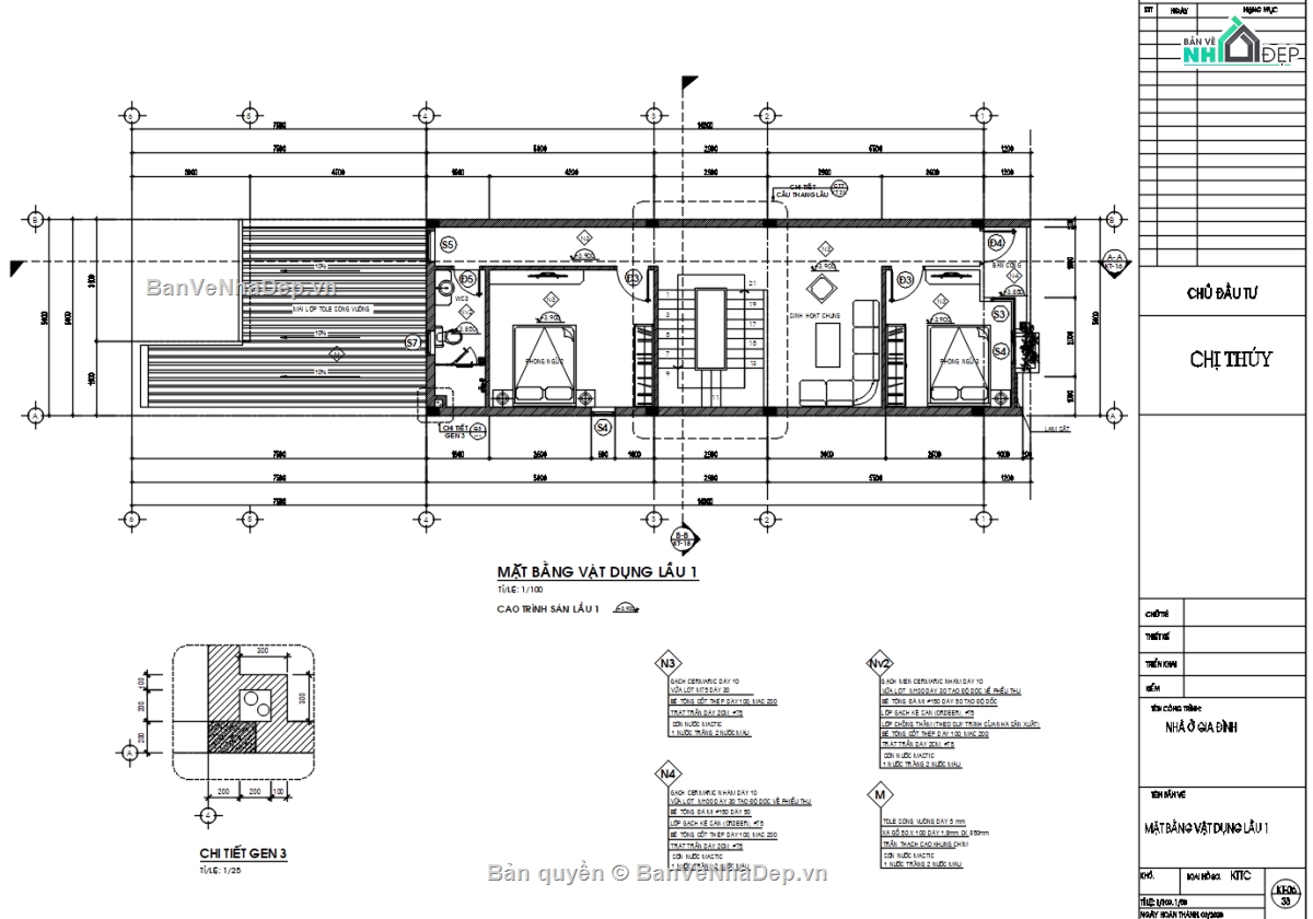
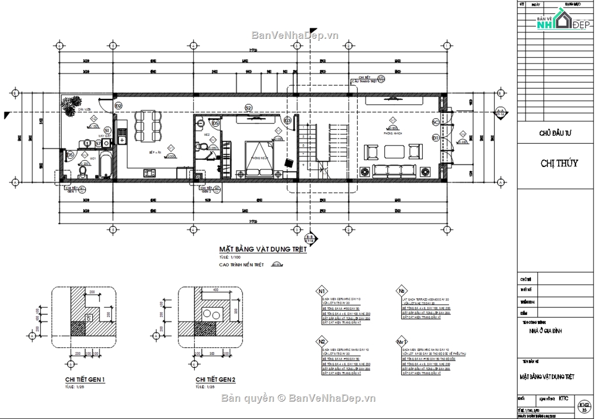
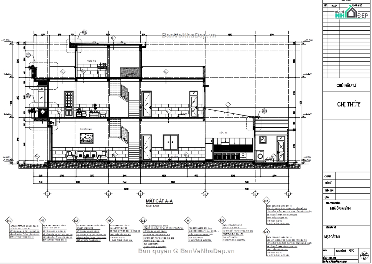
tầng 1: 1 phòng khách, 1 phòng bếp ăn, 1 phòng ngủ và 1 khu wc chung.
tầng 2: 2 phòng ngủ, 1 phòng sinh hoạt chung
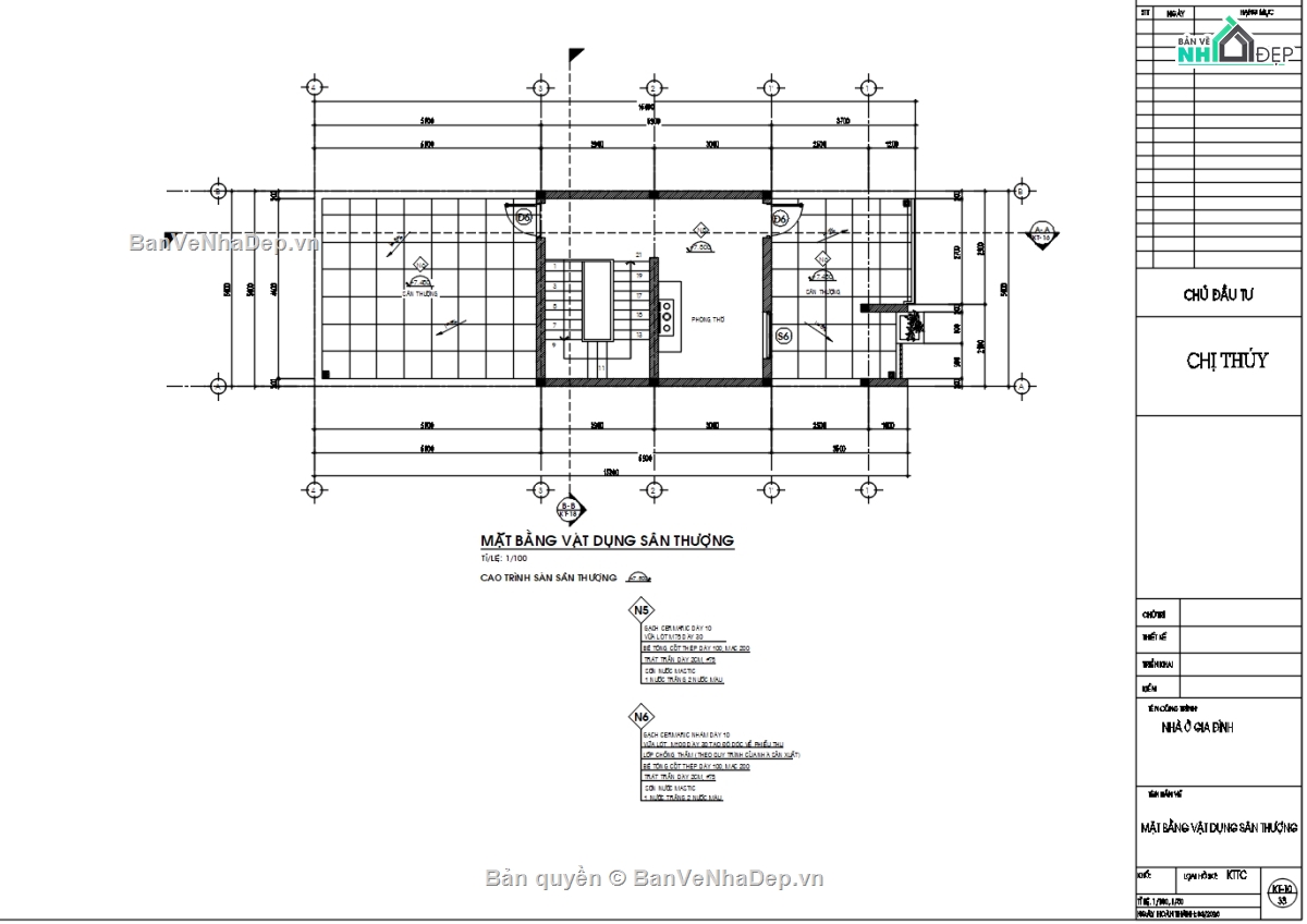
tầng 3: phòng thờ và sân phơi
Bình luận (0)
Đánh giá (1)
ĐÁNH GIÁ TRUNG BÌNH
5/5
(
1 Nhận xét)
Bản vẽ rất tốt (1)
Bản vẽ tốt (0)
Bản vẽ rất hay (0)
Bản vẽ hay (0)
Bình thường (0)
Bản vẽ rất tốt
Đã mua bản vẽ tại Banvenhadep.vn
Bản vẽ thiết tốt thích hợp để tham khảo