Đăng nhập
Đăng kí
NẠP TIỀN
THƯ VIỆN BẢN VẼ
HỘI KIẾN TRÚC SƯ
ĐĂNG TIN & THẢO LUẬN
CÔNG CỤ
Autocad
Sketchup
3D Max
Revit
Khác...
DANH MỤC
Biệt thự
Lâu đài, dinh thự
Biệt thự 1 Tầng
Biệt thự 2 Tầng
Biệt thự 3 Tầng
Biệt thự Trên 3 Tầng
Nhà phố
Nhà phố 1 Tầng
Nhà phố 2 Tầng
Nhà phố 3 Tầng
Nhà phố 4 Tầng
Nhà phố Trên 4 Tầng
Nhà xưởng
Nội thất
Biệt thự
Nhà phố
Chung cư, Văn phòng
Cửa hàng, Quán
Nội thất khác...
Ngoại thất
Bản vẽ khác...
Nhà thờ, Đình chùa
Chung cư, Văn phòng
Công trình xã hội
Cửa hàng, Quán
Khách sạn
Nhà cấp 4
Bản vẽ khác...
BỘ SƯU TẬP
Tìm bản vẽ
Autocad
Sketchup
3D Max
Revit
Khác...
ĐĂNG BẢN VẼ
×
ĐĂNG NHẬP
Đăng nhập nhanh
Log in
Log in
Bạn chưa có tài khoản Banvenhadep.vn?
Đăng ký ngay
Email
*
Password
*
Mã khác
Quên mật khẩu?
Đăng nhập
Trang chủ
Biệt thự "Lâu đài, dinh thự"
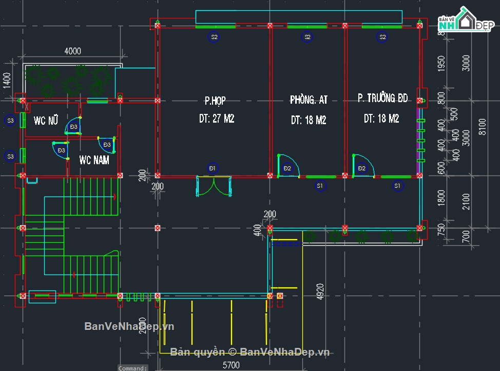
File cad nhà cảng vụ 8.1x15.9m
MÃ BẢN VẼ
58107
File cad nhà cảng vụ 8.1x15.9m
(
1 Nhận xét
)
Viết đánh giá
Bình luận:
0
Download:
0
Lượt xem:
11
Hồ sơ nhà cảng vụ được giới thiệu với hồ sơ có chi tiết kiến trúc kết cấu
Danh mục:
Biệt thự
Lâu đài, dinh thự
Ngày đăng:
24/5/2025
File download:
Nhà cảng vụ 8.1x15.9m đầy đủ kiến trúc kết cấu.rar
Dung lượng file:
5.3 MB
Phong cách:
Hiện đại
Kích thước:
Rộng
8,1m
, Dài
15,9m
, DT
128,79m
2
CÔNG CỤ THIẾT KẾ:
Autocad
Sketchup
3D Max
Revit
Khác...
CÁC HẠNG MỤC CỦA BẢN VẼ:
Kiến trúc
Kết cấu
Điện
Nước
PCCC
Phối cảnh
Dự toán
Tài liệu
Khác...
NGƯỜI ĐĂNG
Kts Thành Long
(Hạng vàng)
Xem
trang
Bản vẽ
119
Bộ sưu tập
0
Đánh giá (
373
)
5/5
Ngày tham gia
24/10/2024
Mô tả chi tiết
Bản vẽ đủ và đẹp, giới thiệu cho anh chị để anh chị tham khảo.
Bình luận (
0
)
BÌNH LUẬN
BÌNH LUẬN
Đánh giá (
1
)
ĐÁNH GIÁ TRUNG BÌNH
5
/5
(
1 Nhận xét
)
Bản vẽ rất tốt
(1)
Bản vẽ tốt
(0)
Bản vẽ rất hay
(0)
Bản vẽ hay
(0)
Bình thường
(0)
Chia sẻ nhận xét về bản vẽ
Viết nhận xét của bạn
Kts Thành Long
Thời gian 14:05
5/7/2025
Bản vẽ rất tốt
Đã đăng bản vẽ này
Bản vẽ thiết tốt thích hợp để tham khảo
Hiển thị 20
Hiển thị 50
Tất cả
×
NẠP TIỀN DOWNLOAD NGAY
Bạn đang download:
[Mã bản vẽ
58107
]
Phí tải
50.000
đ
CHUYỂN KHOẢN
Bạn cần đăng nhập để tải bản vẽ qua chức năng này!
ĐĂNG NHẬP NGAY
Phí download
50.000
đ
DOWNLOAD
NGAY
Link download dự phòng
Bạn có bản vẽ hay
ĐĂNG
BÁN
NGAY
LƯU
VÀO
YÊU THÍCH
Báo
vi phạm
bản quyền
Gửi hỗ trợ - Báo lỗi
Gửi ngay
CHIA SẺ NHANH
(BẢN VẼ
58107
)
Gửi tới email bạn bè
TỪ KHÓA LIÊN QUAN
Bản vẽ nhà cảng vụ
bản vẽ nhà công vụ
nhà cảng vụ
Bản vẽ tương tự
BẢN VẼ
Công trình xã hội
851
Bản vẽ autocad kèm dự toán thiết kế nhà công vụ giáo viên 5 phòng KT 9.15x18.2m
20.000
đ
BẢN VẼ
Công trình xã hội
748
File bản vẽ thiết kế kết cấu, kiến trúc nhà công vụ 4 tầng KT 8.7x21.6m Tỉnh Hòa Bình
20.000
đ
BẢN VẼ
Công trình xã hội
963
Trọn bộ bản vẽ UBND | Nhà công vụ kích thước 9.5x35.5m gồm: kiến trúc, kết cấu, điện nước
30.000
đ
Gợi ý cho bạn
BẢN VẼ
Nhà phố 3 Tầng
942
File cad xin phép xây dựng nhà phố 3 tầng KT 4.6x15.7m gồm: KT+M&E
20.000
đ
BẢN VẼ
Bản vẽ khác...
4549
File Autocad 3 mẫu bể nước 90m3, 110m3, 120m3 phòng cháy chữa cháy
50.000
đ
BẢN VẼ
Nhà xưởng
1527
Bản vẽ autocad thiết kế hệ thống phòng cháy chữa cháy nhà kho số 2, kho bao bi
20.000
đ
BẢN VẼ
Chung cư, Văn phòng
2211
Bản vẽ hệ thống PCCC chung cư 10 tầng kích thước 16.5x17.6m
5.000
đ
BẢN VẼ
Chung cư, Văn phòng
2630
File cad thiết kế hệ thống PCCC nhà trưng bày văn phòng làm việc 7 tầng KT 15x23m
10.000
đ
HỖ TRỢ TRỰC TUYẾN