Đăng nhập
Đăng kí
NẠP TIỀN
THƯ VIỆN BẢN VẼ
HỘI KIẾN TRÚC SƯ
ĐĂNG TIN & THẢO LUẬN
CÔNG CỤ
Autocad
Sketchup
3D Max
Revit
Khác...
DANH MỤC
Biệt thự
Lâu đài, dinh thự
Biệt thự 1 Tầng
Biệt thự 2 Tầng
Biệt thự 3 Tầng
Biệt thự Trên 3 Tầng
Nhà phố
Nhà phố 1 Tầng
Nhà phố 2 Tầng
Nhà phố 3 Tầng
Nhà phố 4 Tầng
Nhà phố Trên 4 Tầng
Nhà xưởng
Nội thất
Biệt thự
Nhà phố
Chung cư, Văn phòng
Cửa hàng, Quán
Nội thất khác...
Ngoại thất
Bản vẽ khác...
Nhà thờ, Đình chùa
Chung cư, Văn phòng
Công trình xã hội
Cửa hàng, Quán
Khách sạn
Nhà cấp 4
Bản vẽ khác...
BỘ SƯU TẬP
Tìm bản vẽ
Autocad
Sketchup
3D Max
Revit
Khác...
ĐĂNG BẢN VẼ
×
ĐĂNG NHẬP
Đăng nhập nhanh
Log in
Log in
Bạn chưa có tài khoản Banvenhadep.vn?
Đăng ký ngay
Email
*
Password
*
Mã khác
Quên mật khẩu?
Đăng nhập
Trang chủ
Nội thất "Nội thất khác..."
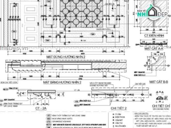
File cad nội thất căn hộ bason 120m2
MÃ BẢN VẼ
60318
File cad nội thất căn hộ bason 120m2
(
1 Nhận xét
)
Viết đánh giá
Bình luận:
0
Download:
0
Lượt xem:
33
Share cho các bạn thiết kế thiết kế nội thất căn hộ bason, thiết kế gửi các bạn
Danh mục:
Nội thất
Nội thất khác...
Ngày đăng:
29/7/2025
File download:
.rar
Dung lượng file:
MB
Phong cách:
Hiện đại
Kích thước:
...
CÔNG CỤ THIẾT KẾ:
Autocad
Sketchup
3D Max
Revit
Khác...
CÁC HẠNG MỤC CỦA BẢN VẼ:
Kiến trúc
Kết cấu
Điện
Nước
PCCC
Phối cảnh
Dự toán
Tài liệu
Khác...
NGƯỜI ĐĂNG
Lan Chi Arc
(Hạng vàng)
Xem
trang
Bản vẽ
355
Bộ sưu tập
0
Đánh giá (
458
)
5/5
Ngày tham gia
9/6/2025
Mô tả chi tiết
Trong file cad này bao đầy đủ các file cad đầy đủ về file cad nội thất, từ trần tường sàn đến đồ nội thất
hi vọng nó sẽ hữu ích đối với các bạn
Bình luận (
0
)
BÌNH LUẬN
BÌNH LUẬN
Đánh giá (
1
)
ĐÁNH GIÁ TRUNG BÌNH
5
/5
(
1 Nhận xét
)
Bản vẽ rất tốt
(1)
Bản vẽ tốt
(0)
Bản vẽ rất hay
(0)
Bản vẽ hay
(0)
Bình thường
(0)
Chia sẻ nhận xét về bản vẽ
Viết nhận xét của bạn
Lan Chi Arc
Thời gian 23:19
10/8/2025
Bản vẽ rất tốt
Đã đăng bản vẽ này
Bản vẽ thiết tốt thích hợp để tham khảo
Hiển thị 20
Hiển thị 50
Tất cả
×
NẠP TIỀN DOWNLOAD NGAY
Bạn đang download:
[Mã bản vẽ
60318
]
Phí tải
89.000
đ
CHUYỂN KHOẢN
Bạn cần đăng nhập để tải bản vẽ qua chức năng này!
ĐĂNG NHẬP NGAY
Phí download
89.000
đ
DOWNLOAD
NGAY
Link download dự phòng
Bạn có bản vẽ hay
ĐĂNG
BÁN
NGAY
LƯU
VÀO
YÊU THÍCH
Báo
vi phạm
bản quyền
Gửi hỗ trợ - Báo lỗi
Gửi ngay
CHIA SẺ NHANH
(BẢN VẼ
60318
)
Gửi tới email bạn bè
TỪ KHÓA LIÊN QUAN
Thiết kế nội thất
nội thất căn hộ
căn hộ nội thất
thiết kế nội thất căn hộ
Bản vẽ tương tự
BẢN VẼ
Chung cư, Văn phòng
2307
Bản vẽ cad nội thất căn hộ chung cư home city (căn 69m)
50.000
đ
BẢN VẼ
Chung cư, Văn phòng
1082
Model su + map nội thất tầng 1 căn hộ chung cư
30.000
đ
BẢN VẼ
Chung cư, Văn phòng
1424
Model su nội thất căn hộ - phòng khách + Bếp ăn
30.000
đ
BẢN VẼ
Chung cư, Văn phòng
1379
File autocad hồ sơ TKKT nội thất toàn bộ các căn hộ cao cấp
200.000
đ
BẢN VẼ
Chung cư, Văn phòng
1073
File sketchup thiết kế phối cảnh nội thất căn hộ chung cư cực đẹp
10.000
đ
Gợi ý cho bạn
BẢN VẼ
Biệt thự 1 Tầng
291
Biệt thự 11x11m model su việt nam
30.000
đ
BẢN VẼ
Nhà cấp 4
277
Mẫu nhà cấp 4 model sketchup việt nam 13x15m
30.000
đ
BẢN VẼ
Nhà phố 3 Tầng
261
File sketchup nhà ở 3 tầng 7.7x8.7m
20.000
đ
BẢN VẼ
Nhà phố 3 Tầng
428
File sketchup nhà dân 3 tầng cao cấp 10x12.3m
15.000
đ
BẢN VẼ
Biệt thự Trên 3 Tầng
556
Model .skp nhà ở phố 5 tầng 5.3x8m
MIỄN PHÍ
HỖ TRỢ TRỰC TUYẾN