MÃ BẢN VẼ
58259
File cad revit nhà dân 2 tầng 5x20m
Share thiết kế nhà dân 2 tầng để các bạn có thể tham khảo để anh chị có thể sử dụng
Ngày đăng: 31/5/2025
File download:
Revit nhà phố 2 tầng 5x20m.rar
Dung lượng file:
113 MB
Phong cách: Hiện đại
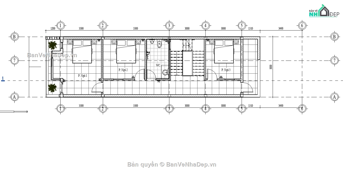
Kích thước: Rộng 5m, Dài 20m, DT 100m2
CÔNG CỤ THIẾT KẾ:

Autocad

Sketchup

3D Max

Revit

Khác...
CÁC HẠNG MỤC CỦA BẢN VẼ:

Kiến trúc

Kết cấu

Điện

Nước

PCCC

Phối cảnh

Dự toán

Tài liệu

Khác...
NGƯỜI ĐĂNG
Bản vẽ
119
Bộ sưu tập
0
Đánh giá (373)
5/5
Ngày tham gia
24/10/2024
Mô tả chi tiết
Bản vẽ dạng phác thảo, có các thiết kế cơ bản mb,mđ,mc và các file kt, kc, đn tham khảo.
Công năng:
tầng 1: khu kinh doanh, 1 phòng bếp ăn và 1 khu wc chung
tầng 2: 3 phòng ngủ và 1 khu wc chung.
Bình luận (0)
Đánh giá (1)
ĐÁNH GIÁ TRUNG BÌNH
5/5
(
1 Nhận xét)
Bản vẽ rất tốt (1)
Bản vẽ tốt (0)
Bản vẽ rất hay (0)
Bản vẽ hay (0)
Bình thường (0)
Bản vẽ rất tốt
Đã mua bản vẽ tại Banvenhadep.vn
Bản vẽ thiết tốt thích hợp để tham khảo