Đăng nhập
Đăng kí
NẠP TIỀN
THƯ VIỆN BẢN VẼ
HỘI KIẾN TRÚC SƯ
ĐĂNG TIN & THẢO LUẬN
CÔNG CỤ
Autocad
Sketchup
3D Max
Revit
Khác...
DANH MỤC
Biệt thự
Lâu đài, dinh thự
Biệt thự 1 Tầng
Biệt thự 2 Tầng
Biệt thự 3 Tầng
Biệt thự Trên 3 Tầng
Nhà phố
Nhà phố 1 Tầng
Nhà phố 2 Tầng
Nhà phố 3 Tầng
Nhà phố 4 Tầng
Nhà phố Trên 4 Tầng
Nhà xưởng
Nội thất
Biệt thự
Nhà phố
Chung cư, Văn phòng
Cửa hàng, Quán
Nội thất khác...
Ngoại thất
Bản vẽ khác...
Nhà thờ, Đình chùa
Chung cư, Văn phòng
Công trình xã hội
Cửa hàng, Quán
Khách sạn
Nhà cấp 4
Bản vẽ khác...
BỘ SƯU TẬP
Tìm bản vẽ
Autocad
Sketchup
3D Max
Revit
Khác...
ĐĂNG BẢN VẼ
×
ĐĂNG NHẬP
Đăng nhập nhanh
Log in
Log in
Bạn chưa có tài khoản Banvenhadep.vn?
Đăng ký ngay
Email
*
Password
*
Mã khác
Quên mật khẩu?
Đăng nhập
Trang chủ
Công trình xã hội
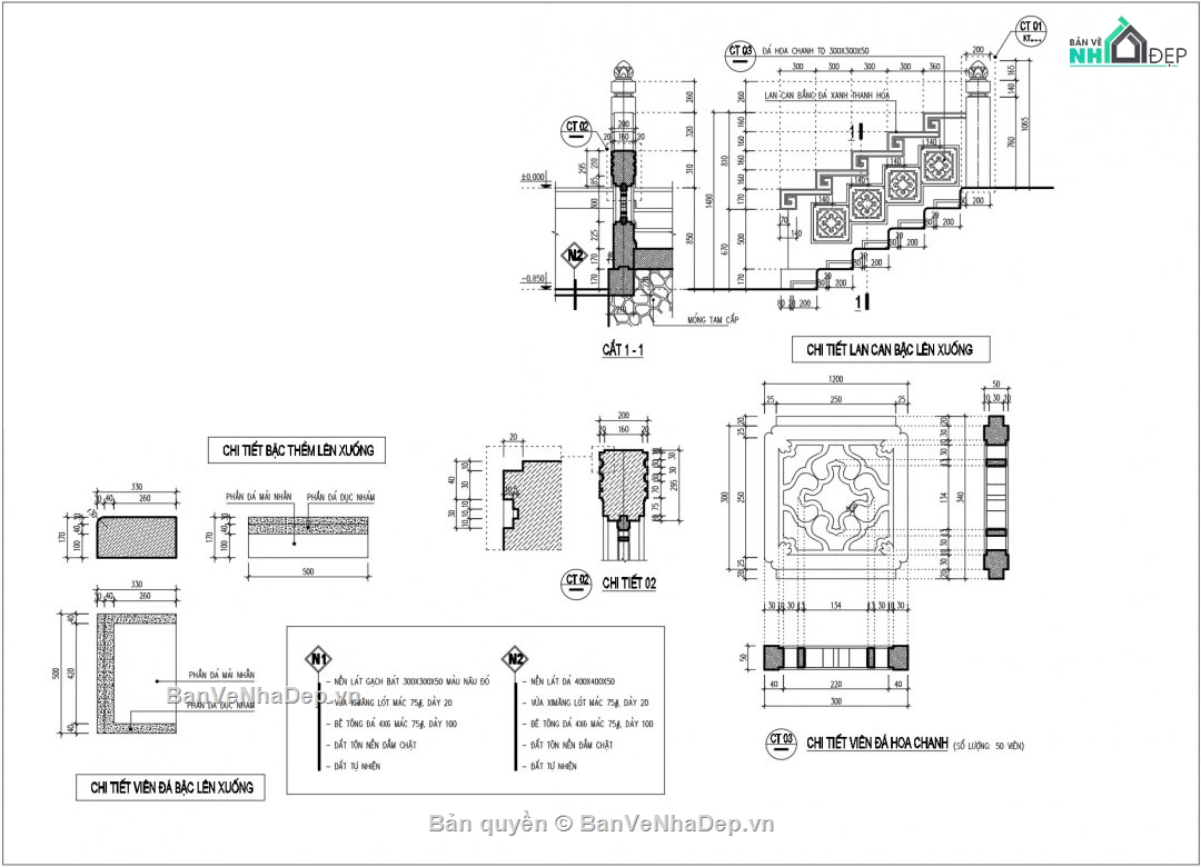
File dwg mẫu bản vẽ mẫu nhà bát giác
MÃ BẢN VẼ
60597
File dwg mẫu bản vẽ mẫu nhà bát giác
(
1 Nhận xét
)
Viết đánh giá
Bình luận:
0
Download:
0
Lượt xem:
79
Đóng góp cho anh chị mẫu bản vẽ mẫu nhà bát giác full mong anh chị ủng hộ
Danh mục:
Công trình xã hội
Ngày đăng:
07/8/2025
File download:
batgiac.zip
Dung lượng file:
16 MB
Phong cách:
Hiện đại
Kích thước:
...
CÔNG CỤ THIẾT KẾ:
Autocad
Sketchup
3D Max
Revit
Khác...
CÁC HẠNG MỤC CỦA BẢN VẼ:
Kiến trúc
Kết cấu
Điện
Nước
PCCC
Phối cảnh
Dự toán
Tài liệu
Khác...
NGƯỜI ĐĂNG
Kts Thành Long
(Hạng vàng)
Xem
trang
Bản vẽ
119
Bộ sưu tập
0
Đánh giá (
373
)
5/5
Ngày tham gia
24/10/2024
Mô tả chi tiết
thư viện cad - mẫu bản vẽ mẫu nhà bát giác. các bạn có thể xem và tải gồm này theo link bên dưới.
Bình luận (
0
)
BÌNH LUẬN
BÌNH LUẬN
Đánh giá (
1
)
ĐÁNH GIÁ TRUNG BÌNH
5
/5
(
1 Nhận xét
)
Bản vẽ rất tốt
(1)
Bản vẽ tốt
(0)
Bản vẽ rất hay
(0)
Bản vẽ hay
(0)
Bình thường
(0)
Chia sẻ nhận xét về bản vẽ
Viết nhận xét của bạn
Kts Thành Long
Thời gian 23:20
10/8/2025
Bản vẽ rất tốt
Đã mua bản vẽ tại Banvenhadep.vn
Bản vẽ thiết tốt thích hợp để tham khảo
Hiển thị 20
Hiển thị 50
Tất cả
×
NẠP TIỀN DOWNLOAD NGAY
Bạn đang download:
[Mã bản vẽ
60597
]
Phí tải
150.000
đ
CHUYỂN KHOẢN
Bạn cần đăng nhập để tải bản vẽ qua chức năng này!
ĐĂNG NHẬP NGAY
Phí download
150.000
đ
DOWNLOAD
NGAY
Link download dự phòng
Bạn có bản vẽ hay
ĐĂNG
BÁN
NGAY
LƯU
VÀO
YÊU THÍCH
Báo
vi phạm
bản quyền
Gửi hỗ trợ - Báo lỗi
Gửi ngay
CHIA SẺ NHANH
(BẢN VẼ
60597
)
Gửi tới email bạn bè
TỪ KHÓA LIÊN QUAN
nhà bát giác
cad nhà bát giác
thiết kế nhà bát giác
Bản vẽ tương tự
BẢN VẼ
Ngoại thất
918
File 3d sketchup nhà bát giác 3.1x3.1m
30.000
đ
BẢN VẼ
Nhà phố 3 Tầng
950
Share miễn phí mẫu nhà 3 tầng bát giác
MIỄN PHÍ
BẢN VẼ
Bản vẽ khác...
3573
File cad sơ bộ thiết kế nhà bát giác (thủy đình) giữa hồ
15.000
đ
Gợi ý cho bạn
BẢN VẼ
Biệt thự
1453
Mẫu thiết kế 3Dmax Nội thất Phòng khách Tân cổ điển
40.000
đ
BẢN VẼ
Cửa hàng, Quán
1457
Bản thiết kế.skp 2019 Nội thất Spa kèm ảnh PC
30.000
đ
BẢN VẼ
Nội thất khác...
1086
Dựng 3Dmax cho nội thất Phòng ngủ (kèm ảnh PC)
30.000
đ
BẢN VẼ
Nội thất khác...
2295
Dựng 3Dmax thiết kế Nội thất bàn ăn gỗ đồng gia phòng bếp
30.000
đ
BẢN VẼ
Biệt thự 2 Tầng
1100
File mẫu biệt thự 2 tầng 8x14.7m (đầy đủ kt,kc,đn)
100.000
đ
HỖ TRỢ TRỰC TUYẾN