Đăng nhập
Đăng kí
NẠP TIỀN
THƯ VIỆN BẢN VẼ
HỘI KIẾN TRÚC SƯ
ĐĂNG TIN & THẢO LUẬN
CÔNG CỤ
Autocad
Sketchup
3D Max
Revit
Khác...
DANH MỤC
Biệt thự
Lâu đài, dinh thự
Biệt thự 1 Tầng
Biệt thự 2 Tầng
Biệt thự 3 Tầng
Biệt thự Trên 3 Tầng
Nhà phố
Nhà phố 1 Tầng
Nhà phố 2 Tầng
Nhà phố 3 Tầng
Nhà phố 4 Tầng
Nhà phố Trên 4 Tầng
Nhà xưởng
Nội thất
Biệt thự
Nhà phố
Chung cư, Văn phòng
Cửa hàng, Quán
Nội thất khác...
Ngoại thất
Bản vẽ khác...
Nhà thờ, Đình chùa
Chung cư, Văn phòng
Công trình xã hội
Cửa hàng, Quán
Khách sạn
Nhà cấp 4
Bản vẽ khác...
BỘ SƯU TẬP
Tìm bản vẽ
Autocad
Sketchup
3D Max
Revit
Khác...
ĐĂNG BẢN VẼ
×
ĐĂNG NHẬP
Đăng nhập nhanh
Log in
Log in
Bạn chưa có tài khoản Banvenhadep.vn?
Đăng ký ngay
Email
*
Password
*
Mã khác
Quên mật khẩu?
Đăng nhập
Trang chủ
Nhà cấp 4
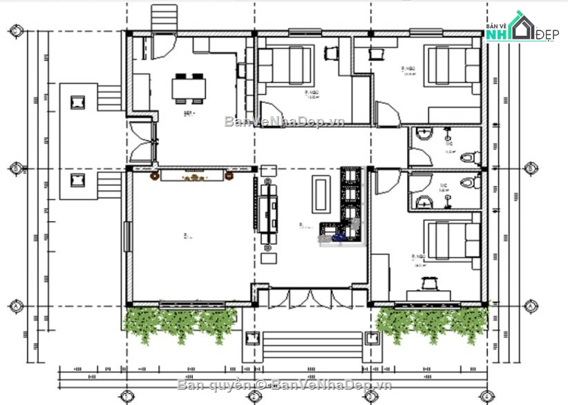
File nhà cấp 4 với diện tích 11x13m
MÃ BẢN VẼ
61857
File nhà cấp 4 với diện tích 11x13m
(
1 Nhận xét
)
Viết đánh giá
Bình luận:
0
Download:
0
Lượt xem:
2
Đóng góp bản vẽ mẫu mẫu bản vẽ revit nhà phố 1 tầng với diện tích 11x13m
Danh mục:
Nhà cấp 4
Ngày đăng:
11/8/2025
File download:
.rar
Dung lượng file:
#
Phong cách:
Hiện đại
Kích thước:
Rộng
11m
, Dài
13m
, DT
143m
2
CÔNG CỤ THIẾT KẾ:
Autocad
Sketchup
3D Max
Revit
Khác...
CÁC HẠNG MỤC CỦA BẢN VẼ:
Kiến trúc
Kết cấu
Điện
Nước
PCCC
Phối cảnh
Dự toán
Tài liệu
Khác...
NGƯỜI ĐĂNG
Vân Anh Đỗ
(Hạng vàng)
Xem
trang
Bản vẽ
310
Bộ sưu tập
0
Đánh giá (
672
)
5/5
Ngày tham gia
12/4/2025
Mô tả chi tiết
Gửi tới các bạn file nhà dân trệt với diện tích 11x13m
Bình luận (
0
)
BÌNH LUẬN
BÌNH LUẬN
Đánh giá (
1
)
ĐÁNH GIÁ TRUNG BÌNH
5
/5
(
1 Nhận xét
)
Bản vẽ rất tốt
(1)
Bản vẽ tốt
(0)
Bản vẽ rất hay
(0)
Bản vẽ hay
(0)
Bình thường
(0)
Chia sẻ nhận xét về bản vẽ
Viết nhận xét của bạn
Vân Anh Đỗ
Thời gian 08:42
25/10/2025
Bản vẽ rất tốt
Đã mua bản vẽ tại Banvenhadep.vn
Bản vẽ thiết tốt thích hợp để tham khảo
Hiển thị 20
Hiển thị 50
Tất cả
×
NẠP TIỀN DOWNLOAD NGAY
Bạn đang download:
[Mã bản vẽ
61857
]
Phí tải
70.000
đ
CHUYỂN KHOẢN
Bạn cần đăng nhập để tải bản vẽ qua chức năng này!
ĐĂNG NHẬP NGAY
Phí download
70.000
đ
DOWNLOAD
NGAY
Link download dự phòng
Bạn có bản vẽ hay
ĐĂNG
BÁN
NGAY
LƯU
VÀO
YÊU THÍCH
Báo
vi phạm
bản quyền
Gửi hỗ trợ - Báo lỗi
Gửi ngay
CHIA SẺ NHANH
(BẢN VẼ
61857
)
Gửi tới email bạn bè
TỪ KHÓA LIÊN QUAN
nhà 1 tầng
mẫu nhà cấp 4
Bản vẽ nhà cấp 4
Bản vẽ tương tự
BẢN VẼ
Nhà cấp 4
1278
Bản vẽ nhà mái bằng 1 tầng hiện đại, kích thước 6.8x16m năm 2021
100.000
đ
BẢN VẼ
Nhà cấp 4
1615
Hồ sơ kiến trúc, kết cấu, file su nhà cấp 4 kích thước 5.5x9.5m
100.000
đ
BẢN VẼ
Nhà phố 1 Tầng
1174
File autocad nhà phố 1 tầng kt 4.95x15m
50.000
đ
BẢN VẼ
Nhà cấp 4
1189
Mẫu thiết kế nhà cấp 4 gác lửng kích thước 6.5x13m
25.000
đ
BẢN VẼ
Nhà cấp 4
548
Mẫu thiết kế nhà cấp 4 kích thước 5x20m
10.000
đ
Gợi ý cho bạn
BẢN VẼ
Bản vẽ khác...
607
Mẫu chữ phúc thọ mẫu dxf
100.000
đ
BẢN VẼ
Bản vẽ khác...
483
Thiết kế model cnc hàng rào 2 diện tích thiết kế
150.000
đ
BẢN VẼ
Biệt thự
1138
File cad bổ kỹ thuật nội thất chi tiết biệt thự (133 bản vẽ chi tiết)
250.000
đ
BẢN VẼ
Bản vẽ khác...
349
Mẫu chữ an cắt cnc đẹp
50.000
đ
BẢN VẼ
Bản vẽ khác...
358
Thiết kế thiết kế chữ xuân 2024
50.000
đ
HỖ TRỢ TRỰC TUYẾN