MÃ BẢN VẼ
12495
File revit 2019 kiến trúc biệt thự 2 tầng kích thước 8.2x14.4m
(
1 Nhận xét)
Viết đánh giá
Bình luận: 0
Download: 80
Lượt xem: 576
File revit 2019 thiết kế kiến trúc biệt thự 2 tầng 8.2x14.4m. Chi tiết file như trong ảnh đính kèm các bạn xem bên dưới nhé
Ngày đăng: 22/2/2020
File download:
BT 2 tang 8.2x14.4.rvt
Dung lượng file:
39.3 MB
Phong cách: Hiện đại
Kích thước: Rộng 8,2m, Dài 14,4m, DT 118,08m2
CÔNG CỤ THIẾT KẾ:

Autocad

Sketchup

3D Max

Revit

Khác...
CÁC HẠNG MỤC CỦA BẢN VẼ:

Kiến trúc

Kết cấu

Điện

Nước

PCCC

Phối cảnh

Dự toán

Tài liệu

Khác...
NGƯỜI ĐĂNG
Bản vẽ
148
Bộ sưu tập
0
Đánh giá (160)
4/5
Ngày tham gia
27/4/2017
Mô tả chi tiết
File revit 2019 thiết kế kiến trúc biệt thự 2 tầng 8.2x14.4m. Chi tiết file như trong ảnh đính kèm các bạn xem bên dưới nhé
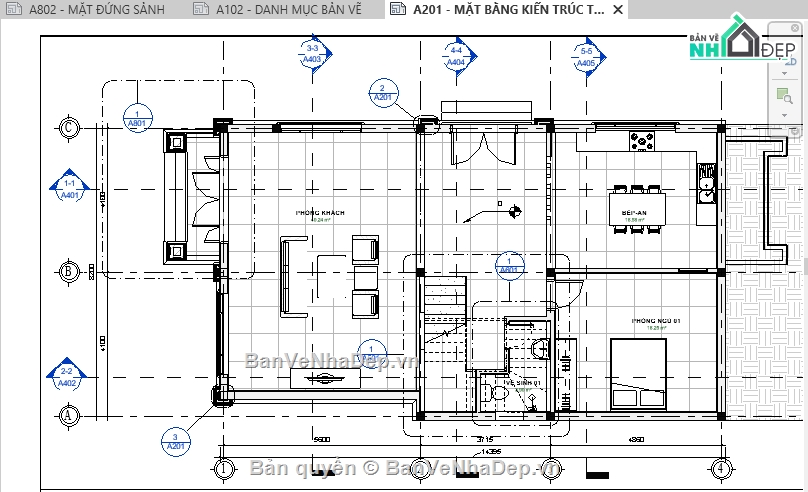
Tầng 1 gồm: Phòng khách + Bếp + Phòng ngủ
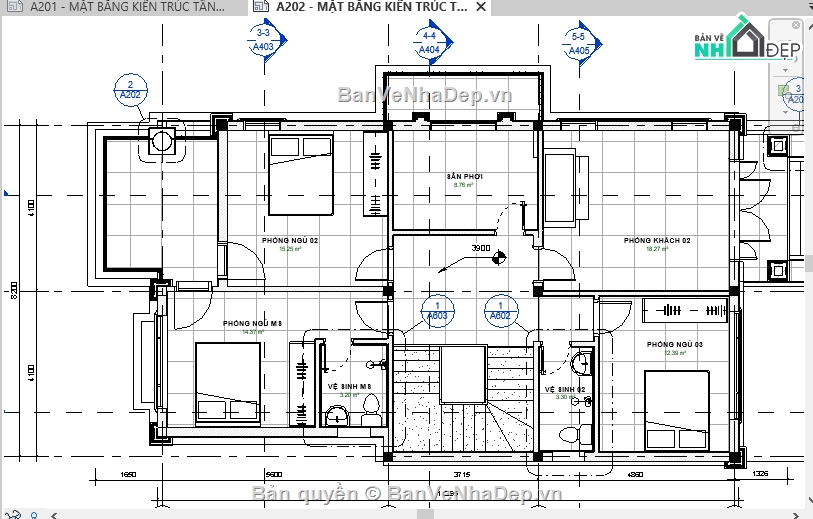
Tầng 2 gồm: Phòng khách + phòng thờ + 3 phòng ngủ
Rất vui lòng hỗ trợ các bạn trong quá trình thiết kế, thực hiện đồ án đặc biệt là chuyên nghành Cầu.
Bình luận (0)
Đánh giá (1)
ĐÁNH GIÁ TRUNG BÌNH
5/5
(
1 Nhận xét)
Bản vẽ rất tốt (1)
Bản vẽ tốt (0)
Bản vẽ rất hay (0)
Bản vẽ hay (0)
Bình thường (0)
Bản vẽ rất tốt
Đã mua bản vẽ tại Banvenhadep.vn
Bản vẽ thiết tốt thích hợp để tham khảo