MÃ BẢN VẼ
63174
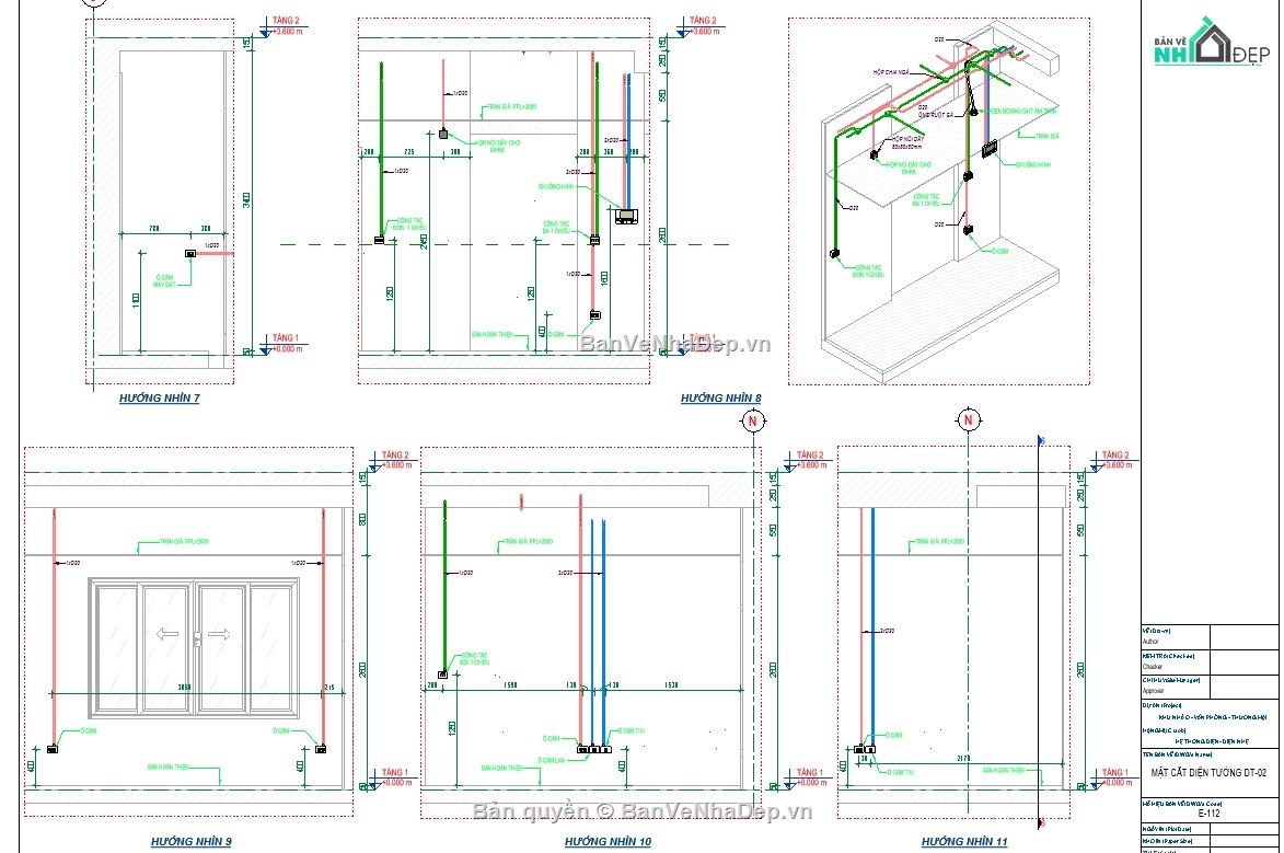
File revit điện, điện nhẹ căn hộ chung cư (trình bày dàn trang đầy đủ mặt bằng, mặt đứng)
File revit điện, điện nhẹ căn hộ chung cư (trình bày dàn trang đầy đủ mặt bằng, mặt đứng)
Ngày đăng: 03/12/2025
File download:
01.Revit điện điện nhẹ căn hộ chung cư.rar
Dung lượng file:
100 MB
Phong cách: Chưa xác định
Kích thước: ...
CÔNG CỤ THIẾT KẾ:

Autocad

Sketchup

3D Max

Revit

Khác...
CÁC HẠNG MỤC CỦA BẢN VẼ:

Kiến trúc

Kết cấu

Điện

Nước

PCCC

Phối cảnh

Dự toán

Tài liệu

Khác...
NGƯỜI ĐĂNG
Bản vẽ
104
Bộ sưu tập
0
Đánh giá (126)
5/5
Ngày tham gia
2/4/2024
Mô tả chi tiết
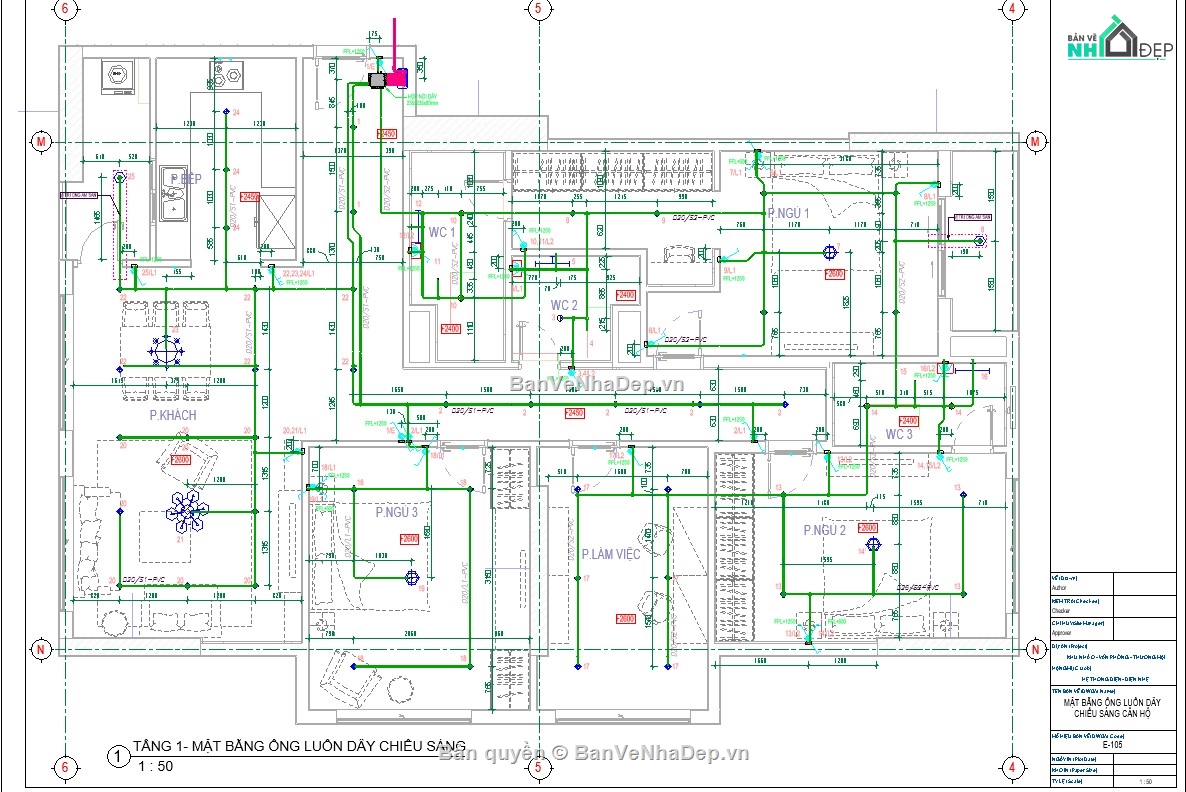
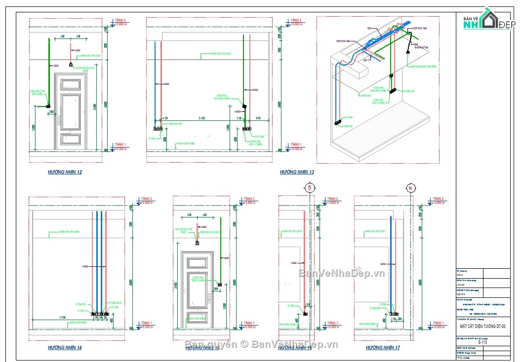
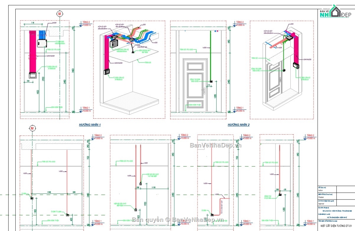
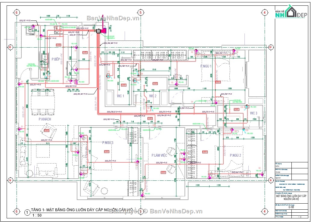
File revit hàng hiếm shopdrawing điện chiếu sáng, điện cấp nguồn ổ cắm, điện nhẹ, mặt bằng bố trí đèn, mặt bằng thiết bị công tắc ổ cắm một căn hộ chung cư ở Hà Nội (có trình bày dàn trang đầy đủ mặt bằng, mặt đứng)
Bình luận (0)
Đánh giá (1)
ĐÁNH GIÁ TRUNG BÌNH
5/5
(
1 Nhận xét)
Bản vẽ rất tốt (1)
Bản vẽ tốt (0)
Bản vẽ rất hay (0)
Bản vẽ hay (0)
Bình thường (0)
Bản vẽ rất tốt
Đã đăng bản vẽ này
Bản vẽ rất tốt và phù hợp để tham khảo