MÃ BẢN VẼ
63278

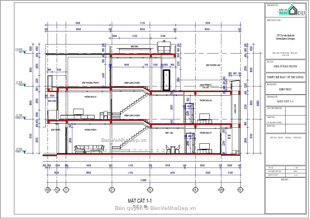
File revit kiến trúc kết cấu mẫu nhà 3 tầng 5x21m phong cách hiện đại

  (1 Nhận xét)     Viết đánh giá        0     0     1

File revit mẫu nhà 3 tầng 5x21m phong cách hiện đại với đầy đủ file revit kiến trúc và kết cấu.

Ngày đăng: 20/12/2025
File download: revit nhà anh Nghĩa 5x21m.rar
Dung lượng file: 270.49MB
Phong cách: Hiện đại
Kích thước: Rộng 5m, Dài 21m, DT 105m2
CÔNG CỤ THIẾT KẾ:
Autocad
Sketchup
3D Max
Revit
Khác...
CÁC HẠNG MỤC CỦA BẢN VẼ:
Kiến trúc
Kết cấu
Điện
Nước
PCCC
Phối cảnh
Dự toán
Tài liệu
Khác...

NGƯỜI ĐĂNG
(Hạng vàng)
Xem trang
bản vẽ nhà
Bản vẽ
185
bộ sưu tập bản vẽ nhà
Bộ sưu tập
0
đánh giá mẫu bản vẽ
Đánh giá (207)
5/5
ngày tham gia bản vẽ nhà đẹp
Ngày tham gia
2/4/2024

Mô tả chi tiết

mẫu revit nhà 3 tầng phong cách hiện đại với đầy đủ file revit kiến trúc và kết cấu. Quy mô xây dựng 5x21m trên mảnh đất 5x25m

Bình luận (0)


Đánh giá (1)

ĐÁNH GIÁ TRUNG BÌNH
5/5

(1 Nhận xét)
Bản vẽ rất tốt (1)
Bản vẽ tốt (0)
Bản vẽ rất hay (0)
Bản vẽ hay (0)
Bình thường (0)
Chia sẻ nhận xét về bản vẽ
 Viết nhận xét của bạn
TungARC
Thời gian 16:38
20/12/2025
Bản vẽ rất tốt   
 Đã đăng bản vẽ này
Bản vẽ rất tốt và phù hợp để tham khảo
HỖ TRỢ TRỰC TUYẾN