MÃ BẢN VẼ
60301
File revit kiến trúc nhà dân 2 tầng kt 5x21m
Nhà phố 2 tầng với lạ goria mang phong thái mềm mại phù hợp với gia chủ thích sự dịu dàng và cong mềm
Ngày đăng: 28/7/2025
File download:
5X21M-GORIA - PA2.rvt
Dung lượng file:
205 MB
Phong cách: Hiện đại
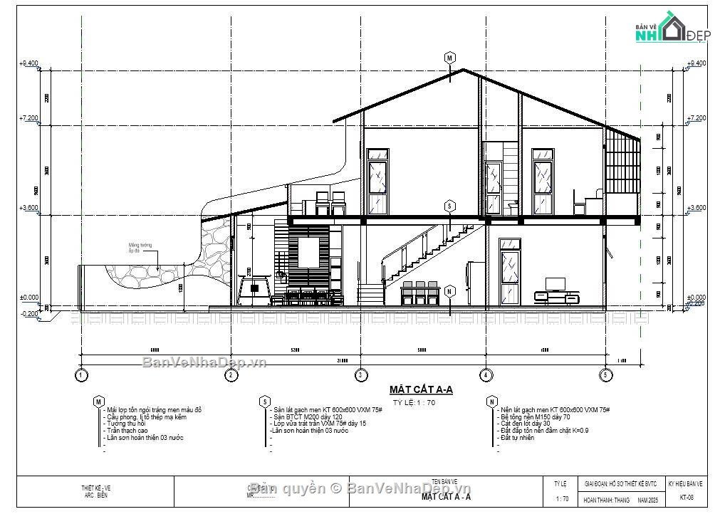
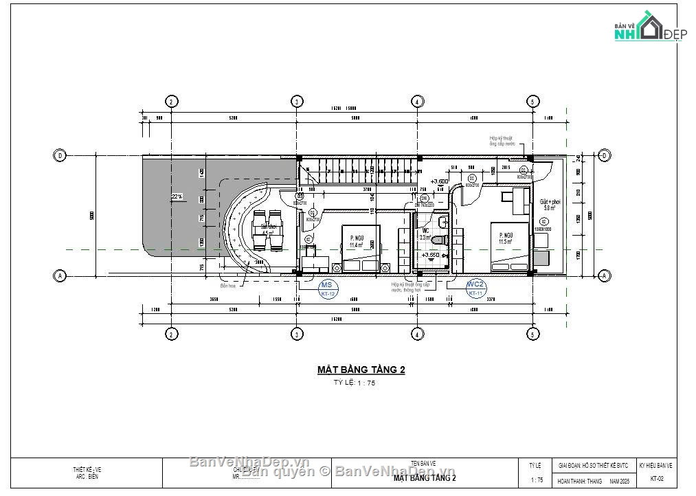
Kích thước: Rộng 5m, Dài 21m, DT 105m2
CÔNG CỤ THIẾT KẾ:

Autocad

Sketchup

3D Max

Revit

Khác...
CÁC HẠNG MỤC CỦA BẢN VẼ:

Kiến trúc

Kết cấu

Điện

Nước

PCCC

Phối cảnh

Dự toán

Tài liệu

Khác...
NGƯỜI ĐĂNG
Bản vẽ
55
Bộ sưu tập
0
Đánh giá (67)
5/5
Ngày tham gia
2/3/2022
Mô tả chi tiết
bản vẽ kiến trúc nhà dân kt 5x21m x 2 tầng
-công năng tầng 1 đầy đủ gara xe, phòng khách, khu bếp + cầu thang, 1 phòng ngủ và vệ sinh chung
- công năng tầng 2 đầy đủ 2 phòng ngủ, 1 khu vệ sinh chung và khu sân chơi phía trước
-công trình mang lạ goria mang những đường nét mềm mại
-file revit THIẾT KẾ phần kiến trúc
Bình luận (0)
Đánh giá (1)
ĐÁNH GIÁ TRUNG BÌNH
5/5
(
1 Nhận xét)
Bản vẽ rất tốt (1)
Bản vẽ tốt (0)
Bản vẽ rất hay (0)
Bản vẽ hay (0)
Bình thường (0)
Bản vẽ rất tốt
Đã mua bản vẽ tại Banvenhadep.vn
Bản vẽ thiết tốt thích hợp để tham khảo