MÃ BẢN VẼ
58782

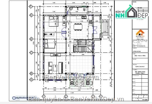
File revit mẫu biệt thự 2 tầng 14.5x11.5m

  (1 Nhận xét)     Viết đánh giá        0     0     34

Biệt thự 2 tầng diện tích xây dựng xây dựng 14.5x11.5m mẫu danh mục kiến trúc đầy đủ

Ngày đăng: 13/6/2025
File download: .rar
Dung lượng file: #
Phong cách: Hiện đại
Kích thước: Rộng 14,5m, Dài 11,5m, DT 166,75m2
CÔNG CỤ THIẾT KẾ:
Autocad
Sketchup
3D Max
Revit
Khác...
CÁC HẠNG MỤC CỦA BẢN VẼ:
Kiến trúc
Kết cấu
Điện
Nước
PCCC
Phối cảnh
Dự toán
Tài liệu
Khác...

NGƯỜI ĐĂNG
(Hạng vàng)
Xem trang
bản vẽ nhà
Bản vẽ
356
bộ sưu tập bản vẽ nhà
Bộ sưu tập
0
đánh giá mẫu bản vẽ
Đánh giá (458)
5/5
ngày tham gia bản vẽ nhà đẹp
Ngày tham gia
9/6/2025

Mô tả chi tiết

bản vẽ bản vẽ kiến trúc trên phần mềm revit, nhà biệt thự 2 tầng với kích thước xây dựng 14.5x11.5m công năng bố trí hợp lý khoa học 

Bình luận (0)


Đánh giá (1)

ĐÁNH GIÁ TRUNG BÌNH
5/5

(1 Nhận xét)
Bản vẽ rất tốt (1)
Bản vẽ tốt (0)
Bản vẽ rất hay (0)
Bản vẽ hay (0)
Bình thường (0)
Chia sẻ nhận xét về bản vẽ
 Viết nhận xét của bạn
Lan Chi Arc
Thời gian 14:10
5/7/2025
Bản vẽ rất tốt   
 Đã mua bản vẽ tại Banvenhadep.vn
Bản vẽ thiết tốt thích hợp để tham khảo
HỖ TRỢ TRỰC TUYẾN