MÃ BẢN VẼ
58787

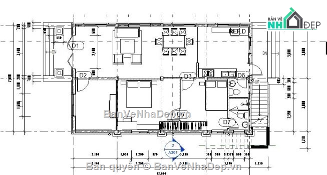
File revit mẫu nhà phố 2 tầng 8x14m

  (1 Nhận xét)     Viết đánh giá        0     0     27

Mẫu bản vẽ nhà ở phố 2 tầng với diện tích xây dựng 8x14m, mẫu bản vẽ full 2d và 3dmax file phối cảnh công trình

Ngày đăng: 13/6/2025
File download: #
Dung lượng file: #
Phong cách: Hiện đại
Kích thước: Rộng 8m, Dài 14m, DT 112m2
CÔNG CỤ THIẾT KẾ:
Autocad
Sketchup
3D Max
Revit
Khác...
CÁC HẠNG MỤC CỦA BẢN VẼ:
Kiến trúc
Kết cấu
Điện
Nước
PCCC
Phối cảnh
Dự toán
Tài liệu
Khác...

NGƯỜI ĐĂNG
(Hạng vàng)
Xem trang
bản vẽ nhà
Bản vẽ
317
bộ sưu tập bản vẽ nhà
Bộ sưu tập
0
đánh giá mẫu bản vẽ
Đánh giá (419)
5/5
ngày tham gia bản vẽ nhà đẹp
Ngày tham gia
9/6/2025

Mô tả chi tiết

gửi tới các bạn tham khảo công trình nhà ở phố 2 tầng diện tích 8x14m

hồ sơ mẫu danh mục kiến trúc

Bình luận (0)


Đánh giá (1)

ĐÁNH GIÁ TRUNG BÌNH
5/5

(1 Nhận xét)
Bản vẽ rất tốt (1)
Bản vẽ tốt (0)
Bản vẽ rất hay (0)
Bản vẽ hay (0)
Bình thường (0)
Chia sẻ nhận xét về bản vẽ
 Viết nhận xét của bạn
Lan Chi Arc
Thời gian 14:10
5/7/2025
Bản vẽ rất tốt   
 Đã mua bản vẽ tại Banvenhadep.vn
Bản vẽ thiết tốt thích hợp để tham khảo
HỖ TRỢ TRỰC TUYẾN