MÃ BẢN VẼ
54409
File revit nhà ở phố 2 tầng 8x12m
Phương án kiến trúc nhà ở phố 8x12m 2 tầng đóng góp tới các bạn tham khảo.
Ngày đăng: 18/4/2025
File download:
8X12X2 tang hien dai.rar
Dung lượng file:
320.9 MB
Phong cách: Hiện đại
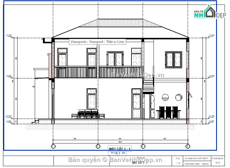
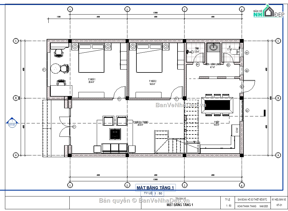
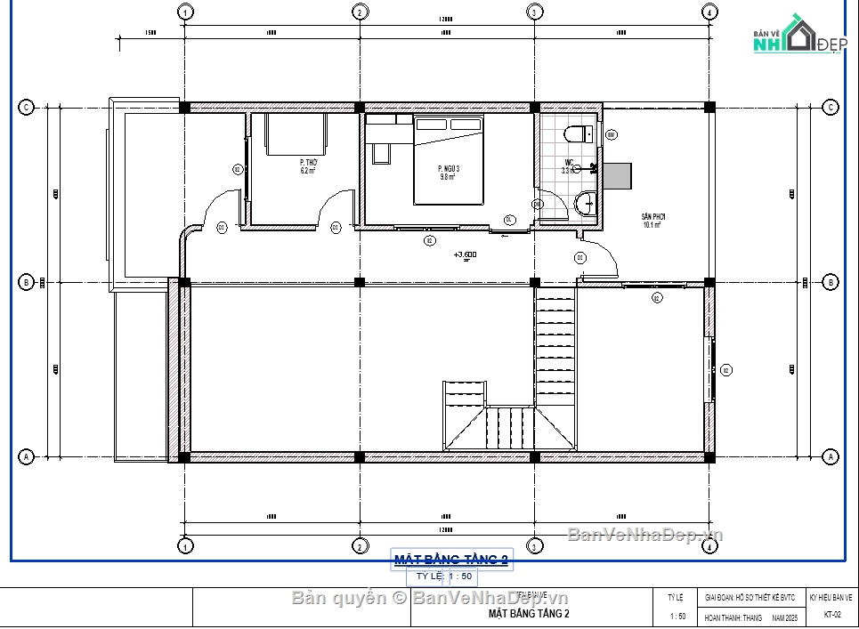
Kích thước: Rộng 8m, Dài 12m, DT 96m2
CÔNG CỤ THIẾT KẾ:

Autocad

Sketchup

3D Max

Revit

Khác...
CÁC HẠNG MỤC CỦA BẢN VẼ:

Kiến trúc

Kết cấu

Điện

Nước

PCCC

Phối cảnh

Dự toán

Tài liệu

Khác...
NGƯỜI ĐĂNG
Bản vẽ
55
Bộ sưu tập
0
Đánh giá (67)
5/5
Ngày tham gia
2/3/2022
Mô tả chi tiết
File revit kiến trúc phương án nhà ở phố 2 tầng với diện tích xây dựng 8x12m
-công năng tầng 1 file cad phòng khách, cầu thang, phòng bếp, 2 phòng ngủ và khu vệ sinh chung
-công năng tầng 2 file cad sân chơi, phòng thờ, phòng ngủ khép kín, sân phơi
-kiến trúc mang độc đáo kiểu mới mới mẻ và trẻ trung
Bình luận (0)
Đánh giá (1)
ĐÁNH GIÁ TRUNG BÌNH
5/5
(
1 Nhận xét)
Bản vẽ rất tốt (1)
Bản vẽ tốt (0)
Bản vẽ rất hay (0)
Bản vẽ hay (0)
Bình thường (0)
Bản vẽ rất tốt
Đã mua bản vẽ tại Banvenhadep.vn
Bản vẽ thiết tốt thích hợp để tham khảo