MÃ BẢN VẼ
61786
Full Autocad pdf NHÀ 2 TẦNG HIỆN ĐẠI 7x12m. Hồ sơ thi công kiến trúc, kết cấu, điện nước.
(
1 Nhận xét)
Viết đánh giá
Bình luận: 0
Download: 3
Lượt xem: 207
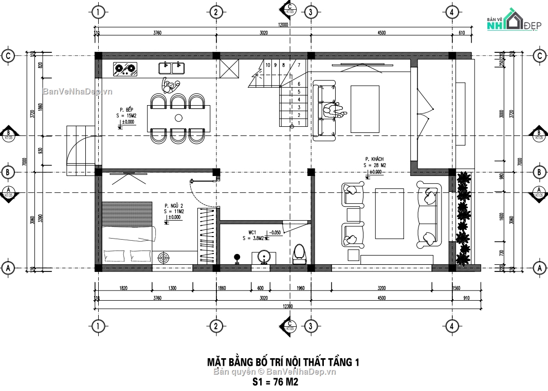
Bản vẽ thiết kế Nhà phố 2 tầng hiện đại 7x12m với đầy đủ mọi công năng sử dụng. Hồ sơ thiết kế thi công Full Kiến trúc, kết cấu, điện nước. File Autocad và PDF, phù hợp để tham khảo và thi công.
Ngày đăng: 12/10/2025
File download:
NHÀ PHỐ 2 TẦNG 7x12m.rar
Dung lượng file:
23.3 MB
Phong cách: Hiện đại
Kích thước: Rộng 7m, Dài 12m, DT 84m2
CÔNG CỤ THIẾT KẾ:

Autocad

Sketchup

3D Max

Revit

Khác...
CÁC HẠNG MỤC CỦA BẢN VẼ:

Kiến trúc

Kết cấu

Điện

Nước

PCCC

Phối cảnh

Dự toán

Tài liệu

Khác...
NGƯỜI ĐĂNG
Bản vẽ
24
Bộ sưu tập
0
Đánh giá (61)
5/5
Ngày tham gia
18/9/2025
Mô tả chi tiết
Hồ sơ thiết kế bao gồm:
1. Phối cảnh 3D ngoại thất;
2. Phần Kiến trúc (Bản vẽ thiết kế chi tiết thi công);
3. Phần Kết cấu (Bản vẽ thiết kế chi tiết thi công);
4. Phần cấp điện, cấp thoát nước (Bản vẽ thiết kế chi tiết thi công).
Quy mô công trình 2 tầng:
Tầng 1: Phòng khách, phòng bếp, phòng ăn, phòng ngủ
Tầng 2: 3 phòng ngủ, 1 phòng thờ
Bình luận (0)
Đánh giá (1)
ĐÁNH GIÁ TRUNG BÌNH
5/5
(
1 Nhận xét)
Bản vẽ rất tốt (1)
Bản vẽ tốt (0)
Bản vẽ rất hay (0)
Bản vẽ hay (0)
Bình thường (0)
Bản vẽ rất tốt
Đã đăng bản vẽ này
Bản vẽ rất tốt và phù hợp để tham khảo