MÃ BẢN VẼ
63227
Full bản vẽ biệt thự vườn mái Nhật 2 tầng
Bản vẽ bao gồm file cad kiến trúc, kết cấu, điện nước ,file pdf hồ sơ thi công và file sketchup
Ngày đăng: 15/12/2025
File download:
BT mái nhật 2 tầng.zip
Dung lượng file:
219.26MB
Phong cách: Hiện đại
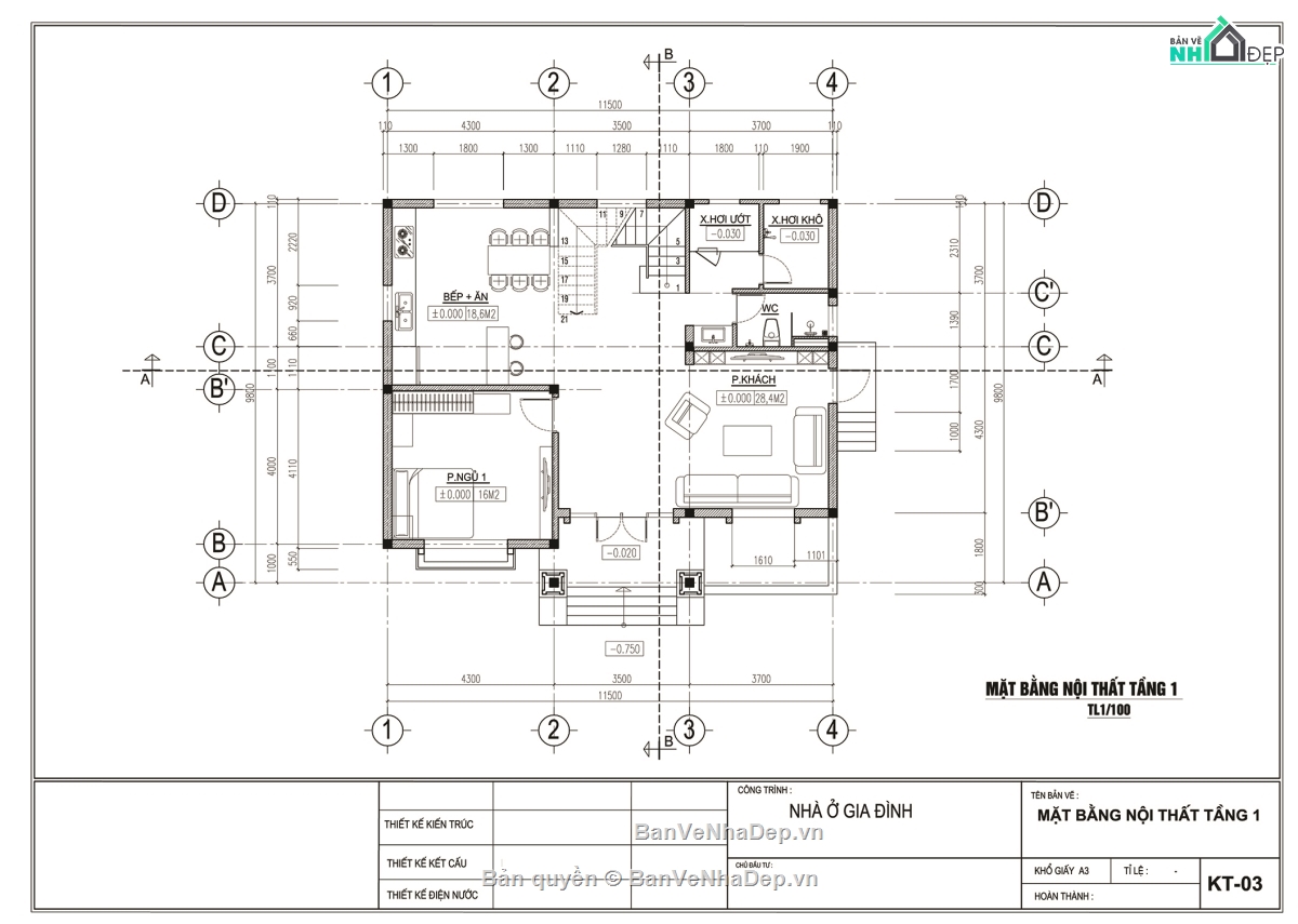
Kích thước: Rộng 11,5m, Dài 9,8m, DT 112,7m2
CÔNG CỤ THIẾT KẾ:

Autocad

Sketchup

3D Max

Revit

Khác...
CÁC HẠNG MỤC CỦA BẢN VẼ:

Kiến trúc

Kết cấu

Điện

Nước

PCCC

Phối cảnh

Dự toán

Tài liệu

Khác...
NGƯỜI ĐĂNG
Bản vẽ
6
Bộ sưu tập
0
Đánh giá (6)
5/5
Ngày tham gia
11/10/2021
Mô tả chi tiết
Bản vẽ với diện tích xây dựng tầng 1 : 108m2, tầng 2 : 113m2
Kích thước ngôi nhà: 11,5mx9,8m
Công năng sử dụng :
- Tầng 1 : Sảnh chính - phòng khách - phòng ngủ - cầu thang - bếp - vệ sinh - xông hơi
- Tầng 2 : Phòng sinh hoạt chung - 2 phòng ngủ - phòng thờ - vệ sinh- ban công
Bình luận (0)
Đánh giá (1)
ĐÁNH GIÁ TRUNG BÌNH
5/5
(
1 Nhận xét)
Bản vẽ rất tốt (1)
Bản vẽ tốt (0)
Bản vẽ rất hay (0)
Bản vẽ hay (0)
Bình thường (0)
Bản vẽ rất tốt
Đã mua bản vẽ tại Banvenhadep.vn
Bản vẽ rất tốt và phù hợp để tham khảo