MÃ BẢN VẼ
54189
Full bản vẽ file cad kiến trúc nhà thờ họ đẹp 2025
(
1 Nhận xét)
Viết đánh giá
Bình luận: 0
Download: 7
Lượt xem: 197
Chia sẻ bản vẽ cad kiến trúc cad nhà thờ, bản vẽ nhà thờ họ nguyễn, bản vẽ cad nhà thờ họ cực đẹp
Ngày đăng: 11/4/2025
File download:
Nhà thờ họ.dwg
Dung lượng file:
26.5 MB
Phong cách: Hiện đại
Kích thước: ...
CÔNG CỤ THIẾT KẾ:

Autocad

Sketchup

3D Max

Revit

Khác...
CÁC HẠNG MỤC CỦA BẢN VẼ:

Kiến trúc

Kết cấu

Điện

Nước

PCCC

Phối cảnh

Dự toán

Tài liệu

Khác...
NGƯỜI ĐĂNG
Bản vẽ
20
Bộ sưu tập
0
Đánh giá (22)
5/5
Ngày tham gia
23/7/2022
Mô tả chi tiết
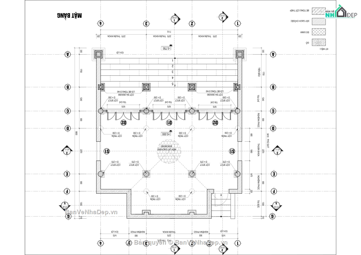
ảnh cắt từ file cad
bộ bản vẽ đầy đủ file cad kiến trúc, phương án cho nhà thờ họ nguyễn cấp 4 8.85x7.11m kiến trúc cổ. hạng mục: gồm mặt bằng kiến trúc, mặt đứng, mặt cắt, mặt bằng công năng...
công năng:
tầng 1 gồm: 2 gian tiếp khách, 1 gian thờ
Bình luận (0)
Đánh giá (1)
ĐÁNH GIÁ TRUNG BÌNH
5/5
(
1 Nhận xét)
Bản vẽ rất tốt (1)
Bản vẽ tốt (0)
Bản vẽ rất hay (0)
Bản vẽ hay (0)
Bình thường (0)
Bản vẽ rất tốt
Đã mua bản vẽ tại Banvenhadep.vn
Bản vẽ thiết tốt thích hợp để tham khảo