MÃ BẢN VẼ
20386
Full bản vẽ mẫu nhà vườn 16x9m ( model autocad)
(
1 Nhận xét)
Viết đánh giá
Bình luận: 0
Download: 0
Lượt xem: 979
Đầy đủ bản vẽ file cad file cad nhà ở 16x9m theo lạ hiện đại. file đầy đủ hạng mục: kiến trúc, kết cấu, điện nước, dự toán.
Ngày đăng: 07/10/2022
File download:
HS THIẾT KẾ NHÀ CẤP 4 - TRƯƠNG THỊ TIÊN-20221008T010131Z-001.zip
Dung lượng file:
14.6 MB
Phong cách: Hiện đại
Kích thước: Rộng 16m, Dài 9m, DT 144m2
CÔNG CỤ THIẾT KẾ:

Autocad

Sketchup

3D Max

Revit

Khác...
CÁC HẠNG MỤC CỦA BẢN VẼ:

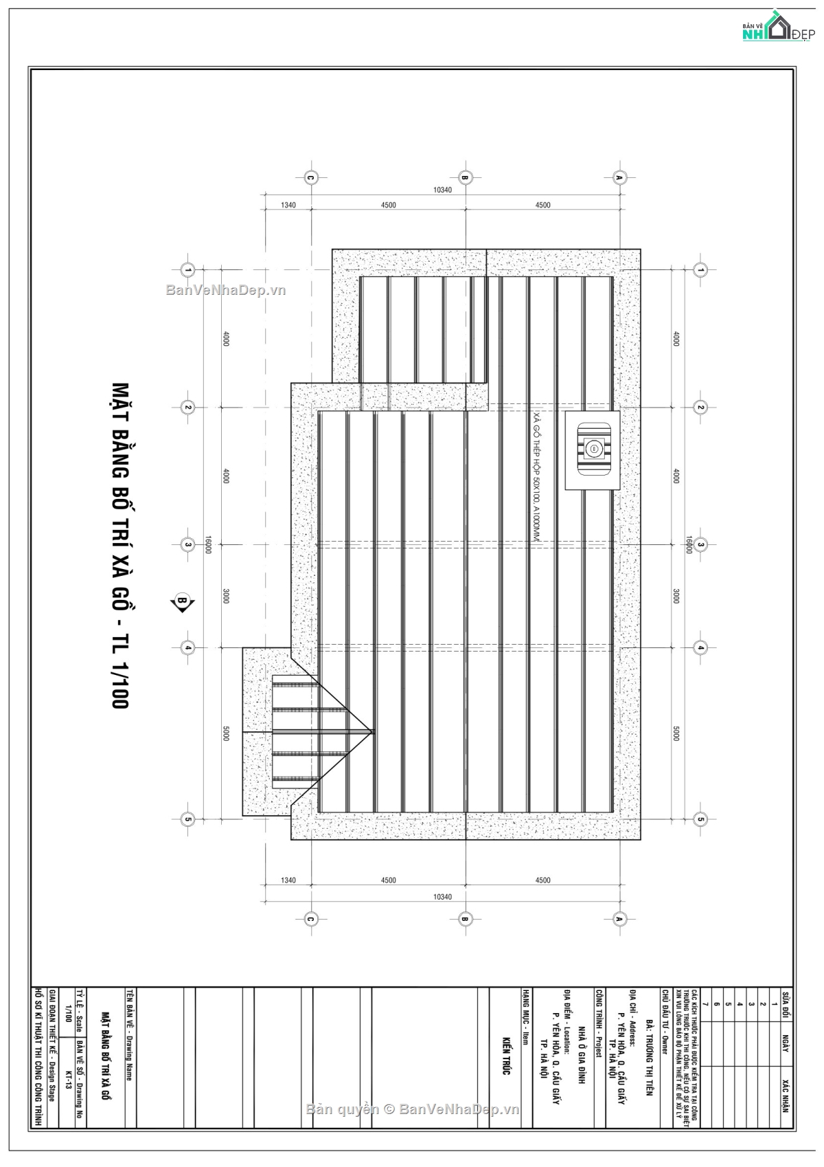
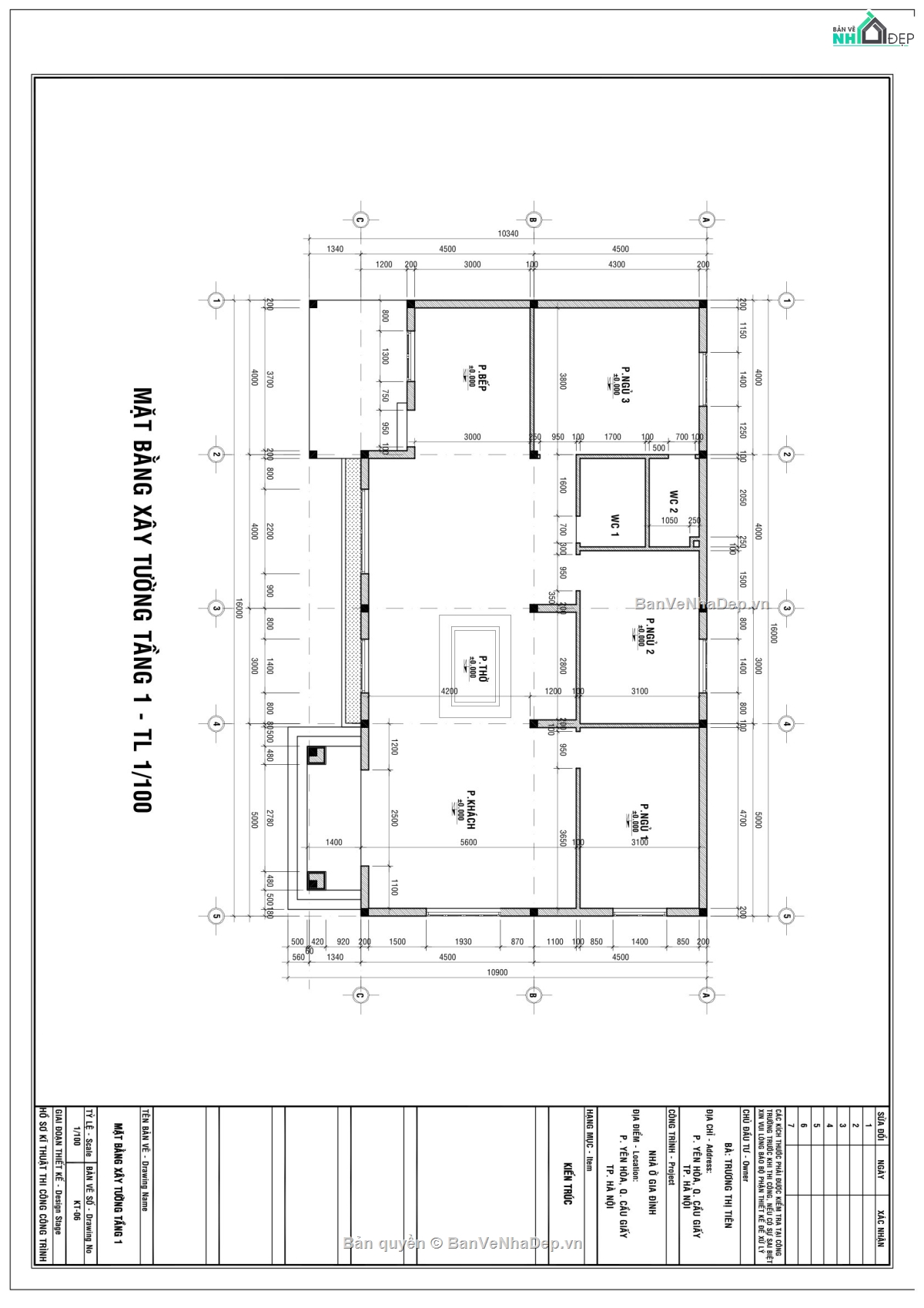
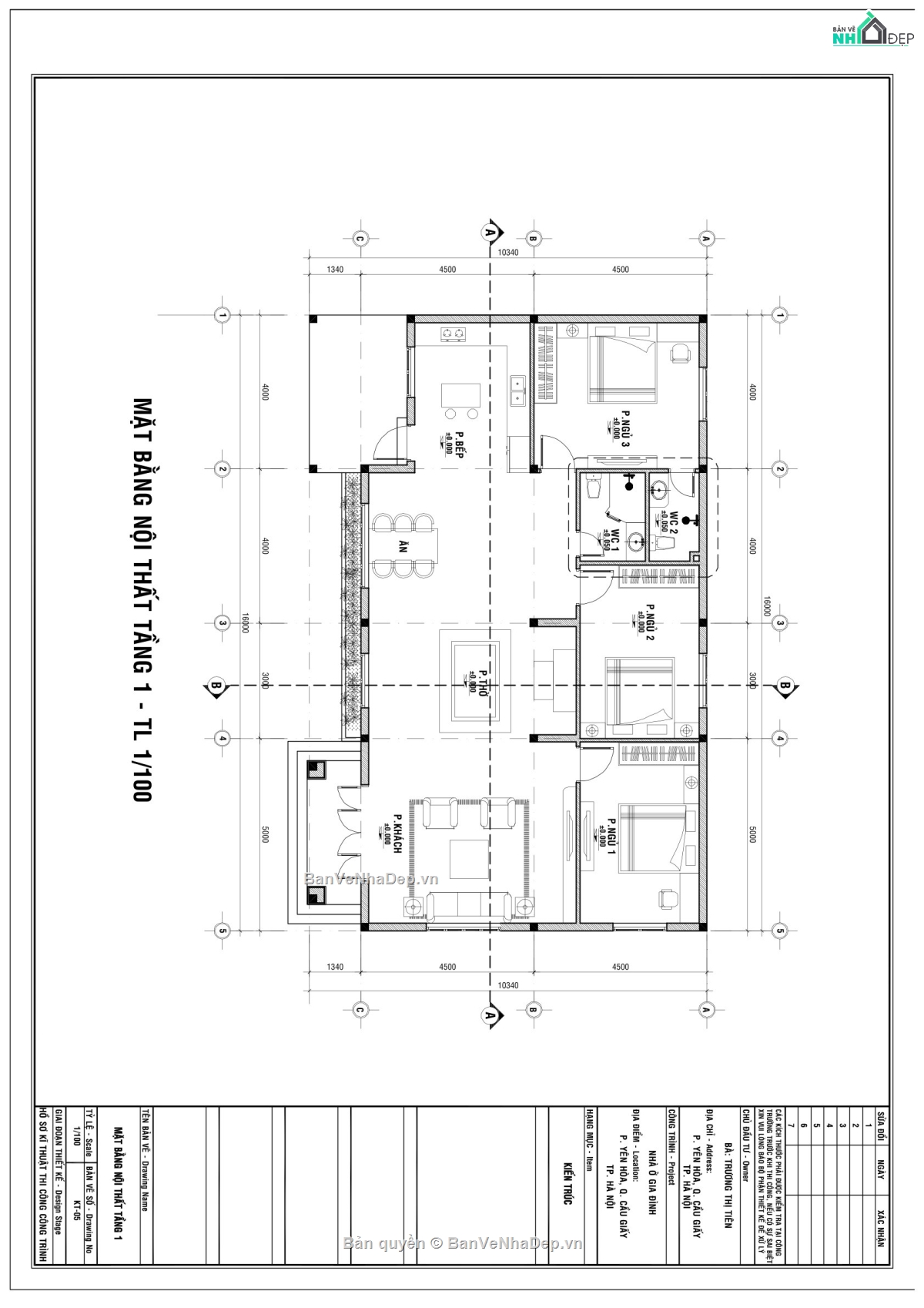
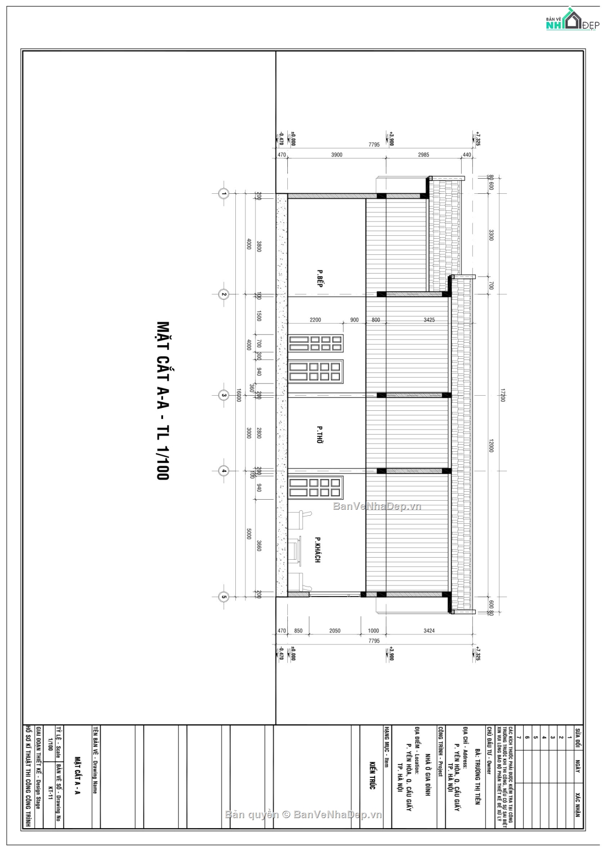
Kiến trúc

Kết cấu

Điện

Nước

PCCC

Phối cảnh

Dự toán

Tài liệu

Khác...
NGƯỜI ĐĂNG
Bản vẽ
28
Bộ sưu tập
0
Đánh giá (45)
5/5
Ngày tham gia
23/9/2022
Mô tả chi tiết
công năng sử dụng của nhà vườn diện tích thiết kế 16x9m bao gồm: khách, bếp, 3 phòng ngủ, 1 wc riêng, 1 wc chung, phòng thờ mẫu nhà vườn kiểu mới luôn được rất nhiều khách hàng lựa chọn, mình đóng góp lên trang cho anh em tham khảo ạ.
Bình luận (0)
Đánh giá (1)
ĐÁNH GIÁ TRUNG BÌNH
5/5
(
1 Nhận xét)
Bản vẽ rất tốt (1)
Bản vẽ tốt (0)
Bản vẽ rất hay (0)
Bản vẽ hay (0)
Bình thường (0)
Bản vẽ rất tốt
Đã mua bản vẽ tại Banvenhadep.vn
Bản vẽ thiết tốt thích hợp để tham khảo