MÃ BẢN VẼ
63226
Full bản vẽ nhà phố 2 tầng 6x16m
Bản vẽ nhà phố 2 tầng bao gồm file cad kiến trúc, kết cấu, điện nước và file sketchup
Ngày đăng: 15/12/2025
File download:
6x16m.rar
Dung lượng file:
85.86MB
Phong cách: Hiện đại
Kích thước: Rộng 6m, Dài 16m, DT 96m2
CÔNG CỤ THIẾT KẾ:

Autocad

Sketchup

3D Max

Revit

Khác...
CÁC HẠNG MỤC CỦA BẢN VẼ:

Kiến trúc

Kết cấu

Điện

Nước

PCCC

Phối cảnh

Dự toán

Tài liệu

Khác...
NGƯỜI ĐĂNG
Bản vẽ
6
Bộ sưu tập
0
Đánh giá (6)
5/5
Ngày tham gia
11/10/2021
Mô tả chi tiết
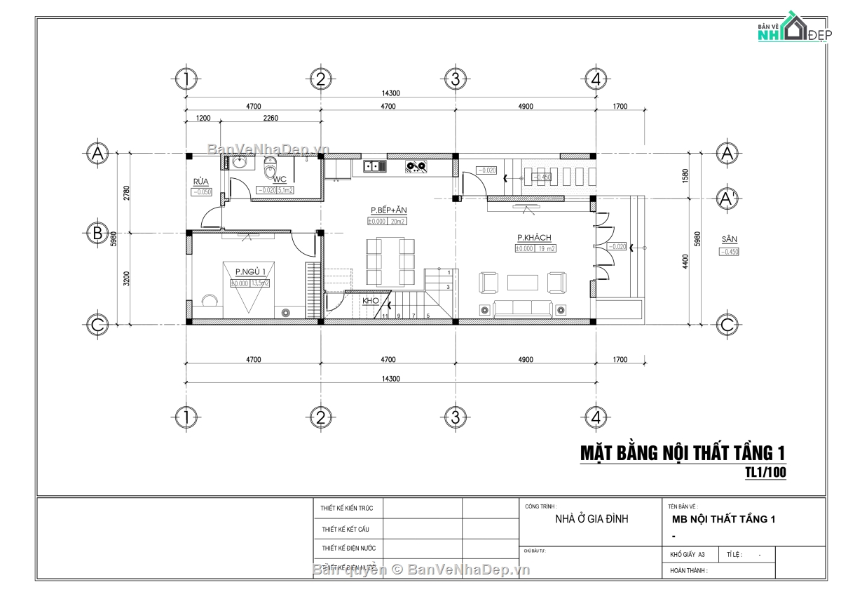
Kích thước khu đất: 25,4 x 6m
Kích thước xây dựng 16 x 6m
Công năng sử dụng:
Tầng 1 : Sân - Lối đi phụ -Phòng khách - bếp+ăn - cầu thang - phòng ngủ -1wc - sân rửa
Tầng 2 :2 phòng ngủ - phòng sinh hoạt chung - 2 phòng ngủ - phòng thờ - wc - giặt phơi
Bình luận (0)
Đánh giá (1)
ĐÁNH GIÁ TRUNG BÌNH
5/5
(
1 Nhận xét)
Bản vẽ rất tốt (1)
Bản vẽ tốt (0)
Bản vẽ rất hay (0)
Bản vẽ hay (0)
Bình thường (0)
Bản vẽ rất tốt
Đã mua bản vẽ tại Banvenhadep.vn
Bản vẽ rất tốt và phù hợp để tham khảo