MÃ BẢN VẼ
58027

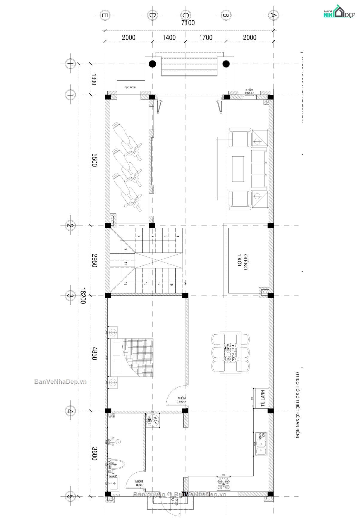
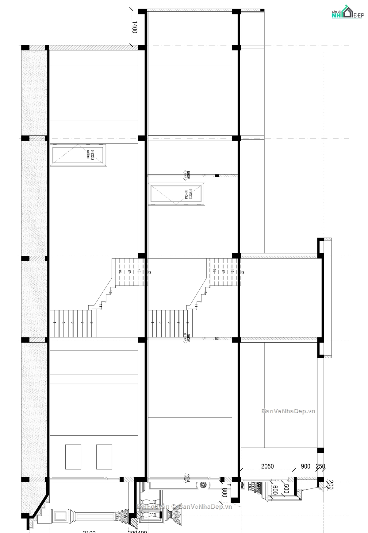
Full bản vẽ nhà tân cổ điển 2 tầng 1 tum 7.1x18.2m đầy đủ các hạng mục kiến trúc, kết cấu, điện nước

  (1 Nhận xét)     Viết đánh giá        0     0     76

Full bản vẽ nhà tân cổ điển 2 tầng 1 tum 7.1x18.2m đầy đủ các hạng mục kiến trúc, kết cấu, điện nước

Ngày đăng: 25/6/2025
File download: nha pho 7.1x18.2 THI CONG.dwg
Dung lượng file: 3.0 MB
Phong cách: Tân cổ điển
Kích thước: Rộng 7,1m, Dài 18,2m, DT 129,2m2
CÔNG CỤ THIẾT KẾ:
Autocad
Sketchup
3D Max
Revit
Khác...
CÁC HẠNG MỤC CỦA BẢN VẼ:
Kiến trúc
Kết cấu
Điện
Nước
PCCC
Phối cảnh
Dự toán
Tài liệu
Khác...

NGƯỜI ĐĂNG
(Hạng vàng)
Xem trang
bản vẽ nhà
Bản vẽ
18
bộ sưu tập bản vẽ nhà
Bộ sưu tập
0
đánh giá mẫu bản vẽ
Đánh giá (24)
5/5
ngày tham gia bản vẽ nhà đẹp
Ngày tham gia
6/11/2022

Mô tả chi tiết

Full bản vẽ nhà tân cổ điển 2 tầng 1 tum 7.1x18.2 đầy đủ các hạng mục kiến trúc, kết cấu, điện nước

Bình luận (0)


Đánh giá (1)

ĐÁNH GIÁ TRUNG BÌNH
5/5

(1 Nhận xét)
Bản vẽ rất tốt (1)
Bản vẽ tốt (0)
Bản vẽ rất hay (0)
Bản vẽ hay (0)
Bình thường (0)
Chia sẻ nhận xét về bản vẽ
 Viết nhận xét của bạn
Nhân Hiếu
Thời gian 11:30
25/6/2025
Bản vẽ rất tốt   
 Đã mua bản vẽ tại Banvenhadep.vn
Bản vẽ rất tốt và phù hợp để tham khảo
HỖ TRỢ TRỰC TUYẾN