MÃ BẢN VẼ
57024

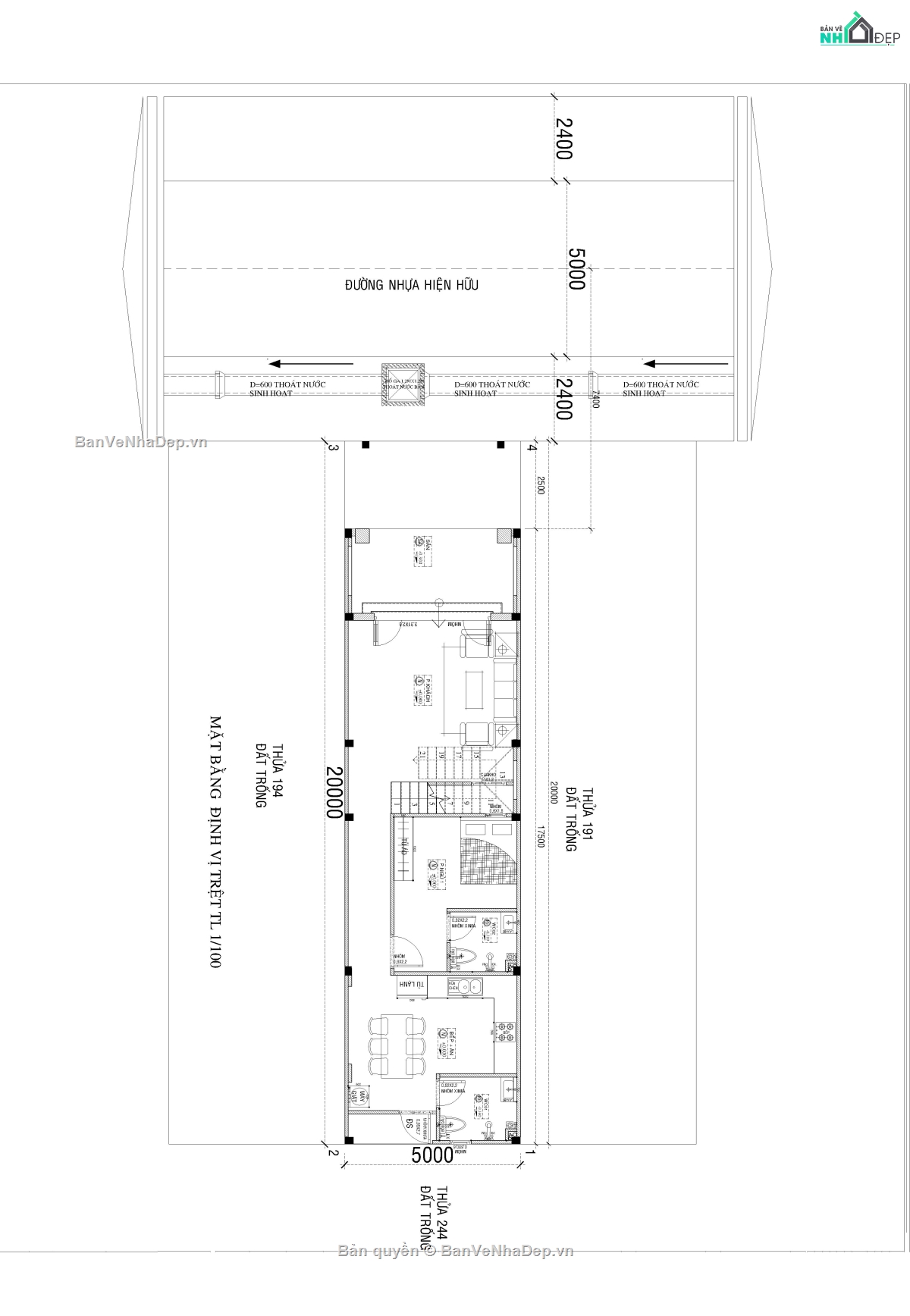
Full bản vẽ thi công nhà ống 2 tầng 5x17.5 tân cổ điển

  (1 Nhận xét)     Viết đánh giá        0     0     146

Full bản vẽ thi công nhà ống 2 tầng 5x17.5 tân cổ điển đẹp đầy đủ các hạng mục kt, kc, điện nước.

Ngày đăng: 19/6/2025
File download: nha pho 5x20 tan co dien.dwg
Dung lượng file: 4.43 MB
Phong cách: Tân cổ điển
Kích thước: Rộng 5m, Dài 17,5m, DT 87,5m2
CÔNG CỤ THIẾT KẾ:
Autocad
Sketchup
3D Max
Revit
Khác...
CÁC HẠNG MỤC CỦA BẢN VẼ:
Kiến trúc
Kết cấu
Điện
Nước
PCCC
Phối cảnh
Dự toán
Tài liệu
Khác...

NGƯỜI ĐĂNG
(Hạng vàng)
Xem trang
bản vẽ nhà
Bản vẽ
18
bộ sưu tập bản vẽ nhà
Bộ sưu tập
0
đánh giá mẫu bản vẽ
Đánh giá (24)
5/5
ngày tham gia bản vẽ nhà đẹp
Ngày tham gia
6/11/2022

Mô tả chi tiết

Full bản vẽ thi công nhà ống 2 tầng 5x17.5 tân cổ điển đẹp đầy đủ các hạng mục kt, kc, điện nước. Chia sẻ tới anh chị để tham khảo.

Bình luận (0)


Đánh giá (1)

ĐÁNH GIÁ TRUNG BÌNH
5/5

(1 Nhận xét)
Bản vẽ rất tốt (1)
Bản vẽ tốt (0)
Bản vẽ rất hay (0)
Bản vẽ hay (0)
Bình thường (0)
Chia sẻ nhận xét về bản vẽ
 Viết nhận xét của bạn
Nhân Hiếu
Thời gian 12:37
19/6/2025
Bản vẽ rất tốt   
 Đã đăng bản vẽ này
Bản vẽ rất tốt và phù hợp để tham khảo
HỖ TRỢ TRỰC TUYẾN