MÃ BẢN VẼ
59795

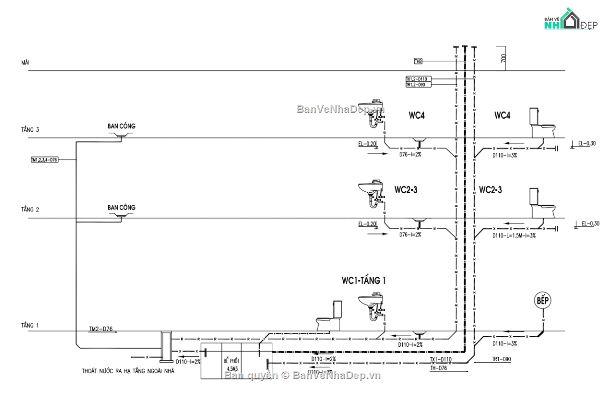
Full file bản vẽ nhà biệt thự 3 tầng 8.8x12.6m

  (1 Nhận xét)     Viết đánh giá        0     0     43

Full bản vẽ mẫu biệt thự, bao danh mục file bản vẽ kiến trúc, kết cấu, điện nước

Ngày đăng: 09/7/2025
File download: 01. Mã BB-84-259-20250709T083824Z-1-001.zip
Dung lượng file: 27 MB
Phong cách: Hiện đại
Kích thước: Rộng 8,8m, Dài 12,6m, DT 110,88m2
CÔNG CỤ THIẾT KẾ:
Autocad
Sketchup
3D Max
Revit
Khác...
CÁC HẠNG MỤC CỦA BẢN VẼ:
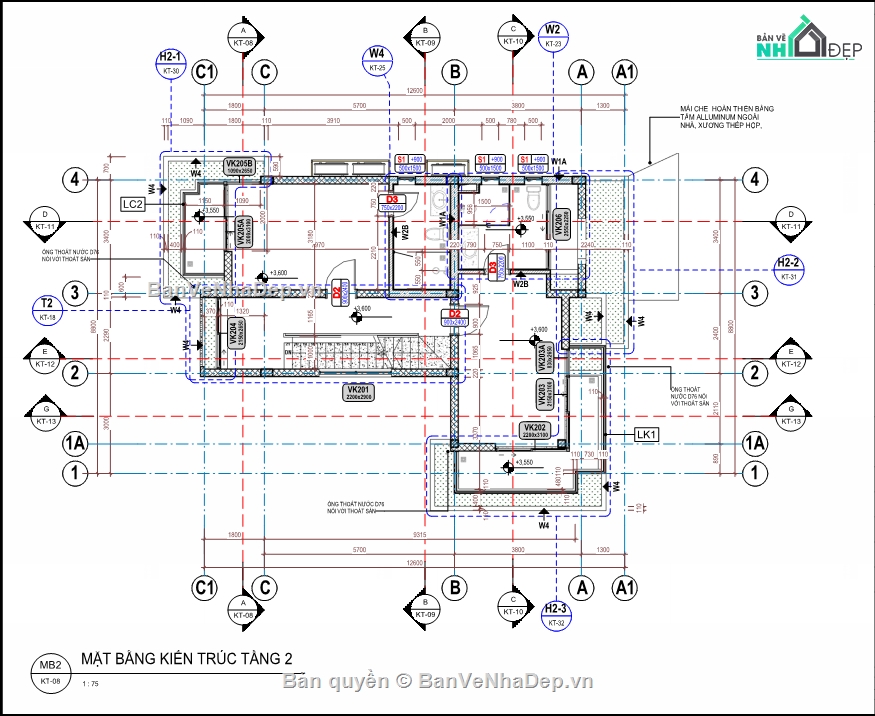
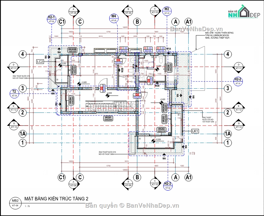
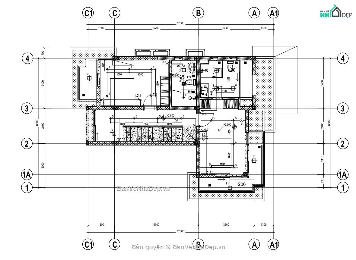
Kiến trúc
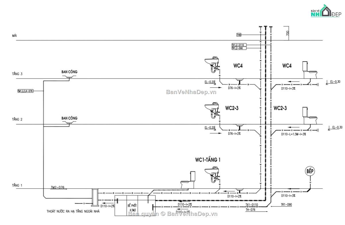
Kết cấu
Điện
Nước
PCCC
Phối cảnh
Dự toán
Tài liệu
Khác...

NGƯỜI ĐĂNG
(Hạng vàng)
Xem trang
bản vẽ nhà
Bản vẽ
314
bộ sưu tập bản vẽ nhà
Bộ sưu tập
0
đánh giá mẫu bản vẽ
Đánh giá (672)
5/5
ngày tham gia bản vẽ nhà đẹp
Ngày tham gia
12/4/2025

Mô tả chi tiết

Chia sẻ tới các bạn file biệt thự 3 tầng 8.8x12.6m. Hy vọng sẽ sữu ích tới các bạn

Bình luận (0)


Đánh giá (1)

ĐÁNH GIÁ TRUNG BÌNH
5/5

(1 Nhận xét)
Bản vẽ rất tốt (1)
Bản vẽ tốt (0)
Bản vẽ rất hay (0)
Bản vẽ hay (0)
Bình thường (0)
Chia sẻ nhận xét về bản vẽ
 Viết nhận xét của bạn
Vân Anh Đỗ
Thời gian 23:17
10/8/2025
Bản vẽ rất tốt   
 Đã mua bản vẽ tại Banvenhadep.vn
Bản vẽ thiết tốt thích hợp để tham khảo
HỖ TRỢ TRỰC TUYẾN