MÃ BẢN VẼ
63210
Full hồ sơ thi công biệt thự Phú Mỹ Hưng 3 tầng 10x13m
Full hồ sơ bản vẽ CAD kiến trúc kết cấu thi công biệt thự Phú Mỹ Hưng 3 tầng 10x13m
Ngày đăng: 10/12/2025
File download:
Biet thu Phu My Hung 3 tang 10x13m.rar
Dung lượng file:
5.3 MB
Phong cách: Hiện đại
Kích thước: Rộng 10m, Dài 13m, DT 130m2
CÔNG CỤ THIẾT KẾ:

Autocad

Sketchup

3D Max

Revit

Khác...
CÁC HẠNG MỤC CỦA BẢN VẼ:

Kiến trúc

Kết cấu

Điện

Nước

PCCC

Phối cảnh

Dự toán

Tài liệu

Khác...
NGƯỜI ĐĂNG
Bản vẽ
127
Bộ sưu tập
0
Đánh giá (148)
5/5
Ngày tham gia
2/4/2024
Mô tả chi tiết
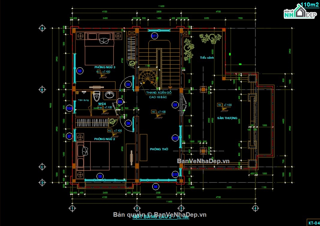
Full hồ sơ bản vẽ CAD kiến trúc kết cấu thi công biệt thự Phú Mỹ Hưng 3 tầng 10x13m trên mảnh đất 15x18m
Công năng:
+ Tầng 1: 1 phòng khách, 1 phòng bếp ăn, 1 khu wc chung
+ Tầng 2: 1 Phòng làm việc, 1 phòng shc, 1 phòng ngủ master.
+ Tầng 3: 2 phòng ngủ, 1 phòng thờ, 1 sân thượng kèm tiểu cảnh.
Bình luận (0)
Đánh giá (1)
ĐÁNH GIÁ TRUNG BÌNH
5/5
(
1 Nhận xét)
Bản vẽ rất tốt (1)
Bản vẽ tốt (0)
Bản vẽ rất hay (0)
Bản vẽ hay (0)
Bình thường (0)
Bản vẽ rất tốt
Đã mua bản vẽ tại Banvenhadep.vn
Bản vẽ rất tốt và phù hợp để tham khảo