MÃ BẢN VẼ
63218
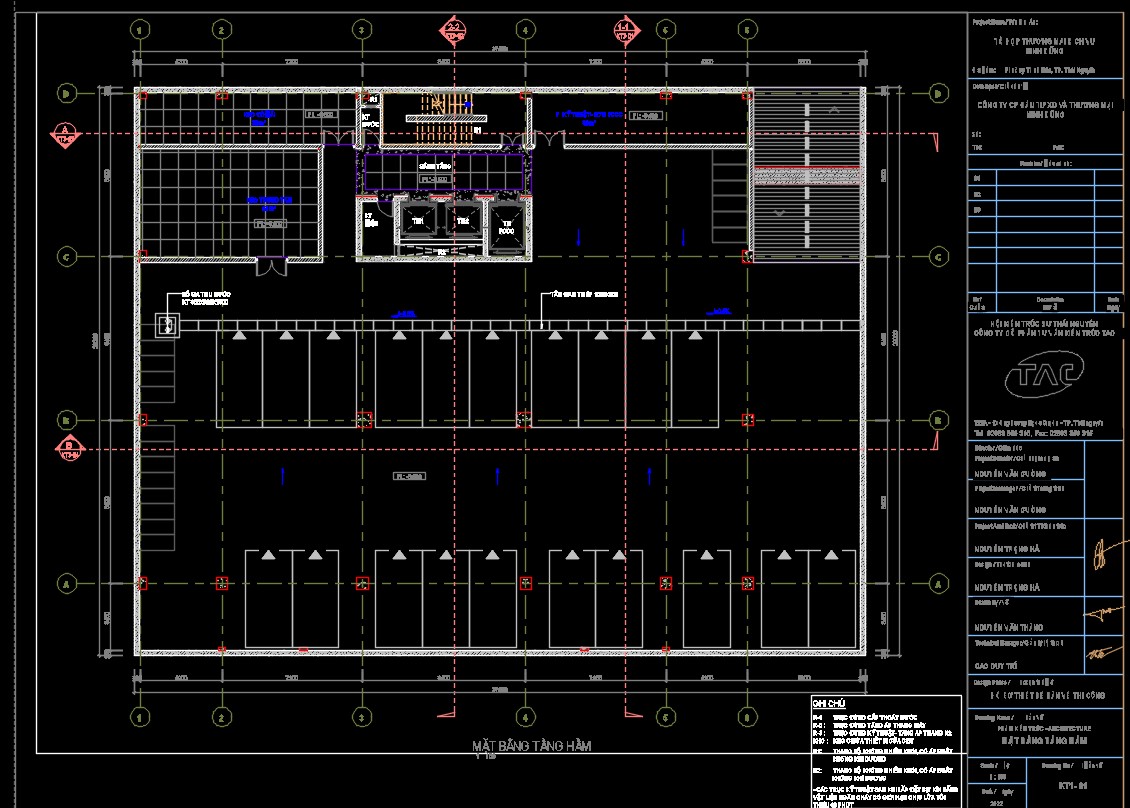
Full hồ sơ thiết kế thi công (bản vẽ CAD, thuyết minh) tòa nhà Minh Dung Plaza
Full hồ sơ thiết kế thi công (bản vẽ CAD, thuyết minh) tòa thương mại dịch vụ Minh Dung Plaza 10 tầng nổi 1 tầng hầm
Ngày đăng: 13/12/2025
File download:
Dung lượng file:
Phong cách: Hiện đại
Kích thước: Rộng 25m, Dài 30m, DT 750m2
CÔNG CỤ THIẾT KẾ:

Autocad

Sketchup

3D Max

Revit

Khác...
CÁC HẠNG MỤC CỦA BẢN VẼ:

Kiến trúc

Kết cấu

Điện

Nước

PCCC

Phối cảnh

Dự toán

Tài liệu

Khác...
NGƯỜI ĐĂNG
Bản vẽ
139
Bộ sưu tập
0
Đánh giá (162)
5/5
Ngày tham gia
2/4/2024
Mô tả chi tiết
Full hồ sơ thiết kế thi công (bản vẽ CAD, thuyết minh) tòa thương mại dịch vụ Minh Dung Plaza 10 tầng nổi 1 tầng hầm kích thước 25x30m
Gồm các hệ kiến trúc, kết cấu, PCCC, điện, nước, điều hòa, chống sét ...
Bình luận (0)
Đánh giá (1)
ĐÁNH GIÁ TRUNG BÌNH
5/5
(
1 Nhận xét)
Bản vẽ rất tốt (1)
Bản vẽ tốt (0)
Bản vẽ rất hay (0)
Bản vẽ hay (0)
Bình thường (0)
Bản vẽ rất tốt
Đã đăng bản vẽ này
Bản vẽ rất tốt và phù hợp để tham khảo