MÃ BẢN VẼ
20545
Hồ sơ autocad, Sketchup thiết Nhà phố 2 tầng 1 tum kích thước 4.98x14.56m
(
1 Nhận xét)
Viết đánh giá
Bình luận: 0
Download: 0
Lượt xem: 686
Full hồ sơ thiết kế bản vẽ nhà phố 2.5 tầng 4.98x14.56m, full hạng mục: Kiến Trúc, kết cấu, điện nước, ảnh phối cảnh, file sketchup
Ngày đăng: 07/11/2022
File download:
HS THIẾT KẾ NHÀ CÔ THÚY - ĐÔNG HƯNG.zip
Dung lượng file:
118 MB
Phong cách: Hiện đại
Kích thước: Rộng 5m, Dài 14,6m, DT 72,8m2
CÔNG CỤ THIẾT KẾ:

Autocad

Sketchup

3D Max

Revit

Khác...
CÁC HẠNG MỤC CỦA BẢN VẼ:

Kiến trúc

Kết cấu

Điện

Nước

PCCC

Phối cảnh

Dự toán

Tài liệu

Khác...
NGƯỜI ĐĂNG
Bản vẽ
28
Bộ sưu tập
0
Đánh giá (45)
5/5
Ngày tham gia
23/9/2022
Mô tả chi tiết
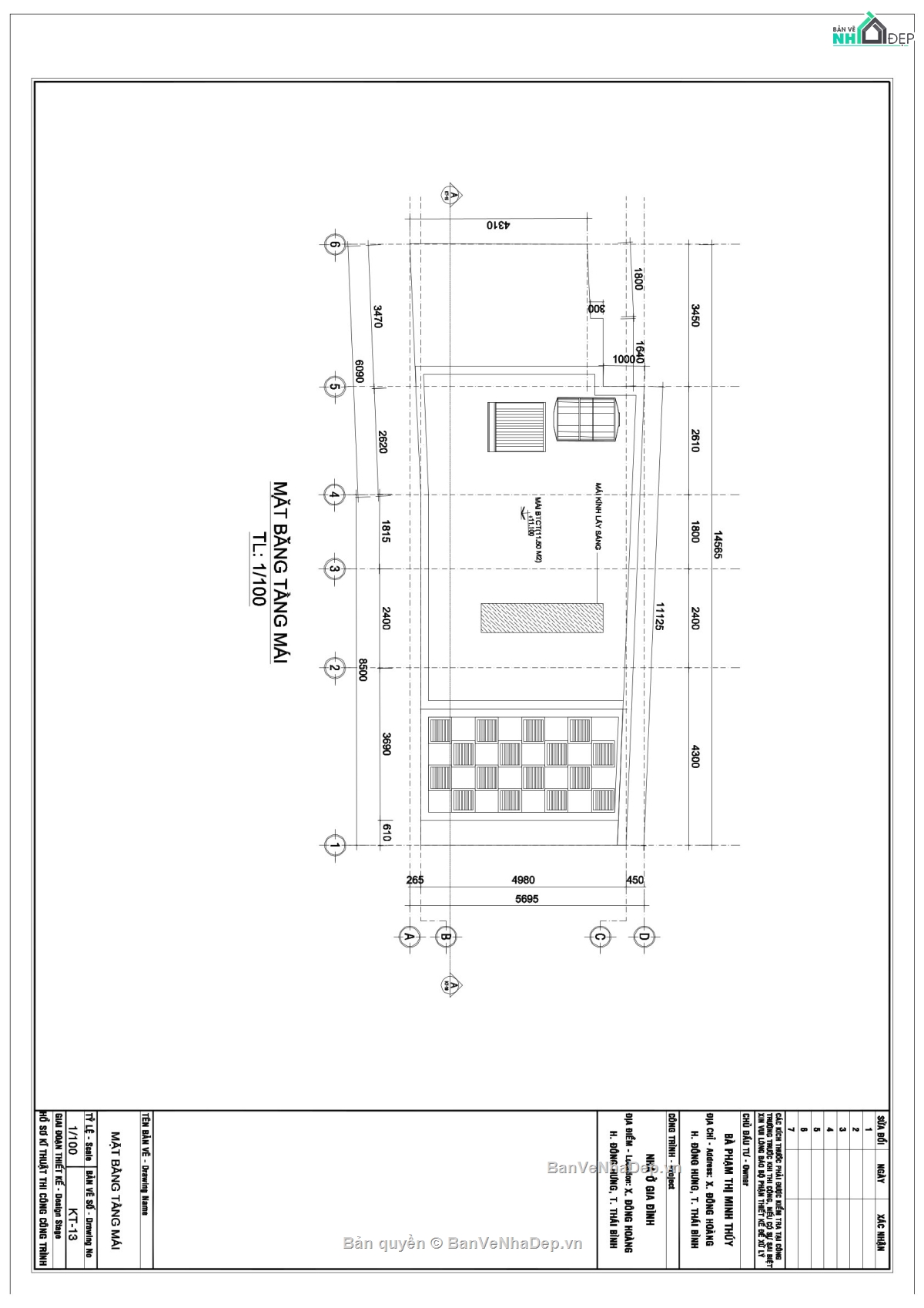
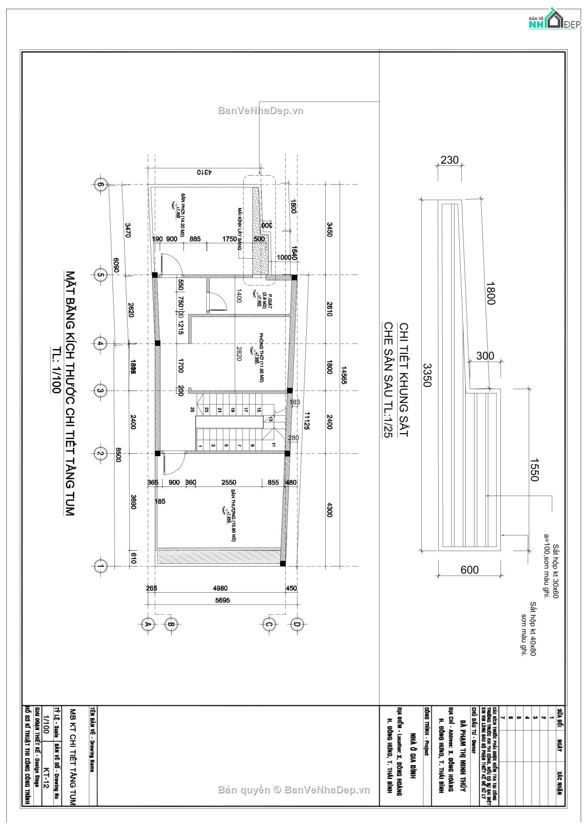
Công năng mẫu nhà phố 2 tầng 1 tum 4.98x14.56m:
+ Tầng 1: Phòng khách, phòng bếp, 1 phòng ngủ, 1 wc
+ Tầng 2: 3 phòng ngủ, 1 wc, ban công
+ Tầng 3: Phòng thờ, sân phơi, sân thượng sau
Mẫu nhà phố 2.5 tầng 4.98x14.56m hiện đại luôn được rất nhiều khách hàng lựa chọn, mình chia sẻ lên trang mẫu nhà phố cho anh em tham khảo ạ.
Bình luận (0)
Đánh giá (1)
ĐÁNH GIÁ TRUNG BÌNH
5/5
(
1 Nhận xét)
Bản vẽ rất tốt (1)
Bản vẽ tốt (0)
Bản vẽ rất hay (0)
Bản vẽ hay (0)
Bình thường (0)
Bản vẽ rất tốt
Đã đăng bản vẽ này
Bản vẽ rất tốt và phù hợp để tham khảo