MÃ BẢN VẼ
48551
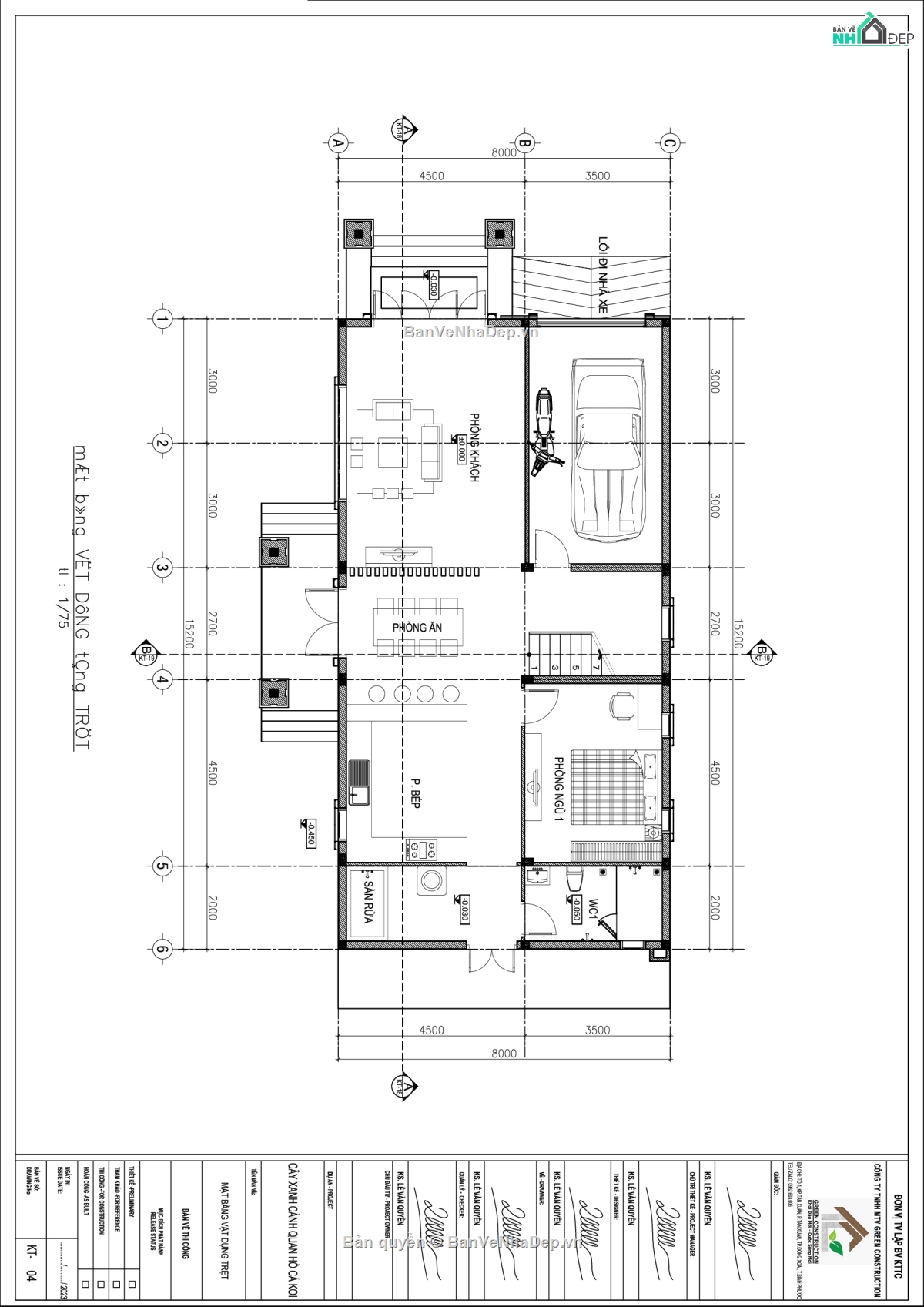
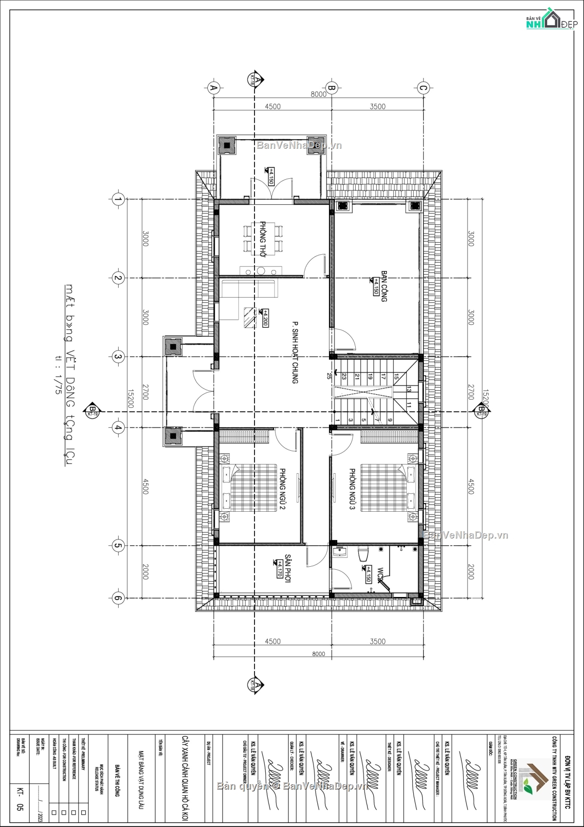
Hồ sơ bản vẽ hồ sơ thi công nhà mái thái 1 1 tầng 1 lầu 150m2
(
1 Nhận xét)
Viết đánh giá
Bình luận: 0
Download: 0
Lượt xem: 252
- hồ sơ hồ sơ bản vẽ thi công bao hạng mục bản vẽ (hồ sơ báo cáo kỹ thuật): + file cad bao gồm: kiến trúc, kết cấu, điện, nước... + file phối cảnh 3d .skp + hồ sơ triển khai theo quy chuẩn luật xây dựng
Ngày đăng: 06/8/2024
File download:
Hồ sơ thiết kế bản vẽ thi công nhà mái thái 1 trệt 1 lầu 150m2.rar
Dung lượng file:
187 MB
Phong cách: Hiện đại
Kích thước: ...
CÔNG CỤ THIẾT KẾ:

Autocad

Sketchup

3D Max

Revit

Khác...
CÁC HẠNG MỤC CỦA BẢN VẼ:

Kiến trúc

Kết cấu

Điện

Nước

PCCC

Phối cảnh

Dự toán

Tài liệu

Khác...
NGƯỜI ĐĂNG
Bản vẽ
98
Bộ sưu tập
0
Đánh giá (121)
5/5
Ngày tham gia
20/8/2021
Mô tả chi tiết
- hồ sơ hồ sơ bản vẽ thi công bao hạng mục bản vẽ (hồ sơ báo cáo kỹ thuật):
+ file cad bao gồm: kiến trúc, kết cấu, điện, nước...
+ file phối cảnh 3d sketchup
+ hồ sơ triển khai theo quy chuẩn luật xây dựng ban hành
Bình luận (0)
Đánh giá (1)
ĐÁNH GIÁ TRUNG BÌNH
5/5
(
1 Nhận xét)
Bản vẽ rất tốt (1)
Bản vẽ tốt (0)
Bản vẽ rất hay (0)
Bản vẽ hay (0)
Bình thường (0)
Bản vẽ rất tốt
Đã mua bản vẽ tại Banvenhadep.vn
Bản vẽ thiết tốt thích hợp để tham khảo