MÃ BẢN VẼ
59492

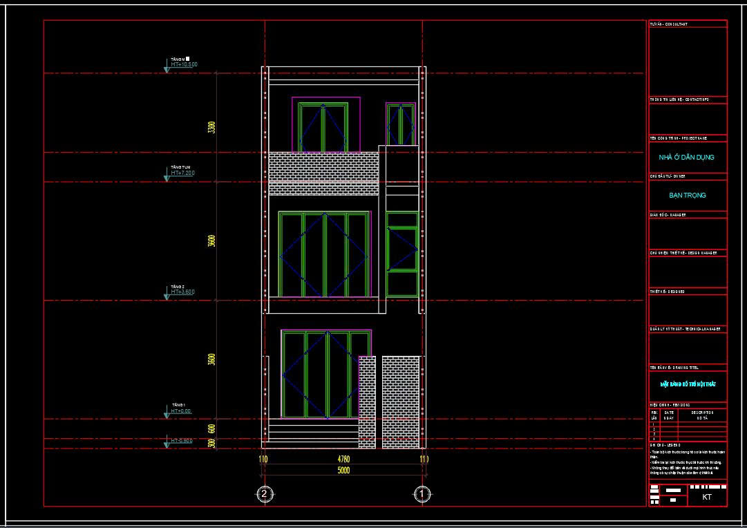
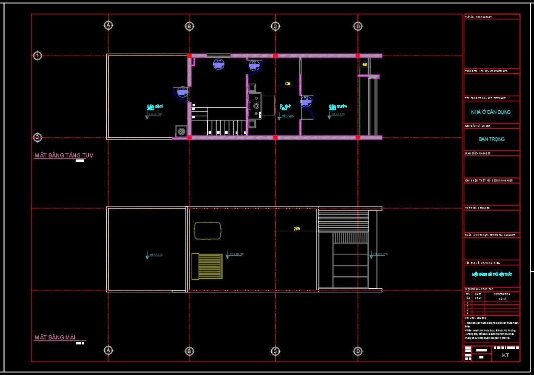
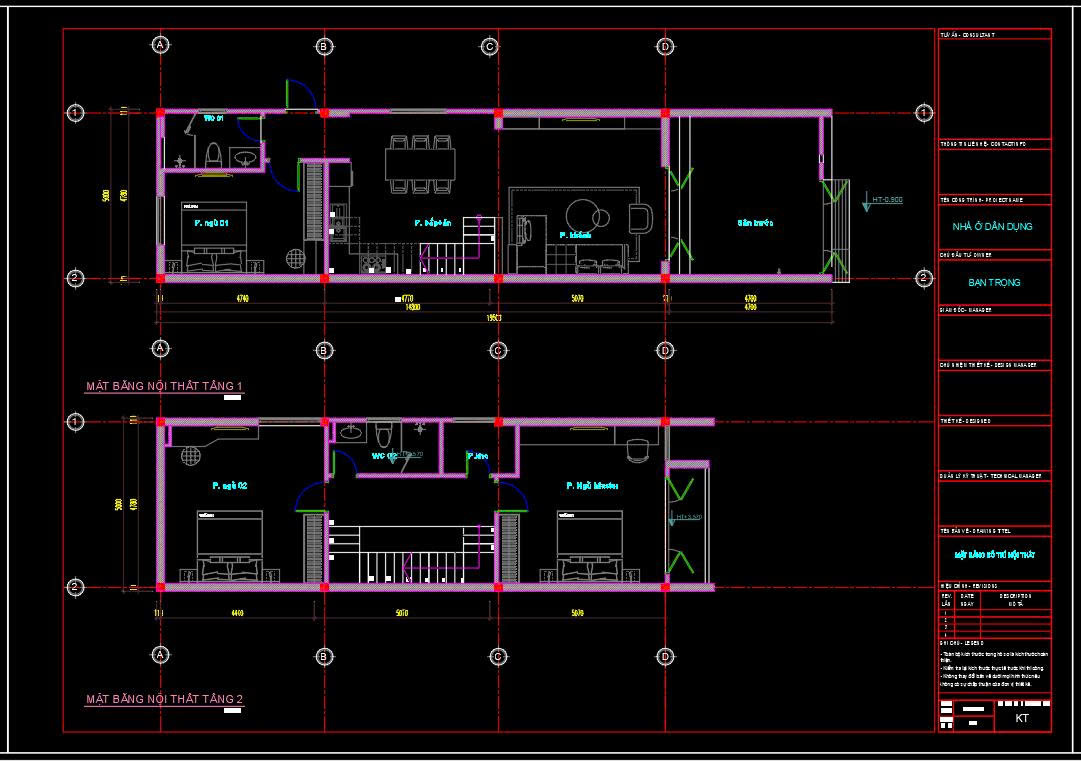
Hồ sơ bản vẽ mẫu nhà phố 3 tầng sang trọng 5x19.5m

  (1 Nhận xét)     Viết đánh giá        0     0     89

Hồ sơ bản vẽ mẫu nhà phố 3 tầng sang trọng (5x19.5m) đầy đủ bản vẽ kiến trúc, kết cấu, điện nước và ảnh phối cảnh 3d

Ngày đăng: 03/7/2025
File download: Hồ sơ thiết kế nhà phố 3 tầng hiện đại (5x19.5m).rar
Dung lượng file: 8.8 MB
Phong cách: Hiện đại
Kích thước: Rộng 5m, Dài 19,5m, DT 97,5m2
CÔNG CỤ THIẾT KẾ:
Autocad
Sketchup
3D Max
Revit
Khác...
CÁC HẠNG MỤC CỦA BẢN VẼ:
Kiến trúc
Kết cấu
Điện
Nước
PCCC
Phối cảnh
Dự toán
Tài liệu
Khác...

NGƯỜI ĐĂNG
(Hạng vàng)
Xem trang
bản vẽ nhà
Bản vẽ
40
bộ sưu tập bản vẽ nhà
Bộ sưu tập
0
đánh giá mẫu bản vẽ
Đánh giá (70)
5/5
ngày tham gia bản vẽ nhà đẹp
Ngày tham gia
16/11/2024

Mô tả chi tiết

Hồ sơ bản vẽ nhà cấp 4 mái thái (5x19.5m) bao gồm:

- Ảnh file phối cảnh 3d công trình

- Hồ sơ bản vẽ kiến trúc

- Hồ sơ bản vẽ kết cấu

- Hồ sơ bản vẽ điện nước

Bình luận (0)


Đánh giá (1)

ĐÁNH GIÁ TRUNG BÌNH
5/5

(1 Nhận xét)
Bản vẽ rất tốt (1)
Bản vẽ tốt (0)
Bản vẽ rất hay (0)
Bản vẽ hay (0)
Bình thường (0)
Chia sẻ nhận xét về bản vẽ
 Viết nhận xét của bạn
A.N Design
Thời gian 14:12
5/7/2025
Bản vẽ rất tốt   
 Đã đăng bản vẽ này
Bản vẽ thiết tốt thích hợp để tham khảo
HỖ TRỢ TRỰC TUYẾN