MÃ BẢN VẼ
61879
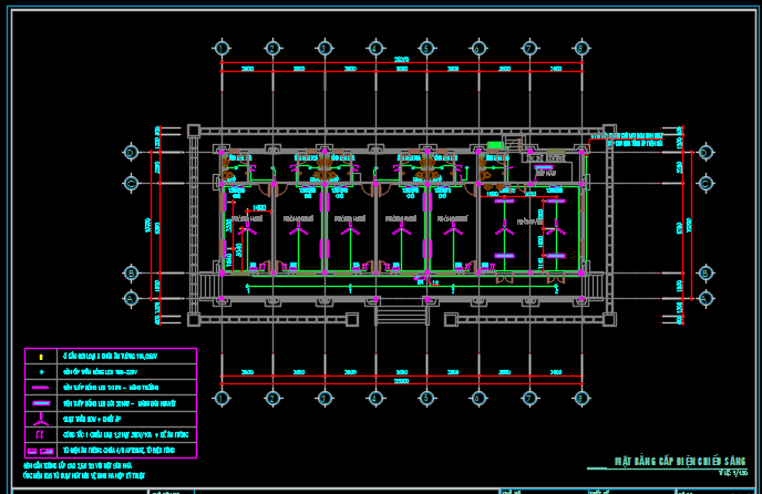
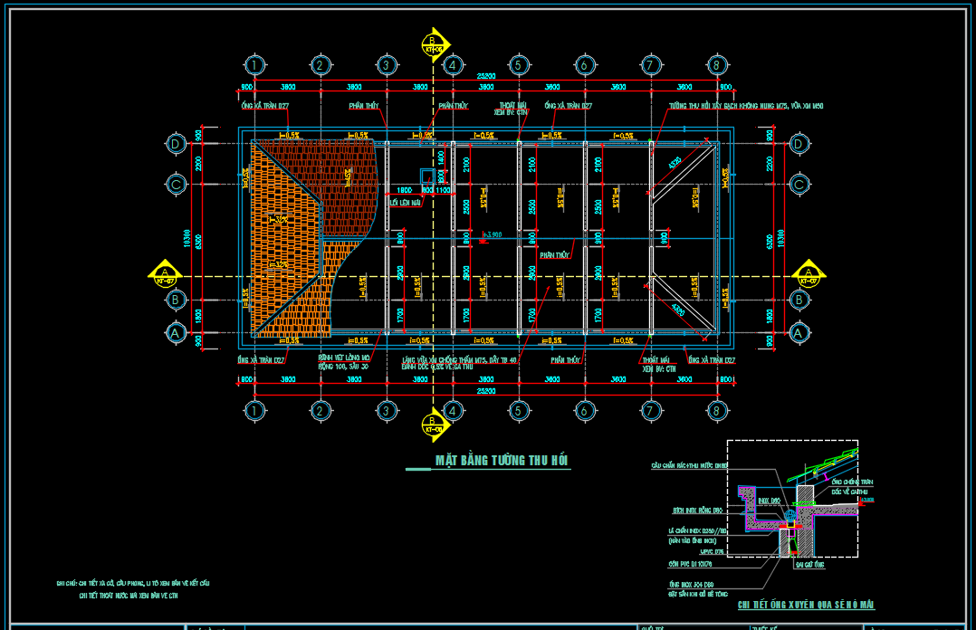
Hồ sơ bản vẽ thi công nhà khách cơ quan 10x25m đầy đủ kiến trúc, kết cấu, điện, nước
Hồ sơ thiết kế thiết kế thi công bản vẽ full thiết kế kiến trúc, kết cấu, điện, nước
Ngày đăng: 12/8/2025
File download:
Nha khach co quan.rar
Dung lượng file:
2.36 MB
Phong cách: Hiện đại
Kích thước: ...
CÔNG CỤ THIẾT KẾ:

Autocad

Sketchup

3D Max

Revit

Khác...
CÁC HẠNG MỤC CỦA BẢN VẼ:

Kiến trúc

Kết cấu

Điện

Nước

PCCC

Phối cảnh

Dự toán

Tài liệu

Khác...
NGƯỜI ĐĂNG
Bản vẽ
26
Bộ sưu tập
0
Đánh giá (77)
5/5
Ngày tham gia
11/6/2025
Mô tả chi tiết
nhà khách cơ quan 10x25m bản vẽ phòng nghỉ, phòng ăn, khu vực bếp nấu...
đầy đủ thiết kế kiến trúc, kết cấu, điện, nước.
có thể sử dụng tham khảo cho nhà làm việc 1 tầng, trụ sở cơ quan.
Bình luận (0)
Đánh giá (1)
ĐÁNH GIÁ TRUNG BÌNH
5/5
(
1 Nhận xét)
Bản vẽ rất tốt (1)
Bản vẽ tốt (0)
Bản vẽ rất hay (0)
Bản vẽ hay (0)
Bình thường (0)
Bản vẽ rất tốt
Đã đăng bản vẽ này
Bản vẽ thiết tốt thích hợp để tham khảo