MÃ BẢN VẼ
46805
Hồ sơ cad nhà cho thuê 3 tầng 5x21.46m (kiến trúc, kết cấu, điện, nước, internet)
(
1 Nhận xét)
Viết đánh giá
Bình luận: 0
Download: 0
Lượt xem: 342
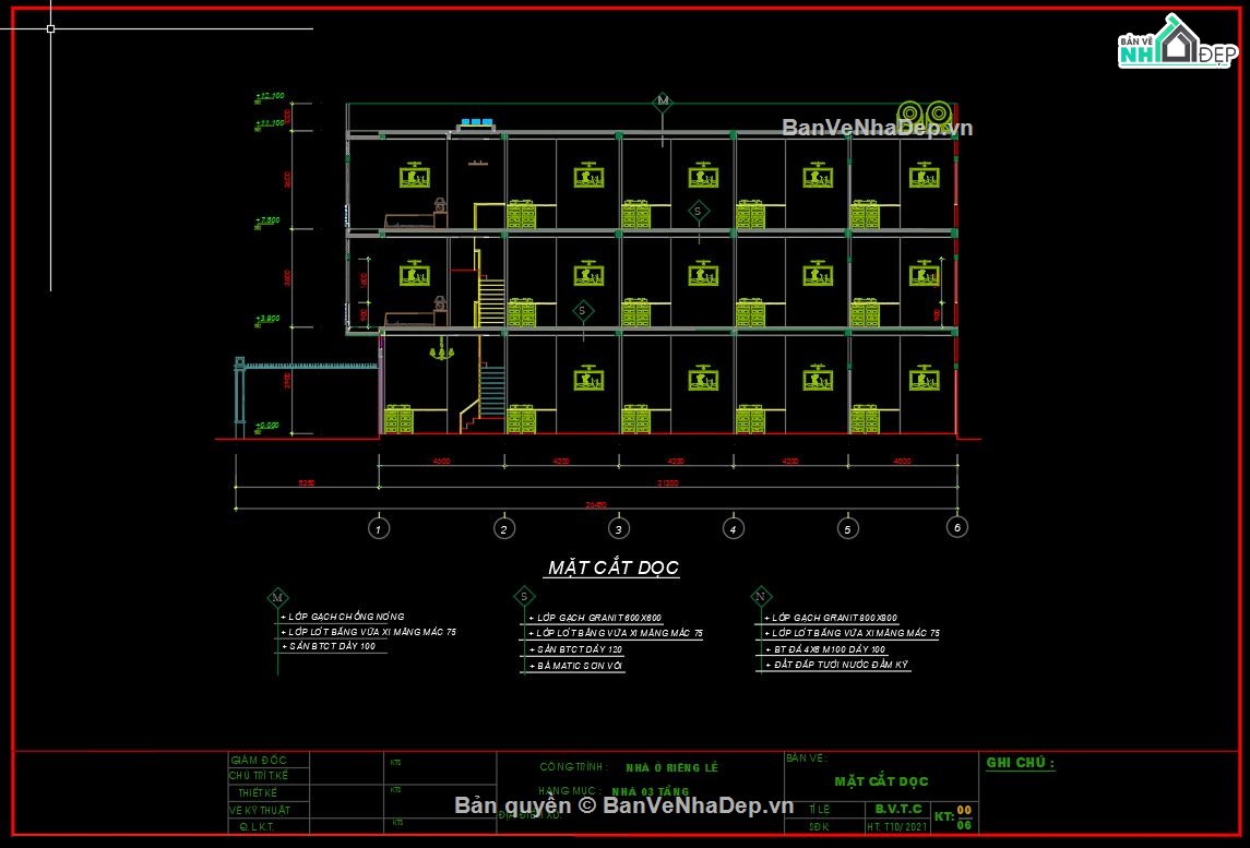
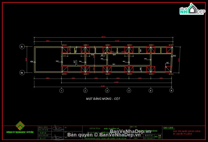
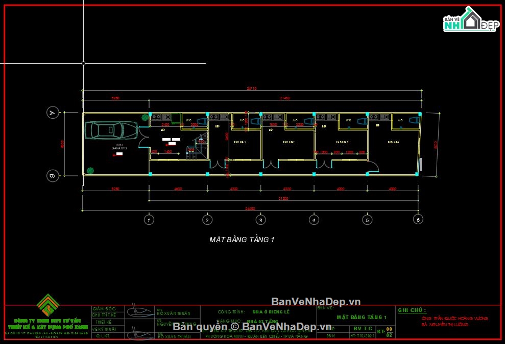
Bản vẽ cad nhà cho thuê 3 tầng 5x21.46m chi tiết kiến trúc, kết cấu, điện, nước, ăng teng, internet
Ngày đăng: 17/5/2024
File download:
NHA CHO THUÊ 3 TÂNG 5x21.46.dwg
Dung lượng file:
2.78 MB
Phong cách: Hiện đại
Kích thước: ...
CÔNG CỤ THIẾT KẾ:

Autocad

Sketchup

3D Max

Revit

Khác...
CÁC HẠNG MỤC CỦA BẢN VẼ:

Kiến trúc

Kết cấu

Điện

Nước

PCCC

Phối cảnh

Dự toán

Tài liệu

Khác...
NGƯỜI ĐĂNG
Bản vẽ
176
Bộ sưu tập
0
Đánh giá (194)
4/5
Ngày tham gia
16/10/2018
Mô tả chi tiết
hồ sơ mẫu bản vẽ nhà cho thuê 3 tầng 5x21.46m file cad các danh mục kiến trúc, kết cấu, điện, nước, ăng teng, internet
- diện tích đất: 5x26.7m .
- sân trước 5,25m để xe.
công năng:
- t1: phòng khách + bếp + 1 wc + thang lên tầng, 4 phòng cho thuê khép kín bếp + wc
- t2: 4 phòng ngủ khép kín bếp + wc, 1 phòng ngủ đơn trống
- t3: 4 phòng ngủ khép kín bếp + wc, 1 phòng ngủ đơn trống
bộ bản vẽ dùng để tham khảo trong thi công xây dựng. tùy theo nhu cầu sử dụng của mỗi gia đình.
Bình luận (0)
Đánh giá (1)
ĐÁNH GIÁ TRUNG BÌNH
5/5
(
1 Nhận xét)
Bản vẽ rất tốt (1)
Bản vẽ tốt (0)
Bản vẽ rất hay (0)
Bản vẽ hay (0)
Bình thường (0)
Bản vẽ rất tốt
Đã đăng bản vẽ này
Bản vẽ thiết tốt thích hợp để tham khảo