MÃ BẢN VẼ
59466
Hồ sơ file cad mẫu biệt thự 2 tầng cao cấp 8.1x8.8m
(
1 Nhận xét)
Viết đánh giá
Bình luận: 0
Download: 1
Lượt xem: 111
Hồ sơ thiết kế nhà 2 tầng kiểu mới 8.1x8.8m full thiết kế kiến trúc, kết cấu, điện nước và ảnh file phối cảnh 3d
Ngày đăng: 02/7/2025
File download:
Hồ sơ thiết kế biệt thự 2 tầng hiện đại (8.1mx8.8m).rar
Dung lượng file:
6.3 MB
Phong cách: Hiện đại
Kích thước: Rộng 8,1m, Dài 8,8m, DT 71,28m2
CÔNG CỤ THIẾT KẾ:

Autocad

Sketchup

3D Max

Revit

Khác...
CÁC HẠNG MỤC CỦA BẢN VẼ:

Kiến trúc

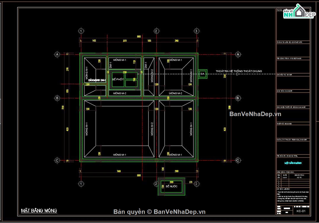
Kết cấu

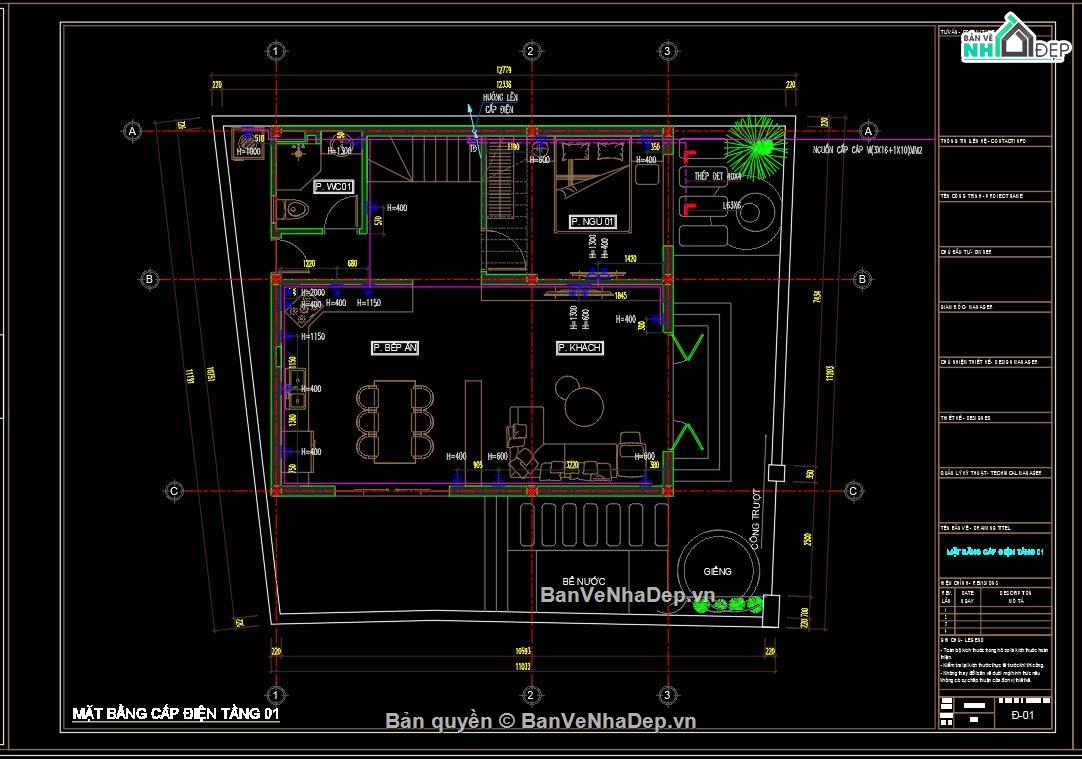
Điện

Nước

PCCC

Phối cảnh

Dự toán

Tài liệu

Khác...
NGƯỜI ĐĂNG
Bản vẽ
43
Bộ sưu tập
0
Đánh giá (73)
5/5
Ngày tham gia
16/11/2024
Mô tả chi tiết
Hồ sơ thiết kế mẫu biệt thự 2 tầng kiểu mới 8.1x8.8m bao gồm:
- Ảnh file phối cảnh 3d công trình
- Thiết kế thiết kế kiến trúc
- Thiết kế thiết kế kết cấu
- Thiết kế thiết kế điện nước
Bình luận (0)
Đánh giá (1)
ĐÁNH GIÁ TRUNG BÌNH
5/5
(
1 Nhận xét)
Bản vẽ rất tốt (1)
Bản vẽ tốt (0)
Bản vẽ rất hay (0)
Bản vẽ hay (0)
Bình thường (0)
Bản vẽ rất tốt
Đã đăng bản vẽ này
Bản vẽ thiết tốt thích hợp để tham khảo