Đăng nhập
Đăng kí
NẠP TIỀN
THƯ VIỆN BẢN VẼ
HỘI KIẾN TRÚC SƯ
ĐĂNG TIN & THẢO LUẬN
CÔNG CỤ
Autocad
Sketchup
3D Max
Revit
Khác...
DANH MỤC
Biệt thự
Lâu đài, dinh thự
Biệt thự 1 Tầng
Biệt thự 2 Tầng
Biệt thự 3 Tầng
Biệt thự Trên 3 Tầng
Nhà phố
Nhà phố 1 Tầng
Nhà phố 2 Tầng
Nhà phố 3 Tầng
Nhà phố 4 Tầng
Nhà phố Trên 4 Tầng
Nhà xưởng
Nội thất
Biệt thự
Nhà phố
Chung cư, Văn phòng
Cửa hàng, Quán
Nội thất khác...
Ngoại thất
Bản vẽ khác...
Nhà thờ, Đình chùa
Chung cư, Văn phòng
Công trình xã hội
Cửa hàng, Quán
Khách sạn
Nhà cấp 4
Bản vẽ khác...
BỘ SƯU TẬP
Tìm bản vẽ
Autocad
Sketchup
3D Max
Revit
Khác...
ĐĂNG BẢN VẼ
×
ĐĂNG NHẬP
Đăng nhập nhanh
Log in
Log in
Bạn chưa có tài khoản Banvenhadep.vn?
Đăng ký ngay
Email
*
Password
*
Mã khác
Quên mật khẩu?
Đăng nhập
Trang chủ
Nhà phố "Nhà phố 4 Tầng"
Hồ sơ file cad nhà dân 4 tầng diện tích 3.8x10.6m
MÃ BẢN VẼ
60018
Hồ sơ file cad nhà dân 4 tầng diện tích 3.8x10.6m
(
1 Nhận xét
)
Viết đánh giá
Bình luận:
0
Download:
0
Lượt xem:
37
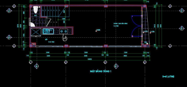
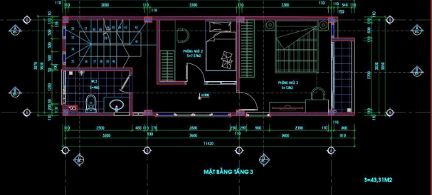
Bộ thiết kế nhà dân 4 tầng với kích thước thiết kế 3.8x10.6m bản vẽ đầy đủ kiến trúc, kết cấu, điện, nước
Danh mục:
Nhà phố
Nhà phố 4 Tầng
Ngày đăng:
22/7/2025
File download:
.rar
Dung lượng file:
MB
Phong cách:
Hiện đại
Kích thước:
Rộng
3,8m
, Dài
10,6m
, DT
40,28m
2
CÔNG CỤ THIẾT KẾ:
Autocad
Sketchup
3D Max
Revit
Khác...
CÁC HẠNG MỤC CỦA BẢN VẼ:
Kiến trúc
Kết cấu
Điện
Nước
PCCC
Phối cảnh
Dự toán
Tài liệu
Khác...
NGƯỜI ĐĂNG
Lan Chi Arc
(Hạng vàng)
Xem
trang
Bản vẽ
317
Bộ sưu tập
0
Đánh giá (
458
)
5/5
Ngày tham gia
9/6/2025
Mô tả chi tiết
Hồ sơ đầy đủ các danh mục từ kiến trúc, kết cấu, đến hệ thống điện nước
Bình luận (
0
)
BÌNH LUẬN
BÌNH LUẬN
Đánh giá (
1
)
ĐÁNH GIÁ TRUNG BÌNH
5
/5
(
1 Nhận xét
)
Bản vẽ rất tốt
(1)
Bản vẽ tốt
(0)
Bản vẽ rất hay
(0)
Bản vẽ hay
(0)
Bình thường
(0)
Chia sẻ nhận xét về bản vẽ
Viết nhận xét của bạn
Lan Chi Arc
Thời gian 23:17
10/8/2025
Bản vẽ rất tốt
Đã đăng bản vẽ này
Bản vẽ thiết tốt thích hợp để tham khảo
Hiển thị 20
Hiển thị 50
Tất cả
×
NẠP TIỀN DOWNLOAD NGAY
Bạn đang download:
[Mã bản vẽ
60018
]
Phí tải
150.000
đ
CHUYỂN KHOẢN
Bạn cần đăng nhập để tải bản vẽ qua chức năng này!
ĐĂNG NHẬP NGAY
Phí download
150.000
đ
DOWNLOAD
NGAY
Link download dự phòng
Bạn có bản vẽ hay
ĐĂNG
BÁN
NGAY
LƯU
VÀO
YÊU THÍCH
Báo
vi phạm
bản quyền
Gửi hỗ trợ - Báo lỗi
Gửi ngay
CHIA SẺ NHANH
(BẢN VẼ
60018
)
Gửi tới email bạn bè
TỪ KHÓA LIÊN QUAN
nhà 4 tầng
Nhà phố 4 tầng cad
File cad nhà phố 4 tầng
Bản vẽ tương tự
BẢN VẼ
Nhà phố 4 Tầng
466
Su nhà phố 4 tầng 4x10.8m
10.000
đ
BẢN VẼ
Nhà phố 4 Tầng
414
Model su nhà phố 4 tầng 4.3x14m
20.000
đ
BẢN VẼ
Nhà phố 4 Tầng
410
File su mẫu nhà phố 4 tầng 3.75x13m
MIỄN PHÍ
BẢN VẼ
Nhà phố 4 Tầng
607
Mẫu thiết kế nhà ống 4 tầng đẹp phong cách hiện đại 3.3x19.4m
65.000
đ
BẢN VẼ
Biệt thự 1 Tầng
722
Trọn bộ hồ sơ autocad thiết kế bản vẽ kỹ thuật thi công nhà cấp 4 hiện đại 1 tầng kích thước 8.1x13.61m
300.000
đ
Gợi ý cho bạn
BẢN VẼ
Biệt thự 2 Tầng
390
Biệt thự 2 tầng kích thước 11.6x14m model su
60.000
đ
BẢN VẼ
Biệt thự 2 Tầng
427
Biệt thự 2 tầng mái thái kích thước 8x15.5m model su
30.000
đ
BẢN VẼ
Biệt thự 2 Tầng
383
Biệt thự 3 tầng file sketchup 11.85x15.83m
20.000
đ
BẢN VẼ
Biệt thự 3 Tầng
475
Free tải mẫu biệt thự 3 tầng 18x30m model su
MIỄN PHÍ
BẢN VẼ
Biệt thự 1 Tầng
645
Mẫu nhà ở hiện đại model sketchup
MIỄN PHÍ
HỖ TRỢ TRỰC TUYẾN