MÃ BẢN VẼ
12287
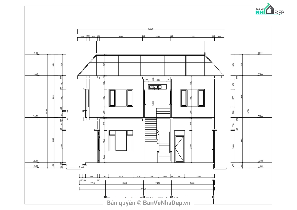
Hồ sơ file cad thiết kế biệt thự 2 tầng kích thước 9.72x11.6m gồm: kiến trúc, kết cấu, điện nước kèm file phối cảnh
(
1 Nhận xét)
Viết đánh giá
Bình luận: 0
Download: 2
Lượt xem: 887
Hồ sơ file cad thiết kế biệt thự 2 tầng kích thước 9.72x11.6m gồm: kiến trúc, kết cấu, điện nước kèm file phối cảnh công năng hợp lý - tầng 1 : phòng khách, phòng bếp và hai phòng ngủ - tầng 2 : 1 phòng ngủ,1 phòng sinh hoạt, 1 phòng thờ, sân phơi
Ngày đăng: 05/1/2020
File download:
BT ANH GIANG 9.1X11.6_2.rar
Dung lượng file:
78.6 MB
Phong cách: Hiện đại
Kích thước: Rộng 9,72m, Dài 11,6m, DT 112,75m2
CÔNG CỤ THIẾT KẾ:

Autocad

Sketchup

3D Max

Revit

Khác...
CÁC HẠNG MỤC CỦA BẢN VẼ:

Kiến trúc

Kết cấu

Điện

Nước

PCCC

Phối cảnh

Dự toán

Tài liệu

Khác...
NGƯỜI ĐĂNG
Bản vẽ
99
Bộ sưu tập
0
Đánh giá (101)
4/5
Ngày tham gia
27/11/2018
Mô tả chi tiết
Hồ sơ file cad thiết kế biệt thự 2 tầng kích thước 9.72x11.6m gồm: kiến trúc, kết cấu, điện nước kèm file phối cảnh hạng mục: kiến trúc, kết cấu, điện nước, file phối cảnh.
Công năng hợp lý :
- tầng 1 : phòng khách, phòng bếp và hai phòng ngủ
- tầng 2 : 1 phòng ngủ,1 phòng sinh hoạt, 1 phòng thờ, sân phơi
Bình luận (0)
Đánh giá (1)
ĐÁNH GIÁ TRUNG BÌNH
5/5
(
1 Nhận xét)
Bản vẽ rất tốt (1)
Bản vẽ tốt (0)
Bản vẽ rất hay (0)
Bản vẽ hay (0)
Bình thường (0)
Bản vẽ rất tốt
Đã đăng bản vẽ này
Bản vẽ thiết tốt thích hợp để tham khảo