MÃ BẢN VẼ
62690
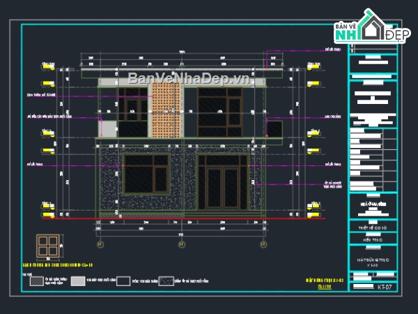
Hồ sơ kiến trúc nhà anh giang - bắc giang 9x8.6m 2 tầng kiến trúc kiểu mới
Hồ sơ kiến trúc nhà anh giang - bắc giang 9x8.6m 2 tầng kiến trúc sang trọng
Ngày đăng: 28/9/2025
File download:
KT-NHÀ ANH GIANG-BG.3.11.2024.dwg
Dung lượng file:
2.8 MB
Phong cách: Hiện đại
Kích thước: ...
CÔNG CỤ THIẾT KẾ:

Autocad

Sketchup

3D Max

Revit

Khác...
CÁC HẠNG MỤC CỦA BẢN VẼ:

Kiến trúc

Kết cấu

Điện

Nước

PCCC

Phối cảnh

Dự toán

Tài liệu

Khác...
NGƯỜI ĐĂNG
Bản vẽ
20
Bộ sưu tập
0
Đánh giá (22)
5/5
Ngày tham gia
23/7/2022
Mô tả chi tiết
Bộ bản vẽ đầy đủ file cad kiến trúc, phương án cho biệt thự kiến trúc hiện đại. hạng mục: gồm mặt bằng kiến trúc, mặt đứng, mặt cắt, mặt bằng công năng...
công năng:
tầng 1 gồm: phòng khách, bếp + phòng ăn, phòng ngủ 01, wc-01
tầng 2 gồm: phòng ngủ 02, phòng ngủ 03, phòng ngủ 04, wc02, phòng thờ, bc
Bình luận (0)
Đánh giá (1)
ĐÁNH GIÁ TRUNG BÌNH
5/5
(
1 Nhận xét)
Bản vẽ rất tốt (1)
Bản vẽ tốt (0)
Bản vẽ rất hay (0)
Bản vẽ hay (0)
Bình thường (0)
Bản vẽ rất tốt
Đã mua bản vẽ tại Banvenhadep.vn
Bản vẽ thiết tốt thích hợp để tham khảo