MÃ BẢN VẼ
59451
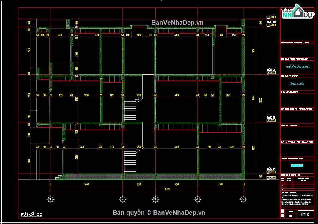
Hồ sơ mẫu nhà ở phố 3 tầng kiểu mới 5x16m
(
1 Nhận xét)
Viết đánh giá
Bình luận: 0
Download: 0
Lượt xem: 104
Hồ sơ mẫu nhà ở phố 3 tầng kiểu mới (5x16m) full file bản vẽ kiến trúc, kết cấu, điện nước và ảnh file phối cảnh 3d
Ngày đăng: 02/7/2025
File download:
Hồ sơ thiết kế nhà phố 3 tầng hiện đại (5mx16m).rar
Dung lượng file:
3.7 MB
Phong cách: Hiện đại
Kích thước: Rộng 5m, Dài 16m, DT 80m2
CÔNG CỤ THIẾT KẾ:

Autocad

Sketchup

3D Max

Revit

Khác...
CÁC HẠNG MỤC CỦA BẢN VẼ:

Kiến trúc

Kết cấu

Điện

Nước

PCCC

Phối cảnh

Dự toán

Tài liệu

Khác...
NGƯỜI ĐĂNG
Bản vẽ
40
Bộ sưu tập
0
Đánh giá (70)
5/5
Ngày tham gia
16/11/2024
Mô tả chi tiết
Hồ sơ mẫu nhà ở phố 3 tầng kiểu mới (5mx16m) bao gồm:
- Ảnh file phối cảnh 3d công trình
- File bản vẽ mẫu kiến trúc
- File bản vẽ mẫu kết cấu
- File bản vẽ mẫu điện nước
Bình luận (0)
Đánh giá (1)
ĐÁNH GIÁ TRUNG BÌNH
5/5
(
1 Nhận xét)
Bản vẽ rất tốt (1)
Bản vẽ tốt (0)
Bản vẽ rất hay (0)
Bản vẽ hay (0)
Bình thường (0)
Bản vẽ rất tốt
Đã đăng bản vẽ này
Bản vẽ thiết tốt thích hợp để tham khảo