MÃ BẢN VẼ
60013

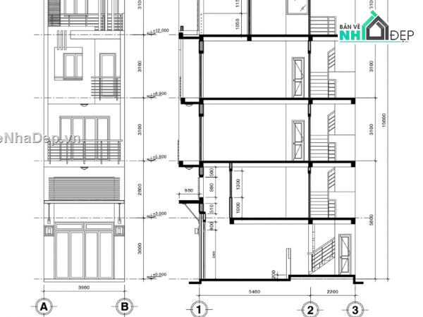
Hồ sơ mẫu nhà ở phố 4 tầng 4x8m

  (1 Nhận xét)     Viết đánh giá        0     0     32

Toàn bộ bản vẽ cad đầy đủ kiến trúc, kết cấu, điện nước đang chờ bạn download về.

Ngày đăng: 21/7/2025
File download: .rar
Dung lượng file: MB
Phong cách: Hiện đại
Kích thước: Rộng 4m, Dài 8m, DT 32m2
CÔNG CỤ THIẾT KẾ:
Autocad
Sketchup
3D Max
Revit
Khác...
CÁC HẠNG MỤC CỦA BẢN VẼ:
Kiến trúc
Kết cấu
Điện
Nước
PCCC
Phối cảnh
Dự toán
Tài liệu
Khác...

NGƯỜI ĐĂNG
(Hạng vàng)
Xem trang
bản vẽ nhà
Bản vẽ
356
bộ sưu tập bản vẽ nhà
Bộ sưu tập
0
đánh giá mẫu bản vẽ
Đánh giá (458)
5/5
ngày tham gia bản vẽ nhà đẹp
Ngày tham gia
9/6/2025

Mô tả chi tiết

Tiếp tục gửi đến một tập hồ sơ thiết kế nhà ở mặt tiền 4m vô cùng độc đáo. với quy mô 1 trệt, cấp 4 lửng, 2 lầu và 1 sân thượng, thiết kế này là minh chứng cho việc không gian sống tiện nghi, kiểu mới hoàn toàn có thể được tạo ra trong một khuôn đất nhỏ. 

Bình luận (0)


Đánh giá (1)

ĐÁNH GIÁ TRUNG BÌNH
5/5

(1 Nhận xét)
Bản vẽ rất tốt (1)
Bản vẽ tốt (0)
Bản vẽ rất hay (0)
Bản vẽ hay (0)
Bình thường (0)
Chia sẻ nhận xét về bản vẽ
 Viết nhận xét của bạn
Lan Chi Arc
Thời gian 23:17
10/8/2025
Bản vẽ rất tốt   
 Đã mua bản vẽ tại Banvenhadep.vn
Bản vẽ thiết tốt thích hợp để tham khảo
HỖ TRỢ TRỰC TUYẾN