MÃ BẢN VẼ
61950

Hồ sơ mố chữ u chéo góc b=11m hồ sơ

  (1 Nhận xét)     Viết đánh giá        0     0     19

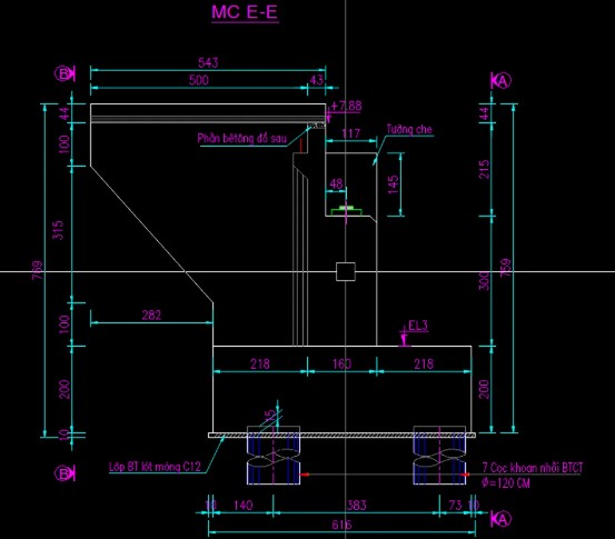
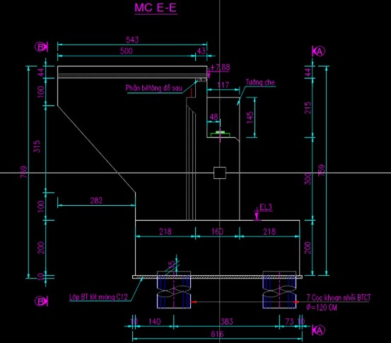
File bao bản vẽ các thiết kế cấu tạo chung của mố, bố trí thép đầy đủ và bảng khối lượng.

Ngày đăng: 14/8/2025
File download: .rar
Dung lượng file: MB
Phong cách: Hiện đại
Kích thước: ...
CÔNG CỤ THIẾT KẾ:
Autocad
Sketchup
3D Max
Revit
Khác...
CÁC HẠNG MỤC CỦA BẢN VẼ:
Kiến trúc
Kết cấu
Điện
Nước
PCCC
Phối cảnh
Dự toán
Tài liệu
Khác...

NGƯỜI ĐĂNG
(Hạng vàng)
Xem trang
bản vẽ nhà
Bản vẽ
222
bộ sưu tập bản vẽ nhà
Bộ sưu tập
0
đánh giá mẫu bản vẽ
Đánh giá (431)
5/5
ngày tham gia bản vẽ nhà đẹp
Ngày tham gia
17/8/2022

Mô tả chi tiết

file chứa thiết kế danh mục mố chữ u chéo góc cho cầu có bề rộng b = 11m, bản vẽ các hình vẽ cấu tạo chung của mố, bản bố trí thép đầy đủ và bảng khối lượng.

Bình luận (0)


Đánh giá (1)

ĐÁNH GIÁ TRUNG BÌNH
5/5

(1 Nhận xét)
Bản vẽ rất tốt (1)
Bản vẽ tốt (0)
Bản vẽ rất hay (0)
Bản vẽ hay (0)
Bình thường (0)
Chia sẻ nhận xét về bản vẽ
 Viết nhận xét của bạn
Linh0 ThuvienC
Thời gian 08:43
25/10/2025
Bản vẽ rất tốt   
 Đã đăng bản vẽ này
Bản vẽ thiết tốt thích hợp để tham khảo
HỖ TRỢ TRỰC TUYẾN