MÃ BẢN VẼ
59824

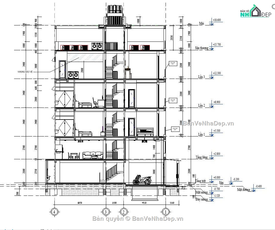
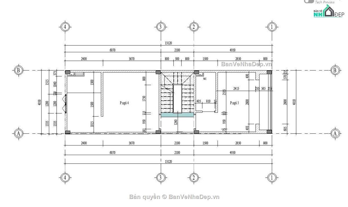
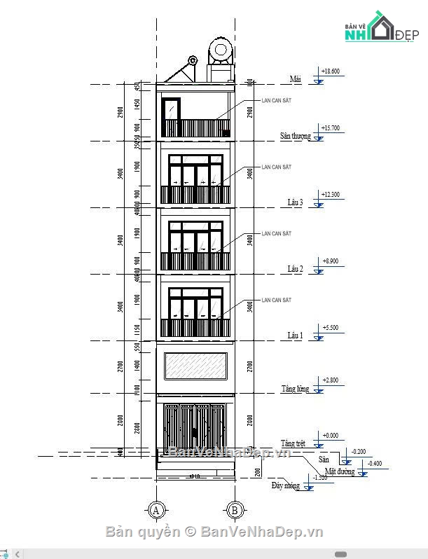
Hồ sơ thiết kế nhà 6 tầng 4x16m

  (1 Nhận xét)     Viết đánh giá        0     3     100

Hồ sơ file cad nhà 6 tầng đầy đủ revit + cad có file ảnh in sẵn, có file phối cảnh đính kèm.

Ngày đăng: 11/7/2025
File download: HO SO A KIM 3-2025.rar
Dung lượng file: 320 MB
Phong cách: Hiện đại
Kích thước: Rộng 4m, Dài 16m, DT 64m2
CÔNG CỤ THIẾT KẾ:
Autocad
Sketchup
3D Max
Revit
Khác...
CÁC HẠNG MỤC CỦA BẢN VẼ:
Kiến trúc
Kết cấu
Điện
Nước
PCCC
Phối cảnh
Dự toán
Tài liệu
Khác...

NGƯỜI ĐĂNG
(Hạng vàng)
Xem trang
bản vẽ nhà
Bản vẽ
1
bộ sưu tập bản vẽ nhà
Bộ sưu tập
0
đánh giá mẫu bản vẽ
Đánh giá (1)
5/5
ngày tham gia bản vẽ nhà đẹp
Ngày tham gia
16/7/2022

Mô tả chi tiết

Hồ sơ bản vẽ nhà 6 tầng đầy đủ revit + dwg + pdf kiến trúc, kết cấu, điện nước. hy vọng sẽ hữu ích tới các bạn.

Phần kết cấu, đn là danh mục cad

Bình luận (0)


Đánh giá (1)

ĐÁNH GIÁ TRUNG BÌNH
5/5

(1 Nhận xét)
Bản vẽ rất tốt (1)
Bản vẽ tốt (0)
Bản vẽ rất hay (0)
Bản vẽ hay (0)
Bình thường (0)
Chia sẻ nhận xét về bản vẽ
 Viết nhận xét của bạn
Le Son
Thời gian 23:17
10/8/2025
Bản vẽ rất tốt   
 Đã mua bản vẽ tại Banvenhadep.vn
Bản vẽ thiết tốt thích hợp để tham khảo
HỖ TRỢ TRỰC TUYẾN